Eladó ipari ingatlan Aszód 285 000 000 Ft

Leírás

SOKOLDALÚ IPARI INGATLAN KIVÁLÓ ELHELYEZKEDÉSSEL – BEFEKTETŐKNEK, CÉGEKNEK, FEJLESZTŐKNEK!!!

Fedezd fel ezt a páratlan adottságokkal rendelkező ipari ingatlant, amely tökéletes választás lehet raktározási, gyártási vagy logisztikai tevékenységre, de akár hosszú távú befektetésként is megállja a helyét.

Ingatlan jellemzői:

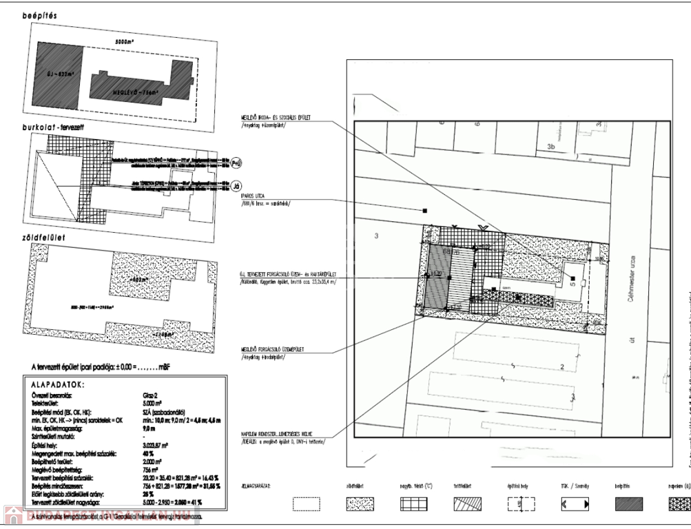
Fűtött, szigetelt csarnok – kb. 700 m² alapterülettel, ipari kapuval, raktározásra, gyártásra vagy akár szerviz tevékenységre is alkalmas.

Tágas, 5 000 m²-es telek – jól kihasználható szabadtéri területekkel, kamionos megközelíthetőséggel, bővíthetőséggel.

Két külön elektromos hálózat lett kialakítva, külön mérőórákkal:

Az egyik egy 3×65 A-s, ad-vesz órás rendszer, melyhez 40 kW-os napelem tartozik, éves szaldós elszámolással – rendkívül kedvező üzemeltetés mellett.

A másik egy 3×125 A-s ipari csatlakozás, mely az építhető új csarnok sarkánál lép be a telekre, és földkábelen keresztül jut el a meglévő csarnokhoz.

Teljes közműellátottság – ipari áramon túl víz, csatorna, gáz, internet is rendelkezésre áll.

Aszfaltozott megközelítés – könnyen elérhető főútvonalról, pár perc távolságra M3-as.

Saját, zárt telephely – biztonságos, többféle célú hasznosításra is előkészített.

Fejlesztési és üzleti lehetőségek:

Több csarnok, iroda vagy kiszolgáló egység is építhető – a telek adottságai lehetővé teszik az ingatlan továbbfejlesztését.

Logisztikai vagy gyártóbázis kialakításához kiváló – köszönhetően a könnyű megközelíthetőségnek és a tágas telekterületnek.

Energiahatékony üzemeltetés – a napelemrendszer révén akár közel nulla energiaigény is megvalósítható.

Kiváló ár-érték arány – ideális hosszú távú beruházás vagy cégközpont kialakítására.

Ideális célcsoport:

Gyártó, logisztikai, szállítmányozási vagy szerviz szolgáltatást nyújtó vállalkozások

Beruházók, akik hosszú távon hasznosítanának ipari területet bérbeadás vagy saját működés céljából

Cégek, amelyek saját központot keresnek Budapest vonzáskörzetében

Ami kiemeli a többi közül:

Azonnal birtokba vehető, jól karbantartott ipari létesítmény

Kiépített kettős elektromos rendszer napelemmel és nagy teljesítményű ipari betáplálással

Stratégiai elhelyezkedés Pest megye egyik legjobban fejlődő ipari zónájában

Az ingatlan céggel együtt is eladó, akárcsak a magas minőségű Hyundai és DMG 10 tengelyes, száladagolós CNC esztergák, utóbbi egyéb pénzügyi megállapodást igényel.


További információért vagy megtekintésért vedd fel a kapcsolatot még ma!
Ez a telephely egy kivételes lehetőség azoknak, akik nem csupán egy ingatlant, hanem jövőbeni stabilitást és növekedést keresnek. Ne hagyd ki – ritkán adódik hasonló adottságú ipari ingatlan ezen a környéken.

Amennyiben hirdetésem felkeltette érdeklődését, várom hívását, akár hétvégén is! V.I.

Ipari ingatlan részletei

Ár: 285 000 000 Ft
Méret: 700 négyzetméter
Azonosító: 11550966
Irodai azonosító: 385067
Cím: Céhmester út
Ingatlan állapota: Átlagos
Jelleg: egyéb

Térkép


Így keressen budapesti ingatlant négy egyszerű lépésben. Csupán 2 perc, kötelezettségek nélkül!

Szűkítse a budapesti ingatlanok
listáját
Válassza ki a megfelelő
budapesti ingatlant
Írjon a hirdetőnek
Várjon a visszahívásra