Eladó családi ház Zalaegerszeg 68 000 000 Ft

Leírás

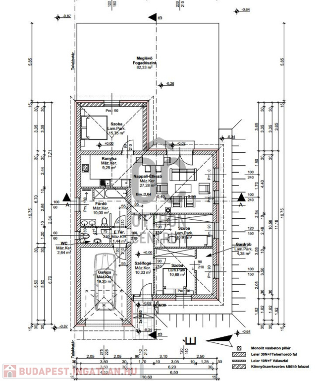
Keressük a tulajdonosát ennek a szerkezetkész állapotú 115 nm-es, teljes építési dokumentációval rendelkező tégla építésű családi háznak!

Az ingatlan Zalaegerszeg -Vorhota városrészében, egy csendes zsák utcában , teljesen sík, 1296 négyzetméteres zártkerti telken épül.

Jelenleg az ingatlan rendelkezik:
-Fő-és válaszfalakkal
-Betonfödémmel
-Tetőszerkezettel és cserép héjazattal
- Nyílászárók

A szomszédság rendezett, kulturált, a lakókörnyezet egyáltalán nem zsúfolt!

Az ár az ingatlan jelenlegi állapotára vonatkozik!

Jöjjön el, nézze meg, szeressen bele! Amennyiben a képek és a leírás alapján az ingatlan felkeltette az érdeklődését, keressen bizalommal a megadott elérhetőségeken, keresse az ingatlant a honlapunkon, több kép is segíti Önt a választásban!
Irodánk teljes körű, díjmentes szolgáltatást nyújt kereső ügyfeleinknek, amennyiben Önnek hitelre van szüksége, segítünk! Szakszerű tanácsadással, hitel ügyintézéssel és kedvező díjszabású ügyvéddel nyújtunk segítséget!

Családi ház részletei

Ár: 68 000 000 Ft
Méret: 115 négyzetméter
Azonosító: 11417799
Telek: 1296 négyzetméter
Ingatlan állapota: Átlagos
Jelleg: családi ház
Építőanyag: Kérdezzen rá a hirdetőtől »
Egész szobák: 4

Egyéb jellemzők

  • Garázs
  • Kábel TV
  • Melléképület
  • Parketta
  • Pince
  • Terasz

Így keressen budapesti ingatlant négy egyszerű lépésben. Csupán 2 perc, kötelezettségek nélkül!

Szűkítse a budapesti ingatlanok
listáját
Válassza ki a megfelelő
budapesti ingatlant
Írjon a hirdetőnek
Várjon a visszahívásra