Eladó családi ház Zalaegerszeg 33 000 000 Ft

Leírás

Új építésű, KULCSRAKÉSZ könnyűacél vázszerkezetes AA + energetikai besorolású családi házak rendelhetők, garanciával, energiatakarékos modern, hőszivattyús fűtési rendszerrel‼️

Teljes körű ügyintézés!! Bármely méretben, egyedi elképzelések alapján ingyenes tervezéssel, elképzelés hiányában típustervekkel.

550 000 Ft / m2 ártól, kulcsrakészen (az ár bruttó ár, mely tartalmazza az 5%-os áfát, de a hasznos/nettó négyzetmétert kell kifizetni).

A TELEK ára nincs benne az árban, a házakat bárhol felépítjük.

Mit tartalmaz az ár?
• a tervezés árát
• az alapozás költségét
• a hőszivattyús fűtési rendszert
• a burkolatokat
• a nyílászárókat
• a szanitereket
• a közművekre való rákötést.

Igény szerint: napelem, riasztórendszer, szúnyogháló, redőny, okosotthon vezérlés rendelhető.
Új otthonát egyéni ízlésének megfelelően alakíthatja: falszínek, burkolatok, nyílászárók és ajtók mérete/színe, szaniterek minősége, külső vakolat és tető színe egyedileg választható.

A könnyűszerkezetes házak rövid jellemzői, típustól függetlenül:
• EPS 80 szigetelés 10 cm 15 cm a falszerkezetben, térosztó falak: hidegen hengerelt horganyzott acél falszerkezet, közte szálas hang-hőszigetelés 10 cm vastagságban
• páraáteresztő fólia, cserepes lemezzel vagy beton agyagcseréppel fedve, járható, pakolható födémmel
• 3 rétegű, 6 légkamrás, műanyag tokos nyílászárók

A könnyűszerkezetes házakban nincsenek allergén anyagok, a gipsz, melyet falburkolásra használnak természetes anyag. A falakban lévő kőzetgyapot pedig nem juthat be a lakótérbe.

A könnyűszerkezetes családi házak száraz technológiával épülnek, ezért nem maradhat víz a falakban, mely a későbbiekben penészesedést okozhatna, de hőhidak sincsenek a homogén anyagfelhasználásnak köszönhetően.

Amennyiben kérdés merülne fel a kivitelezéssel kapcsolatban, megtekinthet félkész és kész házakat is, személyesen győződhet meg a minőségről. Lehetőség nyílik a kivitelezővel való személyes konzultációra is.

A tájékoztatás nem teljeskörű, pontos részletekért keressen bizalommal.

Családi ház részletei

Ár: 33 000 000 Ft
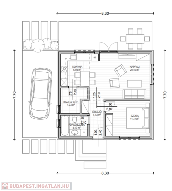
Méret: 60 négyzetméter
Azonosító: 11442760
Irodai azonosító: 375041
Cím: Könnyűszerkezetes házak eladók!
Telek: 1000 négyzetméter
Ingatlan állapota: Átlagos
Jelleg: családi ház
Építőanyag: Kérdezzen rá a hirdetőtől »
Fűtés jellege: Geotermikus
Fűtés módja: Hőszivattyú
Komfort fokozat: Dupla komfort
Kor: Új építésű
Szintek száma: Földszintes
Egész szobák: 2

Egyéb jellemzők

  • Csatorna
  • Garázs
  • Pince
  • Terasz

Térkép


Így keressen budapesti ingatlant négy egyszerű lépésben. Csupán 2 perc, kötelezettségek nélkül!

Szűkítse a budapesti ingatlanok
listáját
Válassza ki a megfelelő
budapesti ingatlant
Írjon a hirdetőnek
Várjon a visszahívásra