Eladó családi ház Zalaegerszeg 139 990 000 Ft

Leírás

Andráshida Zalaegerszeg egyik városrésze, amely nyugodt, kertvárosias környezetéről ismert.
A városrész jó infrastruktúrával rendelkezik, közelében iskolák, boltok és közlekedési csomópontok találhatók.
Családok és idősebbek körében is népszerű, mivel csendes, biztonságos lakókörnyezetet kínál.

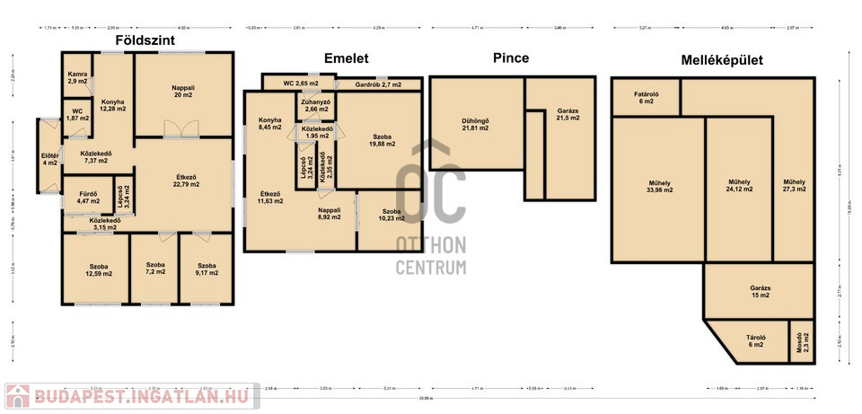
Ingatlan jellemzői:
- A tégla építésű, nettó 185 m2-es, 7 szobás családi ház egy 720 m2-es telken helyezkedik el.
- Az ingatlanon 8 cm szigetelés található, így kedvező a hőmegtartása.
- A tető héjazata bitumenes zsindely.
- A földszinten nappali, 3 szoba, konyha, étkező, fürdő, WC, kamra, az emeleten nappali, 2 szoba, konyha + étkező, fürdő, WC, gardrób helyiségek lettek kialakítva.
- A házból akár 2 generációs házat is ki lehet alakítani, hiszen a földszinten és az emeleten is minden megtalálható ami a lakhatáshoz szükséges.
- A pince 50 m2-es, egyik felén garázs, másik felén pedig egy dühöngő lett kialakítva.
- Víz, villany (ipari is), csatorna, gáz bevezetve.
- Nyílászárói műanyagok, redőnnyel és szúnyoghálóval felszereltek.
- A házban található riasztó, illetve füstérzékelő is.
- Az étkezőben a redőny automata.
- Fűtése a pincében kályha, a földszinten konvektor, az emeleten pedig központi gáz cirkó, hőleadás pedig radiátorokkal történik.
- A ház mindkét emeletén a hűtésről klímaberendezés gondoskodik.
- A dühöngőben fitneszgép, szauna, billiárd, tv készülék szolgál a kikapcsolódásra.
- Az udvarban található egy nettó 115 m2-es melléképület, ami asztalos műhelyként volt használva, 3 fázis bevezetve, fa tüzelésű kályhával.
- A telek parkosított, kis kerti tóval.
- A garázsig vezető út térkővel van burkolva.
- Az ingatlan kiváló lokációval rendelkezik, a közelben található a Gébárti-tó, buszmegálló, bevásárlóközpont stb.

Ez az ingatlan felezőcsomagos megbízásban szerepel irodánkban.
Ennek részleteiről tájékozódhat az Otthon Centrum weboldalán, vagy tanácsadóinknál.

Irodánk teljes körű szolgáltatást nyújt kereső ügyfeleinek.
Szakszerű tanácsadással, ingyenes CSOK és hitelügyintézéssel, energetikai tanúsítvány elkészítésével és kedvező díjszabású ügyvéddel nyújtunk segítséget!

Ez az ingatlan a Felező csomag megbízási portfólióhoz tartozik. Részletek az Otthon Centrum weboldalán.

Családi ház részletei

Ár: 139 990 000 Ft
Méret: 185 négyzetméter
Azonosító: 11562735
Irodai azonosító: H502310-5017261
Telek: 725 négyzetméter
Ingatlan állapota:
Jelleg: családi ház
Építőanyag: Tégla
Fűtés jellege: Cirkó
Fűtés módja: Gáz
Kor: 21-50 éves
Szintek száma: Földszintes
Egész szobák: 7

Térkép


Így keressen budapesti ingatlant négy egyszerű lépésben. Csupán 2 perc, kötelezettségek nélkül!

Szűkítse a budapesti ingatlanok
listáját
Válassza ki a megfelelő
budapesti ingatlant
Írjon a hirdetőnek
Várjon a visszahívásra