Eladó családi ház Zala 57 900 000 Ft

Leírás

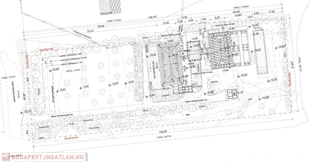
Ez a gyönyörű 7118nm-es panorámás telek Keszthelytől és Hévíztől 16 km-re, Szentgyörgyvár fölött Alsómánd puszta település részen található.
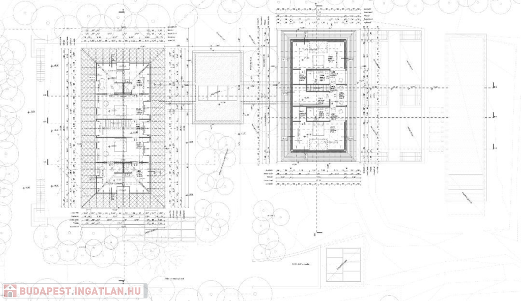
A terület lakott külterület, az Oltay uradalomhoz tartozott, eredeti rendeltetése szerint iskola épület volt. A telken jelenleg egy cca. 295 m 2 (pince+fsz.+tetőtér) lakóépület rendeltetésű kúria áll, amely a XIX. Század második felében épült, jelenleg helyi védelem alatt áll. A kúria teljes hosszában az előző tulaj egy nagyméretű teraszt alakított ki, melynek mérete: 6,3 m x 25 m. A házban jelenleg 2 külön bejáratú lakrész található, melyek egyenként 105-105 m 2 -esek. Az épület jelenlegi kamrájából egy pincelejárat lett kialakítva, amely egy 25 m 2 –es pincehelyiségbe vezet. Az ingatlan saját 18 m-es fúrt kúttal rendelkezik. A terület 3 x 32A vezérelt és 3 x 32A normál hálózati áramcsatlakozással lett kiépítve. A ház fűtése jelenleg hagyományos kályhákkal van megoldva.
A nagy ház mögött helyezkedik el egy, az előző tulaj által építetett szerkezetkész, 2 szintes, 120 m 2 -es kisebb ház, amely állapotából adódóan bontandónak tekintendő. A telek hátsó részén kialakításra került egy 80 m 2 –es pince.
A jelenlegi tulajdonos csináltatott egy felújítási tervet is, amit igény esetén használni lehet.
2. Tervezett állapot
Az új tulajdonos az épületet szeretné bővíteni, a tetőszerkezet – faanyagvédelmi szakvélemény javaslatai szerinti – állagmegóvását elvégezni, a tetőteret beépíteni, ahol szükséges felújítani, külső megjelenésében a környezetéhez illeszkedni, annak hangulatát – amennyire lehetséges – megőrizni. Valamint ezen felül az alaprajzot, belső funkciókat a saját igényeinek megfelelően átalakítani, a meglévő épület bővítéseként egy vendégházat létrehozni (saját használatra), valamint a két épületet összekötő nyaktagban egy télikertet/pálmaházat elhelyezni. A kert végében a 80 m 2 -es pince helyén egy fűtött medence kerül kialakításra.
A meglévő kúria épületben földszinten kap helyet a nappali élet színtere. Előszoba, mosdó, háztartási helyiség(gépészet), két dolgozó szoba, konyha+étkező, a tetőtérbe felvezető lépcső, nappali, társalgó. A tetőtérben 2 hálószoba, gardrób és két fürdőszoba kialakítása az igény.
Meglévő épületet egy temperált nyaktag köti össze az új vendégházzal. A kettő között a nyaktagra fűzve egy temperált télikert/pálmaház kerül kialakításra. A vendégházban az előtérből nyíló helyiségek között melegítőkonyha+étkező, konditerem, valamint 3 vendégszoba szerepel saját fürdőszobával. Az előtérből érhető el a tetőtérbe vezető lépcső. A vendégház tetőterében található a gépészet, 2 hálószoba saját fürdővel, valamint egy a kertre néző fedett loggia.

Családi ház részletei

Ár: 57 900 000 Ft
Méret: 295 négyzetméter
Azonosító: 11548408
Irodai azonosító: 384539
Cím: Alsómándpuszta
Telek: 7118 négyzetméter
Ingatlan állapota: Felújítandó
Jelleg: családi ház
Építőanyag: Tégla
Komfort fokozat: Dupla komfort
Kor: 50 évesnél régebbi
Szintek száma: 1 szint
Egész szobák: 4

Egyéb jellemzők

  • Csatorna
  • Garázs
  • Pince
  • Terasz

Térkép


Így keressen budapesti ingatlant négy egyszerű lépésben. Csupán 2 perc, kötelezettségek nélkül!

Szűkítse a budapesti ingatlanok
listáját
Válassza ki a megfelelő
budapesti ingatlant
Írjon a hirdetőnek
Várjon a visszahívásra