Eladó családi ház Vonyarcvashegy 114 900 000 Ft

Leírás


Felújított, két lakásos családi ház, egyedi dizájnal Vonyarcvashegyen A Gold Balaton Home Ingatlaniroda megvételre kínálja a 73100038-as sorszámú, belülről a teljesség igényével felújított /egyedi dizájn/ VONYARCVASHEGYI CSALÁDI HÁZAT.

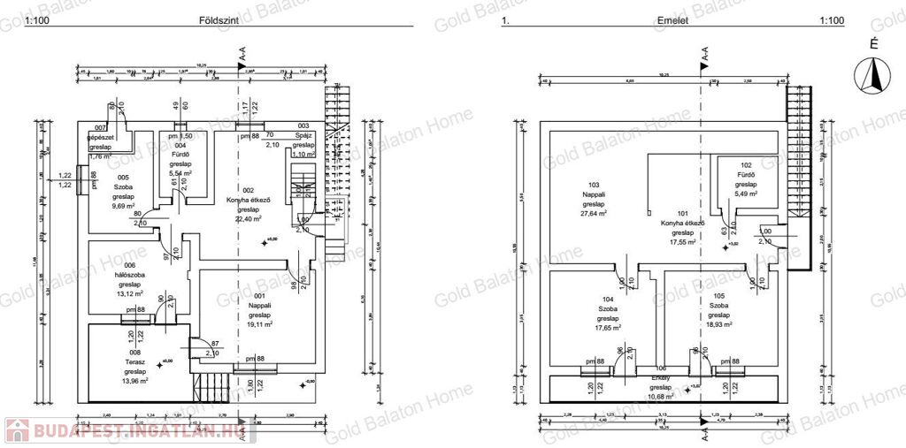
A kétszintes (részben tetőteres) nettó 180 m2-es családi ház, két teljesértékű lakrésszel, Vonyarcvashegy déli, BALATONI oldalán helyezkedik el, csendes, átmenő forgalomtól mentes zsákutcában.

 

 Műszaki paraméterek:

- 1976-ban B30-as téglából épült masszív családi ház, 20 cm-es födém szigeteléssel

- 2023-ban a teljes belső rekonstrukció befejeződött, a közműveket is beleértve

- redőnnyel és szúnyoghálóval ellátott műanyag nyílászárók dupla üvegezéssel

- az épület fűtése kondenzációs gázkazánnal, radiátoros hőleadás, okos vezérléssel; kiegészítő fűtés - hűtés, 5 kw-os klíma az emeleten

- hővisszanyerős szellőztető rendszer a földszinten

- melegvíz ellátás: elektromos bojlerekből

- az épület mindkét lakása kívülről megközelíthető, két teljesértékű lakrész

- a családi ház részben alápincézett cca. 10 m2-es borospince – belülről megközelíthető (lsd. alaprajz)    

 

Az ingatlan egyéb jellemzői:

- kerítéssel határolt telek, fiatal gyümölcsfákkal

- 10 m2-es kerti szerszámtároló

Az ingatlan két generáció állandó lakhelyének, vagy/és kereskedelmi szálláshelynek is kitűnő választás.

 

Amennyiben hirdetésem felkeltette érdeklődését, kérem, keressen bizalommal.

Irodánk szolgáltatásai igény esetén: ügyvéd, energetikai tanúsítvány, hitelügyintézés, értékbecslés, statikus, földmérő, belsőépítész

Biztonság, szakértelem - *GOLD BALATON HOME - „Élj ott, ahol mások nyaralnak”

Családi ház részletei

Ár: 114 900 000 Ft
Méret: 180 négyzetméter
Azonosító: 11607099
Irodai azonosító: 731200038
Telek: 707 négyzetméter
Ingatlan állapota: Felújított
Jelleg: családi ház
Építőanyag: Tégla
Fűtés jellege: Központi
Komfort fokozat: Dupla komfort
Egész szobák: 6

Így keressen budapesti ingatlant négy egyszerű lépésben. Csupán 2 perc, kötelezettségek nélkül!

Szűkítse a budapesti ingatlanok
listáját
Válassza ki a megfelelő
budapesti ingatlant
Írjon a hirdetőnek
Várjon a visszahívásra