Eladó családi ház Villány 62 000 000 Ft

Leírás

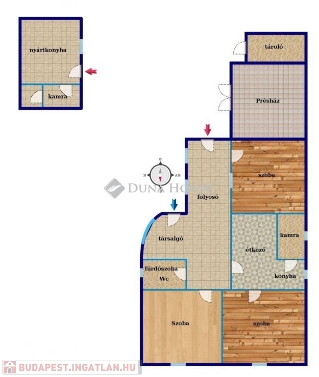
Villány belvárosában, a történelmi pincesorral szemben, 626 m2-es telken elhelyezkedő 110 m2-es családi ház gazdasági épületekkel eladó.
A ház vegyes falazatú, részben szigetelt. Az ingatlan 3 szobája külön bejáratúak, külön étkezővel és fürdőszobával. Ablakai hőszigetelt fa nyílászárókkal, redőnnyel felszereltek.
A telken található további épületek:
- nyári konyha, ami kb. 20 m2-es
- állattartásra alkalmas gazdasági épületek
- garázs 16,4nm- góré
- présház pincével (kétsoros, 7 méteres)

25 méteres ásott kút található a telken. A lakóház melegét gázfűtés, villanyfűtés, valamint az étkezőben lévő vas kandalló biztosítja.

Az ingatlan belső felújítást követően kényelmes lakhatást biztosít több gyermekes családok részére, továbbá kiváló befektetési lehetőséget is kínál apartmanok kialakítására.

Megtekintéssel kapcsolatban várom hívását!

Családi ház részletei

Ár: 62 000 000 Ft
Méret: 120 négyzetméter
Azonosító: 11588889
Irodai azonosító: HZ017533-5113864
Telek: 625 négyzetméter
Ingatlan állapota: Átlagos
Jelleg: családi ház
Építőanyag: Vegyes
Fűtés jellege: Cirkó
Fűtés módja: Gáz
Kor: 50 évesnél régebbi
Szintek száma: Földszintes
Egész szobák: 3

Térkép


Így keressen budapesti ingatlant négy egyszerű lépésben. Csupán 2 perc, kötelezettségek nélkül!

Szűkítse a budapesti ingatlanok
listáját
Válassza ki a megfelelő
budapesti ingatlant
Írjon a hirdetőnek
Várjon a visszahívásra