Eladó családi ház Veszprém 125 000 000 Ft

Leírás

Veszprémben a Füredi dombon eladó egy kétgenerációs családi ház, mely
egyedi lehetőség generációk összeköltözésére vagy nagyszerű lehetőséget kínál otthonnak és irodának egyaránt. Ez a sokoldalúság különösen vonzó lehet azok számára,
akik szeretnék ötvözni a munka és a magánélet tereit, anélkül, hogy
kompromisszumot kellene kötniük!

Főbb jellemzői:
- 1967-ben épült, téglából
- telek: 767nm
- a fsz és az emeleti rész külön bejárattal rendelkezik. Az emeletet 1993-ban építették rá, ekkor társasházzá alapították.
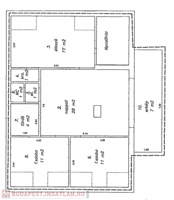
Fsz: 96nm_2+1 szobás, konyha, fürdő, wc
Em: 108nm_1+3 szobás, saját konyhával, fürdőszobával, mosókonyhával
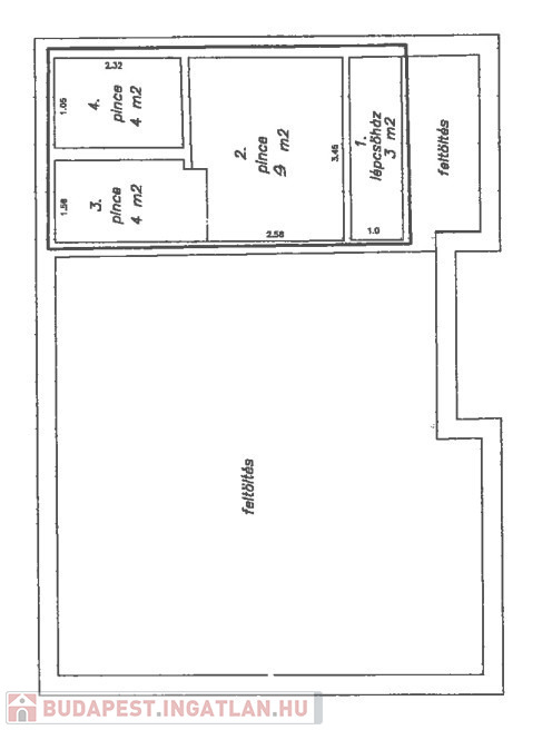
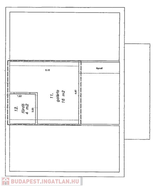
A házhoz tartozik egy 16nm-es gazdsági épület, melyet külön lakrésznek alakítottak át, ill. egy garázs. A konyha alatt pincerész is található.
Fűtés: alsó szinten konvektorok és egy lemez kályha gondoskodik a melegről, a konyhába a központi fűtés már kiépítésre került.
Az emeleten központi fűtés (gáz cirkó / vegyestüzelésű kazán) és két hűtő-fűtő klíma adja a meleget.
Meleg vizet mindkét szinten villanybojlerek biztosítják.
Műanyag és fa nyílászárók vegyesen találhatóak az épületben.
A kellemes méretű kertben gyümölcsfák és virágágyások mellett bőven marad hely a gyerekeknek játszásra vagy családi összejövetelek helyszínének.

Iá: 125m Ft

További felmerülő kérdéseivel forduljon hozzám bizalommal!

Érd: 20 406 8593
Dream-ing ingatlan
Álomból Otthont!

Családi ház részletei

Ár: 125 000 000 Ft
Méret: 204 négyzetméter
Azonosító: 11614886
Irodai azonosító: 352624
Telek: 767 négyzetméter
Ingatlan állapota: Átlagos
Jelleg: családi ház
Építőanyag: Tégla
Fűtés jellege: Központi
Komfort fokozat: Dupla komfort
Egész szobák: 4
Fél szobák: 3

Egyéb jellemzők

  • Garázs
  • Terasz

Így keressen budapesti ingatlant négy egyszerű lépésben. Csupán 2 perc, kötelezettségek nélkül!

Szűkítse a budapesti ingatlanok
listáját
Válassza ki a megfelelő
budapesti ingatlant
Írjon a hirdetőnek
Várjon a visszahívásra