Eladó családi ház Veresegyház 229 000 000 Ft

Leírás

Exkluzív családi ház Veresegyház legszebb, zöldövezeti részén!

Nyugodt, természetközeli környezetben kínálunk megvételre egy magas műszaki tartalommal, kifinomult ízléssel megépített prémium családi otthont, amely a tágas élettereket, az időtálló minőséget és a privát életstílust helyezi előtérbe.

Reprezentatív terek & elegáns arányok:
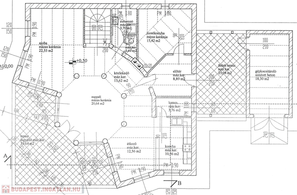
• 297 m² gondosan megtervezett lakótér
• 6 méteres belmagasságú, különleges kivitelezésű, galériás nappali, kandallóval
• nagyvonalú amerikai konyha kényelmes étkezővel
• többfunkciós tetőtéri szint – hatalmas dolgozószoba, hálószobák, vendégtér vagy privát lakrész kialakítására

A belső terek tágas és harmonikus arányai, valamint a természetes fény jelenléte jellemzi az egész épületet.

Prémium anyaghasználat & beépített megoldások:
• porotherm téglából épült, szigetelt ház
• különleges, fa oszlopos tartószerkezetek
• számos egyedileg tervezett beépített bútor
• diszkréten integrált tárolómegoldások
• minőségi kivitelezés, időtálló részletek

Privát kert & kültéri luxus:
• 800 m²-es, parkosított, intim kert
• automata öntözőrendszer kiépítve
• 60 m²-es DNy-i tájolású, fedett terasz, székely dézsával
• két különálló faház - egy kisebb és egy nagyobb tároló
• tökéletes helyszín pihenéshez, családi eseményekhez, vendéglátáshoz

Kényelmes parkolás & praktikum:
• garázs
• fedett autóbeálló
• bőséges tárolási lehetőségek a telken és az épületen belül is

Korszerű technológia & fenntartható komfort:
• padlófűtés kondenzációs kazánról, radiátorokkal kiegészítve
• alternatív megoldások: kandalló, ionkazán
• napelemek, napkollektor, klímaberendezések
• víz kezelő rendszer, riasztó
• energiahatékony, tudatosan kialakított gépészet

Kitűnő lokáció – természet és elérhetőség egyensúlya:
• Csendes, zöldövezeti környezet
• Budapest gyorsan és kényelmesen elérhető
• Ideális külföldi vásárlók számára is, akik értékelik a repülőtér közelségét és a prémium életstílust

Ez az otthon azok számára készült, akik nem kompromisszumokban, hanem életminőségben gondolkodnak.

Családi ház részletei

Ár: 229 000 000 Ft
Méret: 297 négyzetméter
Azonosító: 11596284
Irodai azonosító: 392254
Cím: Különleges, exkluzív minőség!
Telek: 800 négyzetméter
Ingatlan állapota: Kitűnő
Jelleg: családi ház
Építőanyag: Tégla
Fűtés jellege: Cirkó
Fűtés módja: Gáz
Komfort fokozat: Dupla komfort
Kor: 21-50 éves
Szintek száma: 1 szint
Egész szobák: 6

Egyéb jellemzők

  • Csatorna
  • Garázs
  • Pince
  • Terasz

Térkép


Így keressen budapesti ingatlant négy egyszerű lépésben. Csupán 2 perc, kötelezettségek nélkül!

Szűkítse a budapesti ingatlanok
listáját
Válassza ki a megfelelő
budapesti ingatlant
Írjon a hirdetőnek
Várjon a visszahívásra