Eladó családi ház Veresegyház 144 900 000 Ft

Leírás

Kihagyhatatlan lehetőség Veresegyházán!
Remek elhelyezkedéssel, maximális felszereltséggel 2025-ös év nyarán kerülnek átadásra!

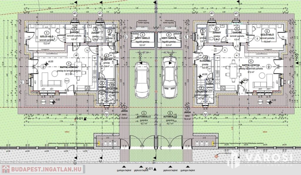
Veresegyháza központjától nem messze 2025-ös év elején kezdődő építkezés, 141m2-es ikerház 350m2-es, saját telekkel ELADÓ!
Egy igazi gyöngyszem! A környék maga a nyugalom szigete! Érdemes megtekinteni és meglátni benne új OTTHONÁT!
Csak a garázsokkal kapcsolódnak össze! A 2 ingatlan teljesen külön fog mozogni!
Az építkezés elindult így valószínűleg 8 hónapon belül már költözhető is! A tervek nagyszerűek, a kivitelező brigád profi, már csak Önre várunk!
Jelen építési állapotban a belső elrendezés az Ön elképzelése szerint alakítható. Merjen álmodozni!
-belső fal és padlóburkolatok, szaníterek, belső ajtók, külső nyílászárók
-külső burkolatok, színvilág
-utcafronti kerítés

Szakmai gyakorlat, lekérhető referenciamunka a kivitelező részéről, így biztos lehet benne, hogy megfelelő kezekbe került az ingatlan építése!
A környező utcák, szomszédos házak rendben tartottak, szimpatikus és barátságos szomszédokkal.

Az ikerház és a telek főbb adatai:
-BABAVÁRÓ hitel és CSOK Plusz is igényelhető akár a maximális hitelkerettel is!
-belső elrendezése kialakítása elképzelése szerint alakítható jelen állapotban.
-befejezése 2025 nyarán
-141 m2-es családi ház 4 lakószobával, nappalival, fürdőszobával külön wc-vel, gardróbbal és amerikai konyhával.
-belső burkolatok, belső és külső színvilág az építés folyamán egyedileg választhatóak.
hőszívattyús fűtési rendszer, minőségi műanyag nyílászárók és bejárati ajtók, igényes szaniterek kerülnek beépítésre.
-külső 15cm-es dryvit szigetelés,
-igényes tervezés és természetesen precíz kivitelezés!
-valósítsa meg álmai ikerházát egy elismert kivitelező csapattal!
-a hozzá tartozó telek 350m2-es.

Közlekedése:
-busz 10 perc alatt elérhető egy könnyed sétával.
-Budapest 25 perc alatt az M0-ás körgyűrű segítségével pedig szinte az összes autópálya és nagyobb város viszonylag gyorsan érhető el autóval.

Legyen az lakhatás vagy csak befektetési lehetőség, bármit keres, itt megtalálhatja számításait.
Jöjjön el, nézze meg és lássa meg a benne rejlő potenciált!
Csendes, madárcsicsergős környék rendkívül barátságos szomszédokkal.

Nagyszerű választás, szuper ár-érték arányban!

Minden nap elérhető vagyok, hívjon, egyeztessünk időpontot az ingatlan megtekintésére!

Irodánkban a következő szolgáltatásokkal állunk meglévő és leendő ügyfeleink rendelkezésére:
-ingatlanközvetítés (díjmentes tanácsadás, kiemelt méretű vevői adatbázis, magas szintű szakmai háttér)
-bank semleges hitelügyintézés vásárlóknak (díjmentes hitelszűrés és tanácsadás)
-Adás-vétellel kapcsolatos jogi tanácsadás.
-Ingyenes ingatlan közvetítés kereső ügyfeleink részére.
-Energetikai tanúsítvány készítése.
(További képekért és információkért kérem hívjon!)

Családi ház részletei

Ár: 144 900 000 Ft
Méret: 141 négyzetméter
Azonosító: 11449036
Irodai azonosító: 650281
Telek: 350 négyzetméter
Ingatlan állapota: Kitűnő
Jelleg: ikerház
Építőanyag: Tégla
Fűtés jellege: Hőszivattyú
Egész szobák: 5
Nappalik: 1

Egyéb jellemzők

  • Beépíthető tetőtér
  • Csatorna
  • Garázs
  • Melléképület
  • Pince
  • Terasz

Így keressen budapesti ingatlant négy egyszerű lépésben. Csupán 2 perc, kötelezettségek nélkül!

Szűkítse a budapesti ingatlanok
listáját
Válassza ki a megfelelő
budapesti ingatlant
Írjon a hirdetőnek
Várjon a visszahívásra