Eladó családi ház Vecsés 170 000 000 Ft

Leírás

Azonnal birtokba vehető lakóház üzletekkel – a lehetőségek tárháza Vecsésen

Vecsés egyik kedvelt, csendes utcájában eladóvá vált ez a különleges adottságokkal rendelkező, háromszintes, összesen 380 m²-es családi ház, amely kialakítása révén kiváló lehetőséget kínál nagycsaládosoknak, többgenerációs együttéléshez, illetve azok számára is, akik vállalkozást, irodát vagy akár szálláshelyet működtetnének otthonukban. A városközpont, valamint a repülőtér néhány percen belül elérhető, így az ingatlan elhelyezkedése közlekedési és infrastrukturális szempontból is kiemelkedően kedvező.

Az épület három szintje – félszuterén, magasföldszint és emelet – jól átgondolt elrendezésű. A magasföldszinten és az emeleten összesen nyolc klimatizált szoba található, mindegyik saját fürdőszobával és egyedi fogyasztásmérővel, ami különösen előnyös több lakrész vagy szálláshely üzemeltetése esetén. A földszinten négy szoba, négy fürdő és egy konyha, míg az emeleten további négy szoba és négy fürdő kapott helyet. Az ingatlan korábban szálláshelyként működött, és akár 24–30 fő befogadására is alkalmas.

Az ingatlan valamennyi szobája és helyisége kódos beléptető rendszerrel ellátott, amely modern, kulcs nélküli, biztonságos hozzáférést biztosít. Ez különösen hasznos szálláshely-üzemeltetés, munkásszálló, vállalkozási tevékenység vagy többgenerációs használat esetén, hiszen önálló, kontrollált belépést tesz lehetővé a különböző lakrészekbe.

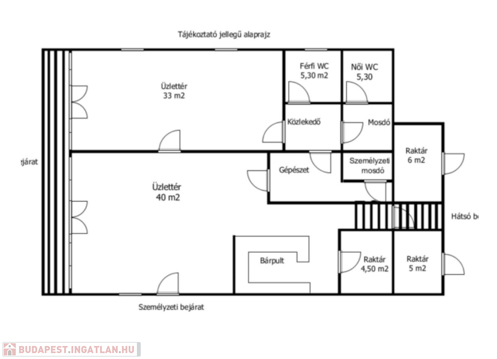
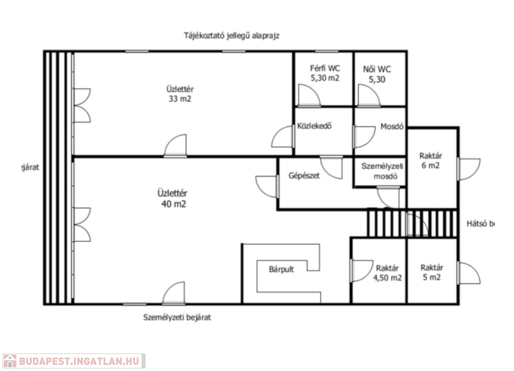
A félszuterén szinten, közvetlen utcafronti bejárattal két üzlethelyiség került kialakításra, amelyek korábban vendéglátóegységként működtek. A kiszolgálópulttal, eladótérrel, raktárakkal és mellékhelyiségekkel rendelkező helyiségek kiváló lehetőséget biztosítanak vállalkozás működtetésére, irodának, szolgáltatásnak vagy akár újabb külön bejáratú lakrész kialakítására. A tágas, világos terek és a jó beosztás mellett a 2018-ban elvégzett műszaki korszerűsítések tovább növelik az ingatlan értékét és kényelmét.

Az ingatlan egyik jelentős műszaki előnye a 3×50 A teljesítményű háromfázisú villamos kapacitás, amely ritkaságnak számít lakóingatlanok esetében. Ez a nagy terhelhetőség ideális több klímaberendezés, ipari gépek, vendéglátóipari eszközök vagy nagy teljesítményű elektromos berendezések egyidejű üzemeltetéséhez, így az ingatlan különösen alkalmas vállalkozási tevékenység támogatására.

A 546 m²-es, két utcára nyíló, parkosított telek gondozott, rendezett környezetet biztosít, az udvarban pedig akár 8–10 gépkocsi számára kényelmes beállási lehetőség adott. A külső hőszigetelés, az új nyílászárók, a háromfázisú áram, a riasztórendszer és az optikai internet mind azt szolgálják, hogy az új tulajdonos modern, biztonságos és magas felszereltségű otthonba költözhessen.

Az ingatlan ideális választás mindazok számára, akik értékelik a többfunkciós kialakítást, a tágas tereket és a kivételes lokációt. Legyen szó családi otthonról, vállalkozásról vagy befektetésről, ez a vecsési ház olyan lehetőségeket kínál, amelyek a piacon ritkán elérhetők.
Külső képeket egyeztetés után e-mailben küldöm!
(További képekért és információkért kérem hívjon!)

Családi ház részletei

Ár: 170 000 000 Ft
Méret: 380 négyzetméter
Azonosító: 11586759
Irodai azonosító: 957130
Telek: 546 négyzetméter
Ingatlan állapota: Felújítandó
Jelleg: családi ház
Építőanyag: Tégla
Fűtés jellege: Cirkó
Egész szobák: 8

Egyéb jellemzők

  • Beépíthető tetőtér
  • Csatorna
  • Garázs
  • Melléképület
  • Pince
  • Terasz

Így keressen budapesti ingatlant négy egyszerű lépésben. Csupán 2 perc, kötelezettségek nélkül!

Szűkítse a budapesti ingatlanok
listáját
Válassza ki a megfelelő
budapesti ingatlant
Írjon a hirdetőnek
Várjon a visszahívásra