Eladó családi ház Vecsés 129 900 000 Ft

Leírás

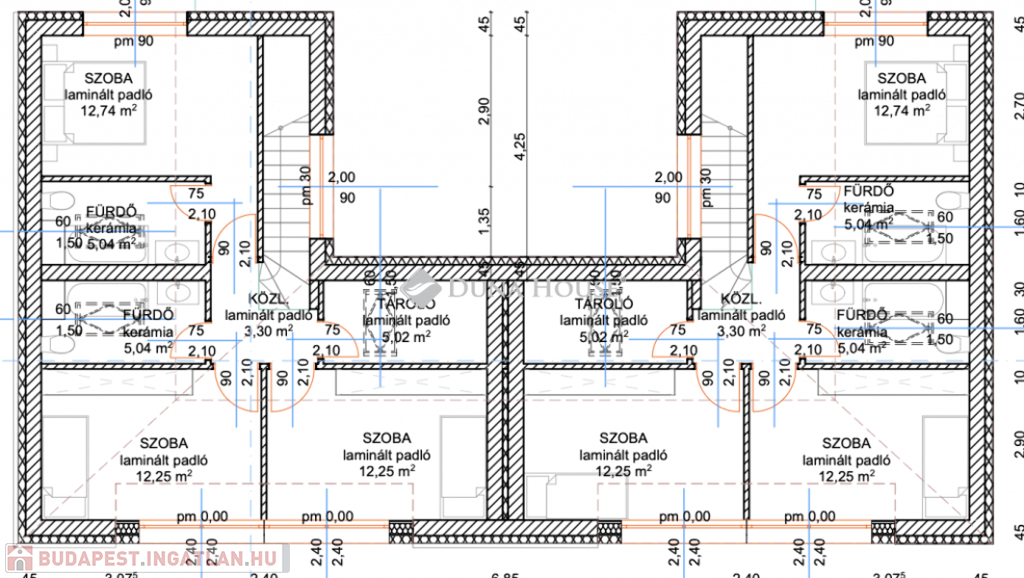
Új építésű, modern ikerházfél eladó Vecsés csendes utcájábanVecsés nyugodt, családbarát részén, csendes mellékutcában kínálok megvételre egy új építésű, modern ikerház egyik felét, amely 2026 második felében kerül átadásra.Az ingatlan önálló telekrésszel, átgondolt elrendezéssel és korszerű, energiatakarékos műszaki tartalommal készül, ideális választás családok számára.Főbb adatokLakótér: 118 m²Terasz: 23 m²Telek: 360 m²Épülettípus: ikerházVárható átadás: 2026. II. félévElrendezésAz ikerház praktikus, jól élhető belső kialakítással készül:- tágas, világos amerikai konyhás nappaliétkező- több hálószoba- külön dolgozószoba- fürdőszoba + külön WC- háztartási helyiség / tároló- közvetlen kijárat a teraszon keresztül a kertbeA terek elrendezése ideális mindennapi családi élethez, otthoni munkavégzéshez és pihenéshez egyaránt.Műszaki tartalom, felszereltségAz ingatlan korszerű, költséghatékony és energiatakarékos megoldásokkal épül:15 cm vastag külső hőszigetelés30 cm vázkerámia falazat3 rétegű, hőszigetelt műanyag nyílászárókhőszivattyús fűtési rendszerpadlófűtés minden helyiségbensplit klímás hűtési lehetőségkorszerű elektromos hálózatmegújuló energia arány hőszivattyúval biztosítvaVálasztható belső elemek:* Hideg- és melegburkolatok 8.000 Ft/m² árig* Belső ajtók 110.000 Ft/db árigKültér, parkolássaját kertkapcsolatnagy teraszfedett gépkocsi-beálló az ingatlanhoz tartozikElhelyezkedésAz ingatlan Vecsés belterületén, csendes lakóövezetben található, rendezett környezetben.A település infrastruktúrája kiváló: üzletek, iskola, óvoda, egészségügyi ellátás és tömegközlekedés könnyen elérhető, Budapest gyorsan megközelíthető.ÖsszegzésEz az új építésű ikerházfél ideális választás azok számára, akik:modern, energiatakarékos otthont keresnekfontos számukra a nyugodt környezetkerttel és terasszal rendelkező házra vágynakhosszú távon is értékálló ingatlant szeretnénekAmennyiben hirdetésem felkeltette érdeklődését, keressen bizalommal. Hitelügyintézésben is segítünk.

Családi ház részletei

Ár: 129 900 000 Ft
Méret: 118 négyzetméter
Azonosító: 11599388
Irodai azonosító: HZ010003-5149082
Telek: 360 négyzetméter
Ingatlan állapota: Épülő
Jelleg: ikerház
Építőanyag: Tégla
Fűtés jellege: Villany
Fűtés módja: Hőszivattyú
Kor: Új építésű
Szintek száma: Földszintes
Egész szobák: 5

Térkép


Így keressen budapesti ingatlant négy egyszerű lépésben. Csupán 2 perc, kötelezettségek nélkül!

Szűkítse a budapesti ingatlanok
listáját
Válassza ki a megfelelő
budapesti ingatlant
Írjon a hirdetőnek
Várjon a visszahívásra