Eladó családi ház Vecsés 119 900 000 Ft

Leírás

ELADÓ ÚJ ÉPÍTÉSŰ 2 szintes, 5 szobás CSALÁDI HÁZ VECSÉS SZÍVÉBEN IGÉNYES LAKÓPARKBAN!
2 fedett autóbeállási lehetőség az árban(40 m2)

2.INGATLANT KÍNÁLOM ELADÁSRA

CSOK PLUSZ, KEDVEZMÉNYES HITELRE ALKALMAS ELADÓ INGATLANOK!

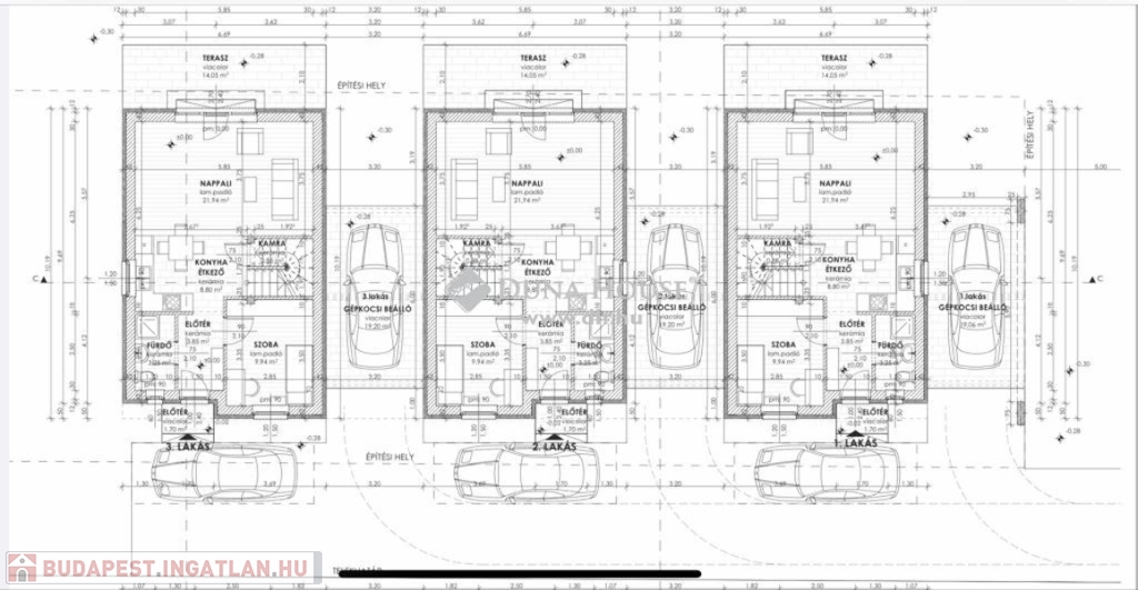
3 családi ház egy közös telekre épült, külön leválasztott saját udvar és gépkocsibeálló.

100 m2 alapterület, további teraszok mérete 16 m2 és feddett beálló autóra 40 m2.

Telek mérete: 200 m2. Külön helyrajzi számmal rendelkeznek.
Játszótér közelsége 100 méter a lakóparkban.

Kialakítása
földszinten: szoba, fürdő+wc, előtér, tágas nappali, konyha+étkező, kamra, nyitott terasz.
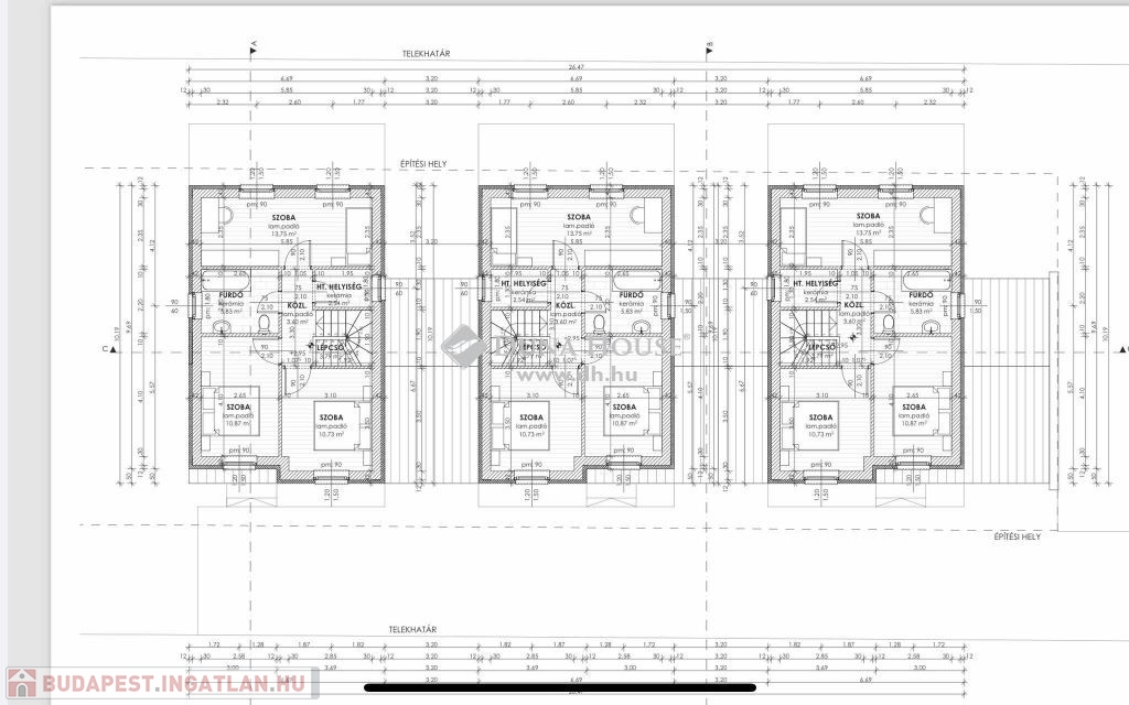
emeleten: 3 tágas szoba, fürdő+wc, közlekedő, háztartási helyiség.

Roppant világos, kiváló helyen helyezkedik el, új építésű lakóparkban.

EXTRÁK: - elektromos kapu, klíma kiállások, rejtett redőnytok+motor előkészítése, térkővel borított fedett autóbeállási lehetőség

Hőszivattyús fűtés padlófűtés mindenhol. Minőségi burkoltok, térburkolatok és szaniterek az ingatlanban.

Műszaki jellemzői: külső falazat 30 cm kerámia tégla amin 10 cm szigetelés található. Válaszfalak 10 cm-esek, aljzatban 7 cm-es lépésálló szigetelés.

SOK REFERENCIA MUNKÁT TUDOK MUTATNI, TÖBB MINT 25 ÉVES TAPASZTALATTAL RENDELKEZIK A KIVITELEZŐ.

Közelben: Market Centrál, Iskola, Óvoda, Vasútállomás.
Budapest távolsága pár perc autóval.
CBA, Aldi autóval 5 percre.

Amennyibe felkeltetem érdeklődését várom hívását .
További információért hívjon bizalommal!!

Vásárlását szakszerű tanácsadással segítjük, hitel ügyintézés lebonyolítása egy helyen.

Családi ház részletei

Ár: 119 900 000 Ft
Méret: 108 négyzetméter
Azonosító: 11491813
Irodai azonosító: HZ061009-4870682
Telek: 150 négyzetméter
Ingatlan állapota: Átlagos
Jelleg: családi ház
Építőanyag: Tégla
Fűtés jellege: Villany
Fűtés módja: Hőszivattyú
Kor: Új építésű
Szintek száma: Földszintes
Egész szobák: 5

Térkép


Így keressen budapesti ingatlant négy egyszerű lépésben. Csupán 2 perc, kötelezettségek nélkül!

Szűkítse a budapesti ingatlanok
listáját
Válassza ki a megfelelő
budapesti ingatlant
Írjon a hirdetőnek
Várjon a visszahívásra