Eladó családi ház Vasszécseny 85 000 000 Ft

Leírás

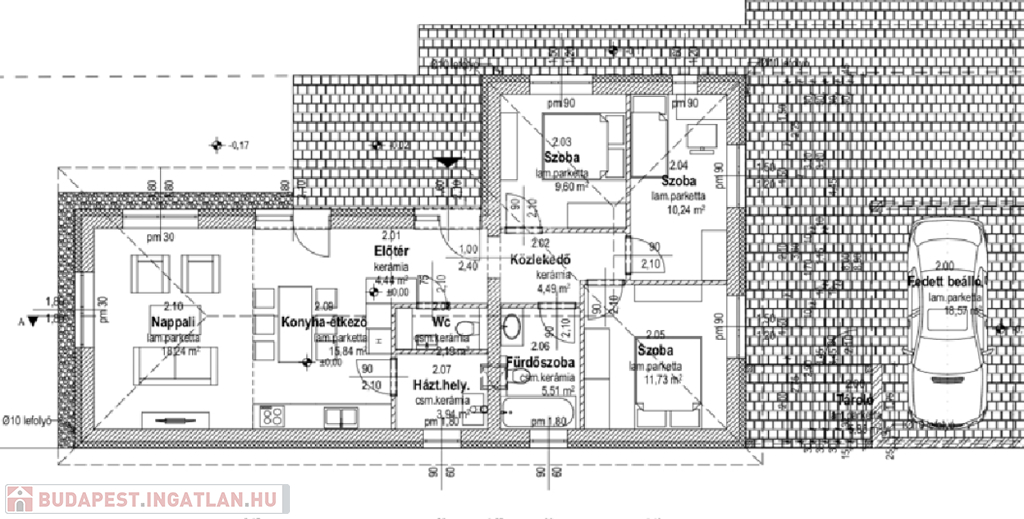
Dinamikusan fejlődő településen Vasszécsenyben, nyugodt környéken osztott telken családiházak eladók. A jól átgondolt tervezésnek köszönhetően a házak fedett gépkocsibeállókkal érintkeznek. Az ingatlanok magas műszaki tartalommal épülnek. A sávalapra épülő lakóegységek Porotherm téglából készülnek, vakolt felületekkel. A tető héjazata Bramac Római Novo cseréppel történik. Három rétegű nyílászárói fokozottan hang-és hőszigetreltek, motoros aluredőnyökkel felszereltek. Homlokzatára Austrotherm EPS hőszigetelő rendszer kerül, 15 cm vastagsággal. Födémere 30 cm szigetelést terveztek. Fűtéséről, meleg vízellátásáról kondenzációs gázkazán gondoskodik, padlófűtéses hőleadással. Az ingatlan nappaliában hűtő-fűtő klíma gondoskodik a kellemes hőmérsékletről. Elektromos ellátottsága 3x25 Amperrel történik. Az ingatlanokat vízlágyítókkal is felszerelik. A házak 86 m2 nagyságúak, 15 m2 terasszal. Három hálószoba + nappali kialakításúak. Az utcafronti házhoz 330 m2 saját kert tartozik. A hátsó ingatlan 755 m2-es telekkel rendelkezik. Térkövezés bizonyos hányada, tereprendezés a vételár részét képezi. A Beruházó rugalmasságának köszönhetően belső módosításokra van lehetőség.

Családi ház részletei

Ár: 85 000 000 Ft
Méret: 86 négyzetméter
Azonosító: 11600261
Irodai azonosító: 392609
Cím: Nyugodt környezetben
Telek: 755 négyzetméter
Ingatlan állapota: Kitűnő
Jelleg: ikerház
Építőanyag: Tégla
Fűtés jellege: Cirkó
Fűtés módja: Gáz
Komfort fokozat: Összkomfort
Kor: Új építésű
Szintek száma: Földszintes
Egész szobák: 4

Egyéb jellemzők

  • Csatorna
  • Garázs
  • Pince
  • Terasz

Térkép


Így keressen budapesti ingatlant négy egyszerű lépésben. Csupán 2 perc, kötelezettségek nélkül!

Szűkítse a budapesti ingatlanok
listáját
Válassza ki a megfelelő
budapesti ingatlant
Írjon a hirdetőnek
Várjon a visszahívásra