Eladó családi ház Vasad 71 900 000 Ft

Leírás

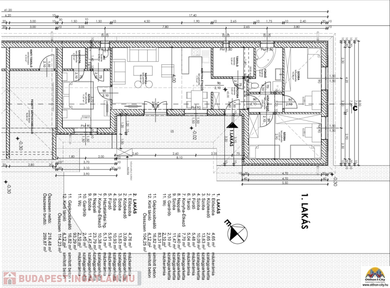
Modern ikerházak Vasad zöldövezetében – Budapest közvetlen közelében!

Eladó új építésű, kulcsrakész ikerházak Vasad legcsendesebb, forgalomtól mentes utcájában – egy zöldövezeti környezetben, ahol a nyugalom és a modern életstílus találkozik.
Az ingatlanok között fedett autóbeálló épül, így nincs közös fal, garantálva a teljes privát szférát és zajmentes életteret.

Otthon, amely minden igényt kielégít

Tágas, amerikai konyhás nappali

Teraszkapcsolatos nagy fedett terasz

Három külön hálószoba, az egyik saját gardróbbal

Két fürdőszoba – zuhanyzós és fürdőkádas kivitelben

Háztartási helyiség, saját garázs és tároló

Fenntarthatóság és energiahatékonyság

Korszerű hőszivattyús fűtés padlófűtéssel – alacsony rezsiköltség

ARISTON 100 literes okos vízmelegítő, amely igazodik a felhasználáshoz

Inverteres hűtő-fűtő klíma minden helyiségben

Kiemelkedő hőszigetelés: 12 cm aljzat, 10 cm grafitos homlokzat, 30 cm tetőfödém

Energiaosztály: AA – alkalmas Zöld Hitelre, CSOK Pluszra vagy Otthon Start programra

Családi ház részletei

Ár: 71 900 000 Ft
Méret: 103 négyzetméter
Azonosító: 11577532
Telek: 310 négyzetméter
Ingatlan állapota: Kitűnő
Jelleg: ikerház
Építőanyag: Kérdezzen rá a hirdetőtől »
Szintek száma: 1 szint
Egész szobák: 4

Egyéb jellemzők

  • Csatorna
  • Garázs
  • Kábel TV
  • Melléképület
  • Parketta
  • Pince
  • Terasz

Így keressen budapesti ingatlant négy egyszerű lépésben. Csupán 2 perc, kötelezettségek nélkül!

Szűkítse a budapesti ingatlanok
listáját
Válassza ki a megfelelő
budapesti ingatlant
Írjon a hirdetőnek
Várjon a visszahívásra