Eladó családi ház Vác 129 900 000 Ft

Leírás

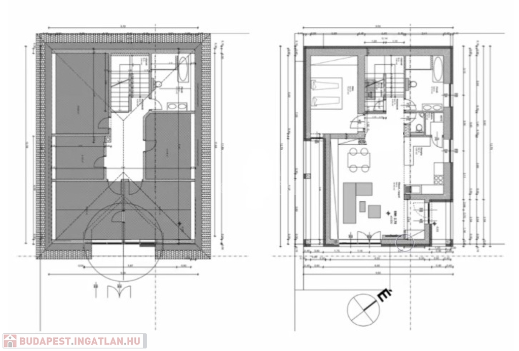
Eladó egy ÚJ 5+1 félszobás családi ház Vác, Deákvár városrészen!

A 179 m2-es teljesen felújított, DK-i tájolású családi ház egy 396 m2-es telken helyezkedik el. A ház földszinti részén tágas, világos nappali-konyha-étkező, egy hálószoba, fürdőszoba, WC, és kis tároló helyiség található. A tetőtérben 4 szoba és egy fürdőszoba van.

Műszaki tartalom:
- Az ingatlan B30-as téglából épült, kulcsrakész állapotban kerül átadásra.
- Víz, villany az épületben, gáz telken belül, csatorna nincs, 10 m3-es zárt rendszerű szennyvíztároló van a telken.
- Tető cseréppel fedve, alatta 25 cm -es szigeteléssel.
- Fűtés egy 12 kW-os hőszivattyúval, padlófűtéssel történik, és a melegvizet is ez állítja elő.
- Műanyag bukó-nyíló nyílászárók 3 rétegű üvegezéssel, és tetősík ablakok.
- Klíma 4 db
- 15 cm vastag grafitos szigetelés
- 3X16 A, éjszakai áram és 380 V áll rendelkezésre, valamint a hőszivattyúhoz 20 A
- elektromos kapu
- elektromos kiállás előkészítve: napelemhez a padlástérben, riasztóhoz és elektromos redőnyökhöz.
- Fürdőszobákban dupla mosdó
- A ház alatt 23 m-es, 2 helyiségből álló szuterénrész van, tárolásra, és ide kerül majd a hőszivattyú is.
- a nappalihoz egy 13 m-es terasz kapcsolódik, a tetőtéri szobákhoz egy 4 m2-es közös erkély van.

A telken található egy 25 m2-es garázs, amely automata kapuval zárható. Locsoláshoz egy udvari csap van kialakítva.

A belső burkolatok (csempe, járólap, parketta, szőnyeg) és a fürdőszobai szaniterek kiválasztása még hátravan – így a leendő tulajdonos lehetőséget kap arra, hogy valóban személyre szabott otthont alakítson ki, a saját stílusa és igényei szerint.

A telek mérete ideális, a környék infrastruktúrája pedig rendkívül kedvező. A deákvári városrész jól szervezett, kényelmes életteret kínál, ahol minden a közelben van – iskola, bolt, óvoda, buszmegálló, orvosi rendelők, piac, stb. – mégis megőriz valamit Vác barátságos hangulatából.

Az ár a ház adottságaihoz és a még kialakítandó belső megoldásokhoz igazított, így érdemes személyesen is megtekinteni és egyeztetni róla.

Lokáció:
Vác Budapesttől mindössze 30 km-re található, autóval az M2-es úton, vonattal pedig a Nyugati pályaudvarról (Budapest–Vác–Szob vonal) 25–35 perc alatt elérhető. Óránként indulnak buszjáratok Budapest Városkapuhoz és vissza. A városban több általános iskola, gimnázium, óvoda, kórház, üzletek és piac is megtalálható. A Duna-part, a barokk belváros és a zöldövezeti részek vonzóvá teszik mind az itt élők, mind a kiköltözők számára.

Szívesen állok rendelkezésére további információval!

Amiben segíteni tudjuk ingatlanvásárlását:
-ingyenes, bankfüggetlen hitelügyintézés (CSOK és Babaváró ügyintézése is.)
-jogi háttér
-földhivatali ügyintézés
-energetikai tanúsítvány elkészítése
-biztosítás
-belsőépítész
-költöztetés

Családi ház részletei

Ár: 129 900 000 Ft
Méret: 179 négyzetméter
Azonosító: 11554089
Irodai azonosító: 385554
Cím: Központi elhelyezkedés
Telek: 396 négyzetméter
Ingatlan állapota: Kitűnő
Jelleg: családi ház
Építőanyag: Tégla
Fűtés jellege: Geotermikus
Fűtés módja: Hőszivattyú
Komfort fokozat: Dupla komfort
Kor: Új építésű
Szintek száma: 1 szint
Egész szobák: 5
Fél szobák: 1

Egyéb jellemzők

  • Csatorna
  • Garázs
  • Pince
  • Terasz

Térkép


Így keressen budapesti ingatlant négy egyszerű lépésben. Csupán 2 perc, kötelezettségek nélkül!

Szűkítse a budapesti ingatlanok
listáját
Válassza ki a megfelelő
budapesti ingatlant
Írjon a hirdetőnek
Várjon a visszahívásra