Eladó családi ház Tótvázsony 145 000 000 Ft

Leírás

KERESED ÚJ OTTHONOD?
MEGTALÁLTAD!



A CASANETWORK VESZPRÉMI Ingatlaniroda
eladásra kínálja a 2377. referenciaszámú családi házat TÓTVÁZSONYBAN!



A Balaton és Veszprém is néhány percnyi
autóútra van, így ideális azoknak, akik a városhoz és azoknak is, akik a
strandokhoz közeli házat keresnek.



A ház 1876 négyzetméteres telken
található, így rengeteg helyet biztosít a kényelmes életvitelhez.



Kivételesen nagy
gondossággal megtervezett, megépített és karbantartott családi
ház, elbűvölő részletekkel, egy igazi harmonikus otthon.



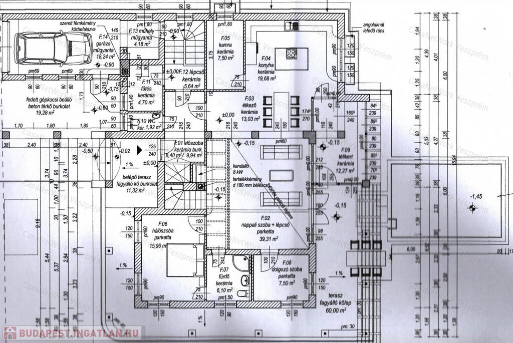
A lakótér: 325 m², három szinten.



A földszinten hálószoba, műhely, két
garázs, fürdőszoba, gépészet, közlekedő, tágas nappali- konyha-étkező, kamra, dolgozószoba
valamint egy télikert és egy nagy terasz.



Az emeleten található 2 hálószoba,
fürdőszoba, gardrób, nappali, loggia, galéria.



A pincében zeneszoba, mosókonyha,
fürdőszoba, és tárolók valamint egy közös pihenő tér található.



A ház kivitelezése során kiemelt
figyelmet fordítottak az energiatakarékos megoldásokra, ami azt jelenti, hogy
napelem, napkollektor, hűtő-fűtő klíma berendezések
kerültek felszerelésre, illetve cirkó gázkazánt és cserépkályhát építettek ki.



Az ingatlan ezért rendkívül alacsony
fenntartási energiaigényű, ami azt eredményezi, hogy a ház nagyon gazdaságosan
fenntartható, és ez nagy előnyt jelent a hosszú távú költségek szempontjából.



Az ingatlan egészére
jellemző az igényes kivitelezés, minőségi anyagok, egyedi burkolatok.



Elektromos
kapu van kiépítve, amely videós kaputelefonnal van ellátva.

Riasztórendszer is fel lett szerelve.



A családi ház különösen tágas teraszával
és gyönyörű kilátásával, ideális helyszínt biztosít a reggeli kávé vagy a
grillparti élvezetére.



A természetes fény beáramlása pedig
különleges varázslatot kölcsönöz a helynek.



Aki szeretné felfedezni a vidéket, jó kiindulópont
lehet.



Tehát aki igazi nyugalomra és természeti
szépségre vágyik, ez a családi ház TÓTVÁZSONYBAN tökéletes választás lehet.



Az ingatlan vásárlásához Falusi CSOK és
Babaváró hitel igényelhető.



Kiváló választás minden korosztály
számára, vagy akár befektetési célra is!



Amennyiben érdekeli az ingatlan, ne habozzon,
vegye fel velünk a kapcsolatot, és legyen ŐN az, akik élvezhetik ennek a
csodálatos otthonnak a kényelmét és szépségét.



Béndek Péter - Ingatlan-képviselő



+36 20 420 8120



CasaNetWork -  A civilizált
ingatlanértékesítés artériája!



Amennyiben hitelben is gondolkodik,
kollégám díjmentes, bank semleges ügyintézéssel áll rendelkezésére.

Családi ház részletei

Ár: 145 000 000 Ft
Méret: 325 négyzetméter
Azonosító: 11589122
Irodai azonosító: 156202377
Telek: 1876 négyzetméter
Ingatlan állapota:
Jelleg: családi ház
Építőanyag: Tégla
Fűtés jellege: Cirkó
Fűtés módja: Gáz
Komfort fokozat: Dupla komfort
Egész szobák: 7

Így keressen budapesti ingatlant négy egyszerű lépésben. Csupán 2 perc, kötelezettségek nélkül!

Szűkítse a budapesti ingatlanok
listáját
Válassza ki a megfelelő
budapesti ingatlant
Írjon a hirdetőnek
Várjon a visszahívásra