Eladó családi ház Tordas 170 000 000 Ft

Leírás

VIDEÓ ELÉRHETŐ!

TORDAS csendes, erdővel határolt részén ELADÓ egy külön bejárttal rendelkező 2 lakásos CSALÁDIHÁZ. Az ingatlan kiváló elrendezéssel és műszaki adottságokkal bír.


TELEK:
1000 négyzetméter rendezett, nagy méretű telken fúrt kút, vasbeton medencealap, automata öntözőrendszer, melléképület (kb. 25 nm) is található.

HELYISÉGEK:
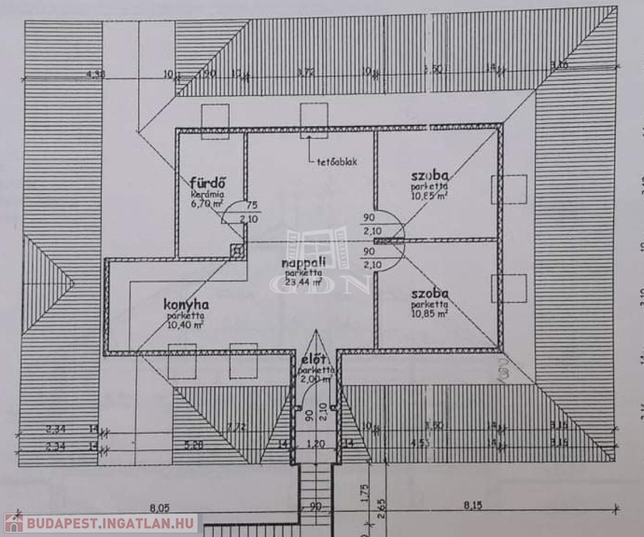
Földszint:
- amerikai konyhás nappali (54 nm)
- 3 szoba (12,13,16 nm)
- Mosókonyha (3 nm)
- Fürdőszoba (9 nm)
- Külön WC (2 nm)
- Tároló (3 nm)
- 2 Terasz (14,18 nm)

GARÁZS: 36 nm, 2 állásos, fűtött

Tetőtér:
- amerikai konyhás nappali (35 nm)
- 2 szoba (11,11 nm)
- Fürdőszoba, WC (7 nm)
- Tároló

MŰSZAKI ADATOK:
- Fűtés: cirkós gázfűtés, infrapanel, padlófűtés
- Klíma: minden szobában van (tetőrben hűtő-fűtő)
- Falak: 30 cm vastag Porotherm téglából
- Válaszfalak: Porotherm tégla
- Szigetelés: 8 cm
- Tető: cserépfedés

KÖRNYÉK:
Tordas az ország egyik legbiztonságosabb települése, ahol lovarda, sportközpont, kerékpárút, horgásztó és gyönyörű, csendes környezet fogadja az ide hazajárókat.

INFRASTRUKTÚRA:
A háztól rövid sétával elérhető az iskola, óvoda, orvosi rendelő, sportközpont, bolt és étterem, valamint a közelben található a Western falu élménypark is.

KÖZLEKEDÉS:
Autóval 5 perc az M7-es autópálya, 20 perc alatt elérhető az M4-es metró kelenföldi végállomása, illetve az onnan induló villamosok. Buszmegálló 7 perc sétára van, amivel 10 perc Martonvásár és a vasútállomásról 25 perc a Budapest Déli pályaudvar.

Ideális választás összeköltözőknek, nagycsaládosoknak vagy azoknak, akik a sajátjuk mellett egy különálló, kiadható lakás vásárlásában is gondolkodnak.
Mindenkinek ajánlom, aki egy befogadó, nyitott közösséget keres családjával ebben a csodálatos zöld környezetben, közel a fővároshoz.

Jöjjön el, nézze meg és nem fog csalódni!

AMENNYIBEN NEM RENDELKEZIK A TELJES VÉTELÁRRAL, segítünk Önnek megtalálni a legjobb megoldást!
BANKFÜGGETLEN hitelcentrumunk minden elérhető bank és hitelintézet ajánlatát versenyezteti az Ön kedvéért, ráadásul díjmentesen. Önnek nincs más dolga, mint elbeszélgetni munkatársunkkal, aki a hallott információk alapján versenyre hívja a bankokat, hogy Ön hosszú távon is a legjobb konstrukciót kaphassa. A legjobb ajánlatokból végül Ön választhatja ki a nyertest. Munkatársaink sokéves szakmai tapasztalattal várják Önt, előre egyeztetve akár a normál munkaidő után is.

Családi ház részletei

Ár: 170 000 000 Ft
Méret: 223 négyzetméter
Azonosító: 11428465
Irodai azonosító: 371811
Cím: Tordas
Telek: 1000 négyzetméter
Ingatlan állapota: Átlagos
Jelleg: családi ház
Építőanyag: Tégla
Fűtés jellege: Cirkó
Fűtés módja: Gáz
Komfort fokozat: Összkomfort
Kor: 21-50 éves
Szintek száma: 1 szint
Egész szobák: 5
Fél szobák: 2

Egyéb jellemzők

  • Csatorna
  • Garázs
  • Pince
  • Terasz

Térkép


Így keressen budapesti ingatlant négy egyszerű lépésben. Csupán 2 perc, kötelezettségek nélkül!

Szűkítse a budapesti ingatlanok
listáját
Válassza ki a megfelelő
budapesti ingatlant
Írjon a hirdetőnek
Várjon a visszahívásra