Eladó családi ház Töltéstava 79 900 000 Ft

Leírás

Most még alakítható, új építésű otthon Győr közelében!

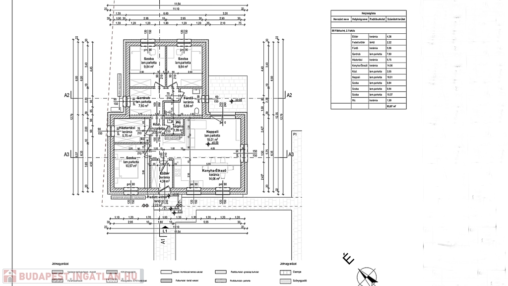
Győrtől, Auditól és az Ipari Parktól 10 perc távolságra Töltéstava csendes, aszfaltos új utcájában kínálok Önnek egy 93,87 m2-es, külön bejáratú házat.
A két ház egy 1501 m2-es telekre épül, mindkettő saját kerítéssel körbe keríthető, közös területük nincs. Most még mindkét ház eladó.

A házhoz tartozó telekhányad 750 m2.

A ház helyiségei: amerikai konyhás nappali, 3 hálószoba, fürdő WC-vel, külön WC, kamra, háztartási helyiség, gardrób, előszoba, közlekedő, előtér, fedett előtér.

Az ár emelt szintű FŰTÉSKÉSZ állapotra vonatkozik, tartalmazza a telekhányadot ( 8 millió forint.)

Várható átadás 2026. ősz

Minőségi anyagok, megbízható, számos referenciával rendelkező kivitelező!

Műszaki tartalom:
- főfalak: 30-as Bakonytherm N+F
- válaszfalak: 10-es Bakonytherm 10/50 N+F
- könnyűszerkezetes fa födém
- tetőfedés Terran Synus betoncseréppel
- 3 rétegű üveggel ellátott fehér műanyag ablakok
- 5 ponton záródó biztonsági bejárati ajtó
- Hőszigetelés: homlokzaton 20 cm
- padló 10 cm lépésálló szigetelés
- födémen 30 cm üveggyapot szigetelés
- fűtés és meleg víz kondenzációs gázkazánnal, hőleadás padlófűtéssel
- 1 db KLÍMA

Egyéni elképzelések készültségi foktól függően még figyelembe vehetőek.
Kerti csap, hőszivattyú, riasztó-előkészítés, redőny előkészítés, térkövezés megegyezés alapján rendelhető.

Kulcsrakész befejezés kérhető! KULCSRAKÉSZ ÁR: 87.900.000,- Ft, mely tartalmazza az alábbiakat:
- hideg - és meleg burkolatok
- csapok és szaniterek
- a szobákban laminált parketta, a többi helyiségben járólap
- modern gondozás mentes beltéri ajtók
- villanykapcsolók és konnektorok
- glettelt, fehérre festett falak

Kamattámogatott hitelek, CSOK, babaváró is igénybe vehető.
Hitelügyintézés, tanácsadás ingyenesen, profi szakemberrel.

Hívjon mielőbb, ritka lehetőség!20/2777237

Családi ház részletei

Ár: 79 900 000 Ft
Méret: 94 négyzetméter
Azonosító: 11581533
Irodai azonosító: 123387
Cím: Töltéstava
Telek: 750 négyzetméter
Ingatlan állapota: Szerkezetkész
Jelleg: családi ház
Építőanyag: Kérdezzen rá a hirdetőtől »
Fűtés jellege: Cirkó
Kor: Új építésű
Egész szobák: 4

Egyéb jellemzők

  • Terasz

Így keressen budapesti ingatlant négy egyszerű lépésben. Csupán 2 perc, kötelezettségek nélkül!

Szűkítse a budapesti ingatlanok
listáját
Válassza ki a megfelelő
budapesti ingatlant
Írjon a hirdetőnek
Várjon a visszahívásra