Eladó családi ház Töltéstava 78 000 000 Ft

Leírás


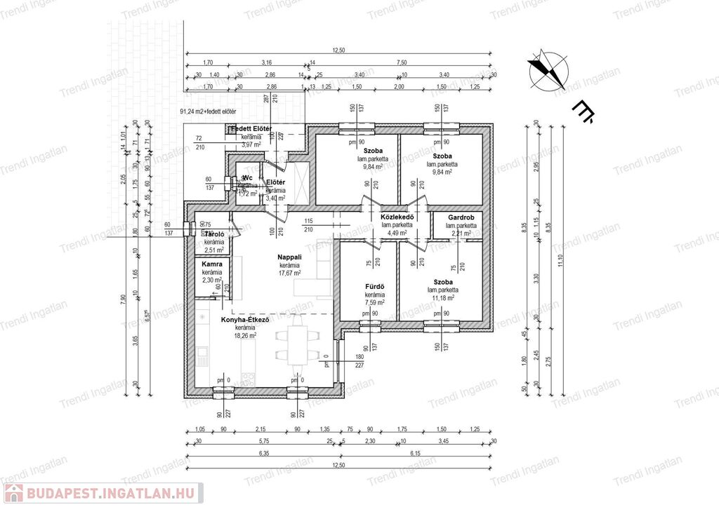
Töltéstava csendes utcájában, a Pannonhalmi Főapátságra néző 91,32 nm-es, nappali + 3 szobás ikerház 750 nm-es telekrészen eladó.

A remek elosztású házban tágas amerikai konyhás nappali, 3 szoba, fürdőszoba, kamra, tároló, külön WC, előtér, közlekedő található.

A ház 30-as falazóelemből, 15 cm-es homlokzati szigeteléssel, Terrán Synus betoncseréppel fedve, 3 rétegű műanyag, hőszigetelt üvegezésű nyílászárókkal kerül kivitelezésre. Az ingatlan fűtését turbó-kombi gázkazán biztosítja, minden helyiségben padlófűtéssel. A házba hűtő-fűtő klíma kerül felszerelésre. Felár ellenében hőszivattyús fűtés, kerti csap, riasztó előkészítés, klíma- és redőnyelőkészítés, térkövezés stb. kérhető. A ház belső elrendezése a készültségi fokhoz mérten még változtatható.

Fűtéskész átadás várható ideje: 2026 tavasz

Az ingatlan fűtéskész ára: 78.000.000 Ft. 

Kulcsrakész befejezés kérhető. Kulcsrakész ár: 86.200.000 Ft.

Az ár tartalmazza a telek árát is.

Bővebb információkért forduljon hozzám bizalommal.

Hétköznap és hétvégén is várom hívását!

Díjmentes, bankfüggetlen hitelügyintézéssel állunk rendelkezésére.

Családi ház részletei

Ár: 78 000 000 Ft
Méret: 91 négyzetméter
Azonosító: 11537462
Irodai azonosító: 196400729
Telek: 750 négyzetméter
Ingatlan állapota: Kitűnő
Jelleg: ikerház
Építőanyag: Tégla
Komfort fokozat: Összkomfort
Kor: Új építésű
Egész szobák: 4

Így keressen budapesti ingatlant négy egyszerű lépésben. Csupán 2 perc, kötelezettségek nélkül!

Szűkítse a budapesti ingatlanok
listáját
Válassza ki a megfelelő
budapesti ingatlant
Írjon a hirdetőnek
Várjon a visszahívásra