Eladó családi ház Tatabánya 125 000 000 Ft

Leírás

Az Openhouse Tatabánya Ingatlaniroda kínálatában eladó a #176792 hivatkozási számú tatabányai sorház.

Tatabánya egyik legkeresettebb városrészében DÓZSAKERTBEN, a Hársfaliget lakóparkban elérhetőek új építésű, modern sorházi lakások. Az 5 lakásos sorház otthonai emeltszintű fűtéskészen vagy igény esetén kulcsrakészen is átvehetők.


Lakások főbb adatai




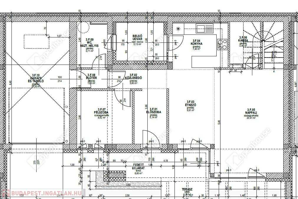
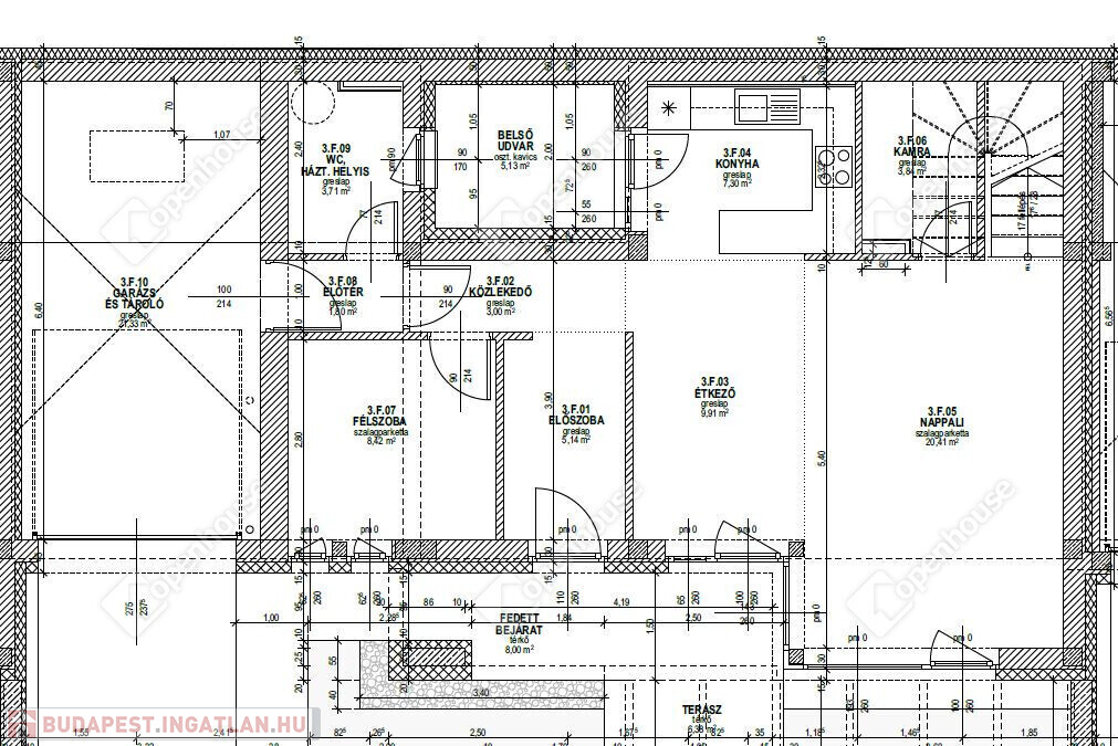
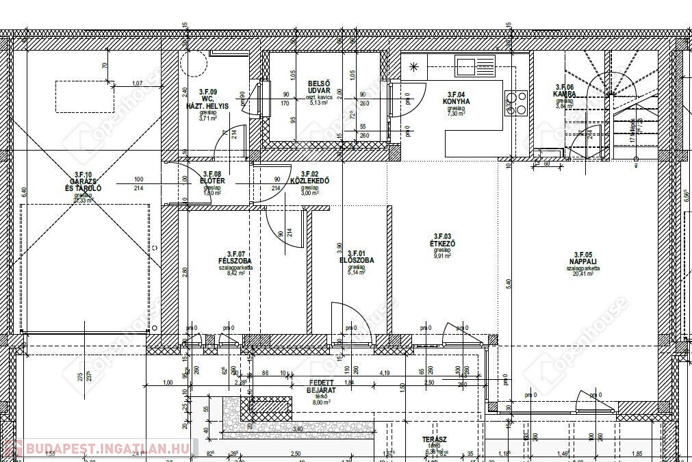
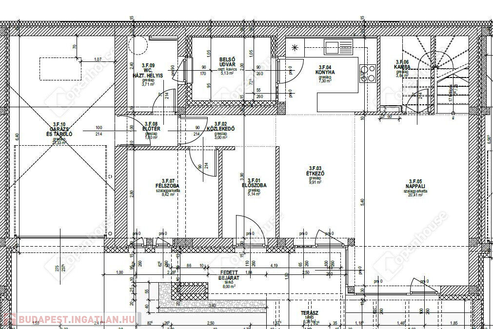
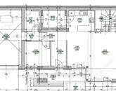
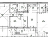
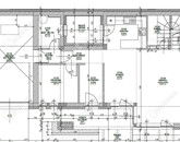
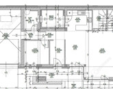
Alapterület: 143,06– 151,96 m²




Helyiségek: nappali + étkező + konyha, 3 hálószoba, fürdőszoba, külön WC, háztartási helyiség, terasz, saját kertkapcsolat




Parkolás: garázs és/vagy kocsibeálló




Telekméret: 208,69-472,69 m² (lakásonként változó)




Műszaki tartalom




Korszerű falszerkezet: 30 cm főfalak + 15 cm grafitos szigetelés




Nyílászárók: 3 rétegű hőszigetelt ablakok, redőnytokkal előkészítve




Fűtés-hűtés: Midea hőszivattyús multi-split klímarendszer minden fő helyiségben




Melegvíz: 200 literes villanybojler




Fürdőszoba: elektromos padlófűtés + törölközőszárítós radiátor




Tető: nyeregtető, cserépfedéssel




Terasz: térkövezett




Árak




Fűtéskészen: 92.000.000 Ft + telekár (8–12 millió Ft)




Kulcsrakészen: 107.000.000 Ft + telekár (8–12 millió Ft)




Lokáció – Miért Hársfaliget?




Nyugodt, családbarát környezet




Zöldövezet, mégis közel a városközponthoz




Könnyű közlekedés Budapest és Győr irányába




Új építésű, modern lakóövezet, rendezett környezettel




Miért érdemes választani?




Új építésű, garanciális ingatlan




Energiahatékony megoldások, alacsony fenntartási költségek




Modern építészeti kialakítás, igény szerint személyre szabható belső terek




Befektetésnek és saját otthonnak is tökéletes választás




A pontos műszaki leírást és részletes információt személyes találkozó alkalmával kaphat!


Érdeklődni és megtekintést egyeztetni:
Szlezák-Forgó Barbara – +36 70 620 4097

Ha felkeltette érdeklődését ez az eladó tatabányai sorház, vagy bármely más sorház és bővebb információt szeretne, keressen bizalommal.Hivatkozási szám: #176792

Az Openhouse Tatabánya Ingatlaniroda tagjaként várom Önt az országos hálózatunk teljes kínálatával.

A sorház vásárláshoz hitelt igényelne? Ingyenes hitelközvetítéssel segít Önnek bankfüggetlen hitelszakértőnk.

További szolgáltatásainkkal (pl. értékbecslés, energetikai tanúsítvány, jogi háttér) is segítjük Önt a vásárlásban.
Az otthon érték. Az ingatlan üzlet.

Az energetikai tanúsítvány készítése folyamatban van, amint rendelkezésre áll, úgy azzal a hirdetés frissítésre kerül.



125000000 Ft
Szlezák-Forgó Barbara
kiemelt értékesítő
0670 620 4097

Referencia szám: 176792

Családi ház részletei

Ár: 125 000 000 Ft
Méret: 124 négyzetméter
Azonosító: 11561640
Irodai azonosító: 176792-5023678
Telek: 228 négyzetméter
Ingatlan állapota: Épülő
Jelleg: sorház
Építőanyag: Tégla
Fűtés jellege: Villany
Fűtés módja: Hőszivattyú
Komfort fokozat: Összkomfort
Kor: Új építésű
Szintek száma: Földszintes
Egész szobák: 5

Egyéb jellemzők

  • Garázs

Térkép


Így keressen budapesti ingatlant négy egyszerű lépésben. Csupán 2 perc, kötelezettségek nélkül!

Szűkítse a budapesti ingatlanok
listáját
Válassza ki a megfelelő
budapesti ingatlant
Írjon a hirdetőnek
Várjon a visszahívásra