Eladó családi ház Tata 189 000 000 Ft

Leírás

TERMÉSZETKÖZELI ELEGANCIA TATÁN – AHOL A NYUGALOM ÉS A DESIGN TALÁLKOZIK

Ha mindig is olyan otthonra vágytál, ahol a modern kényelem és a természet harmóniája egyszerre vesz körül, ez a ház szerelem lesz első látásra.
A közkedvelt Fényes Lakópark sorházi részén kínáljuk megvételre ezt a különleges, ízlésesen megtervezett otthont, amely a nyolc sorház közül az egyik legjobb elhelyezkedésű és ,legnagyobb, 440 m²-es telekkel büszkélkedik.
A ház 2021-ben épült, és 2023-ban kapta meg a használatbavételi engedélyét – minden részletében átgondolt, minőségi kivitelezéssel.
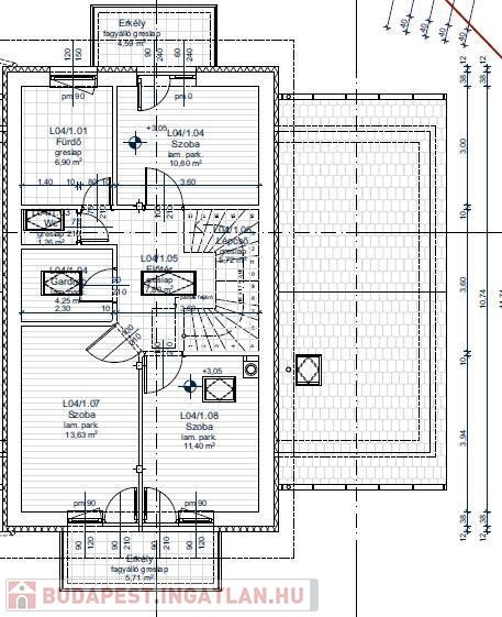
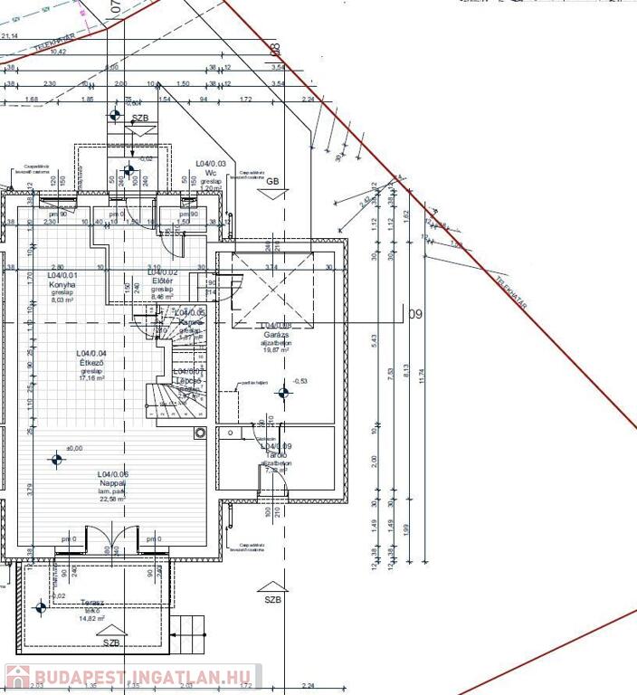
Összesen 170 m² hasznos alapterületű.
Ebből:
Lakótér: 151 m²
Garázs: 19,87 m²
Tároló / mosókonyha: 7,32 m²
Beépített télikert: 14,82 m²
Téliesített, fedett terasz: 15 m²
Telek:440m2
EGY OTTHON, AMI MINDEN NAP FELTÖL
Az ingatlan mondhatni, hogy kuriózumnak számít, ugyanis természetvédelmi terület szomszédságában található. Illetve a sorházak kialakításának köszönhetően, (nincs közös fal, csak a garázsok érnek össze) így az intimitás és a csend garantált.
Amint belépsz, az otthon melege és az ízléses enteriőr azonnal magával ragad. A világos, tágas nappali a kerttel és a hangulatos, üvegezett télikerttel nyílik egybe – innen rálátsz a parkosított kertre és a zöldre, ahol gyakran őzek néznek be a kerítésen.
Az utólag kialakított télikert elektromos padlófűtéssel és hűtő-fűtő klímával egész évben tökéletes pihenőhely – akár egy jó kávé mellé reggel, akár egy pohár bor mellé este.
Az alsó szinten található még egy zuhanyzós fürdőszoba, egy speiz és egy praktikusan kialakított konyha.
Az alsó szintről megközelíthető a külön egységben található garázs és mosókonyha is.
A felső szinten három hálószoba és egy gardrób vár, a két szobából közvetlenül kiléphetsz a fedett erkélyre, ahonnan a természet látványa minden nap új békét ad.
A ház minden részlete minőségről árulkodik: spanyol és olasz burkolatok, egyedi konyhabútor, két beépített sütő (az egyik egy mikróval kombinált ,a másik egy gőzfunkciós sütő), dizájntapéták, tölgyfa bútorok, és minden helyiségben klíma.
A kert parkosított, öntözőrendszerrel felszerelt, teljesen intim.
Itt a kertben található még egy fedett téliesített terasz is (ha a télikert kevés lenne) és természetesen egy kis fából készített szerszámtároló is.
A garázs mellett van még két autóbeálló is a ház előtt, így három kocsi is kényelmesen elfér.
MŰSZAKI TARTALOM ÉS EXTRÁK:
• Kiváló hőszigetelés, 7 kamrás, 3 rétegű nyílászárók
• Kombi kondenzációs gázkazán – télen fűtéssel és melegvízzel együtt kb. 20 000 Ft/hó, nyáron csak 3 000 Ft
• Padlófűtés a földszinten és a hidegburkolatos helyiségekben
• Radiátoros fűtés az emeleti hálószobákban, garázsban és mosókonyhában
• Klíma minden helyiségben
• Távirányítós redőnyök és plisszé szúnyoghálók minden ablakon
• Spanyol és olasz burkolatok, egyedi angol dizájntapéták (pl. 3D mosható bambusz tapéta az előszobában)
• Egyedi konyhabútor beépített elszívós főzőlappal, két sütővel (gőzölős + mikro kombi)
• Geberit szaniterek, Hansgrohe csaptelepek
• Riasztóval felszerelt

A bútorok pedig a vételár részét képezik, így a beköltözés valóban csak egy döntés kérdése.
KÖRNYÉK, KÖRNYEZET:

A Fényes Lakópark Tata egyik legkedveltebb, új építésű városrésze, ahol a kertvárosias életérzés és a belváros közelsége kéz a kézben jár.
A környezet nyugodt, családias, a lakóközösség új és összetartó.
Mindössze egy karnyújtásnyira található a Tatai Öreg-tó és a Vár, valamint az új városközpont, ahol Lidl, Interspar és több bevásárlóközpont is gyorsan elérhető.
Budapestről és Győrből az M1-es autópályán mindössze egy óra alatt kényelmesen megközelíthető (kb. 60 km).

Ha Ön és családja egy modern, természetközeli otthont keres, ahol minden részlet harmóniában van, ez az ingatlan tökéletes választás lehet.
Amiben pedig irodánk az Önök segítségére lesz:
-Teljes körű, INGYENES bank független tanácsadás és ügyintézés!
-Szerződés előkészítése
-CSOK+ hitel ügyintézés!
-Otthon Start hitel ügyintézés
egy helyen az Ön kényelme érdekében…

Ha Ön sem szeretne lemaradni erről a különleges ajánlatról, hívjon bizalommal, és nézzük meg együtt ezt a varázslatos otthont!

Szabó Szilvia – Dot-Ing Ingatlaniroda
Tel.: +36 70 367 7636

Családi ház részletei

Ár: 189 000 000 Ft
Méret: 170 négyzetméter
Azonosító: 11576109
Irodai azonosító: 9538
Cím: Tata
Telek: 440 négyzetméter
Ingatlan állapota:
Jelleg: sorház
Építőanyag: Kérdezzen rá a hirdetőtől »
Fűtés jellege: Cirkó
Egész szobák: 4

Így keressen budapesti ingatlant négy egyszerű lépésben. Csupán 2 perc, kötelezettségek nélkül!

Szűkítse a budapesti ingatlanok
listáját
Válassza ki a megfelelő
budapesti ingatlant
Írjon a hirdetőnek
Várjon a visszahívásra