Eladó családi ház Tapolca 133 900 000 Ft

Leírás

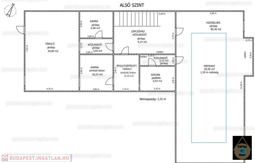
Impozáns 3 szintes családi ház!

Ingatlanirodánk eladásra kínálja ezt a tapolcai családi házat!

- Tapolca a Balaton-felvidéknek köszönhetően kedvelt turisztikai város.
- Az ingatlant adottságai alkalmassá teszik több generáció együttélésére vagy akár panzióztatásra is.

- Összesen 4 fürdőszoba, 7 szoba és 2 nappali található benne.
- Az alsó szinten található medence, szauna, épületgépészet, és számos tároló helyiség.
- Ezen felül az ingatlanhoz tartozik még:
- Dupla fűtött garázs
- Elektromos kapu
- Kamera és riasztó rendszer
- Ipari áram

- A csodálatos Tanú hegyek (Badacsony, Szent György-hegy, Tóti-hegy, Csobánc...) pár percnyire található, akárcsak a Balaton part (Badacsony, Szigliget, Ábrahámhegy stb.)


Amennyiben a veszprémi GDN Ingatlaniroda által kínált vendégház , vagy bármely, a kínálatunkban található ingatlan felkeltette érdeklődését, forduljon hozzám bizalommal!

Ingatlanirodánk díjmentes, banksemleges hitelügyintézéssel, illetve ügyvédi tanácsadással is áll Ügyfeleink rendelkezésére!

Családi ház részletei

Ár: 133 900 000 Ft
Méret: 574 négyzetméter
Azonosító: 11424851
Irodai azonosító: 373623
Cím: Toldi Miklós utca
Telek: 924 négyzetméter
Ingatlan állapota: Átlagos
Jelleg: családi ház
Építőanyag: Tégla
Fűtés jellege: Cirkó
Fűtés módja: Gáz
Komfort fokozat: Dupla komfort
Kor: 21-50 éves
Szintek száma: 2 szint
Egész szobák: 7

Egyéb jellemzők

  • Csatorna
  • Garázs
  • Pince
  • Terasz

Térkép


Így keressen budapesti ingatlant négy egyszerű lépésben. Csupán 2 perc, kötelezettségek nélkül!

Szűkítse a budapesti ingatlanok
listáját
Válassza ki a megfelelő
budapesti ingatlant
Írjon a hirdetőnek
Várjon a visszahívásra