Eladó családi ház Tápiószele 89 900 000 Ft

Leírás

A CASANETWORK  CEGLÉD  eladásra kínálja a 174601992 számú TÁPIÓSZELEI ÚJ ÉPÍTÉSŰ 135 m2-es CSALÁDI HÁZAT.

ELADÓ TÁPIÓSZELÉN a főútról nyíló csendes kis utcában épülő nettó 135 m2-es CSALÁDI HÁZ. 

A településen méltán híres KÓRÉ CUKRÁSZDA közelében bújik meg a telek, ahol 2025-ös költözéssel tudja megvásárolni az épülő bruttó 162,9 nm-es nappali + 3 szobás garázsos családi házát, rendkívül kedvező áron és magas minőségben elkészült új otthonát. A tervezésnél figyelembe lett véve, hogy a család minden tagjának legyen privát helyisége, emellett az élettér is tágas. Az egy légtérű konyha, étkező és nappali ideális családi programokra. Szintén figyelembe lett véve az is, hogy a lakóépület ne kerüljön az utca frontra. Az 1270 m2-s telken az épület elött előkert kerül kialakításra. A családi ház kivitelezésénél elsőszámú szempont a modern energia igényeknek való megfelelés és az egyedi telek legjobb kihasználása. A házak tervezésénél és kivitelezésekor az egyedi telek adta lehetőségek maximális kihasználása a legfőbb szempont, valamint, hogy a lehető legtöbb természetes fény jusson be a ház nagy tereibe. Ezért az épületekbe nagy felületű fa nyílászárók kerültek, melyek maximálisan biztosítják a természetes fény és a panoráma kihasználását a legmagasabb minőség mellett. FONTOS ,hogy az ingatlan minden modern előírásnak és igénynek megfelel. A kulcsrakész új házzal kapcsoltban van a vevőnek extra kérése ( természetesen felárért ) akkor az kivitelezhető. Illetve ha olyan jellegű kérés van , hogy az alaprajzon változtatna akkor a kivitekető nyitott a módosításra. Természetesen ez a változtatás csak a munkálatok kezdete elött kivitelezhető. 

Műszaki tartalom:

- Porotherm N+F falazat

- 15 cm-es hőszigetelő rendszer.

- helyiségeként szabályozható padlófűtés

- 15 cm padló hőszigetelés

- 3 rétegű nyílászárók

- teljesen hőhídmentes tervezés és kivitelezés

- garázs + autóbeálló

- rejtett tokos, motoros redőny rendszer előkészítés

- kamera rendszer előkészítés

- hőszivattyú

- napelem előkészítés

Átadás 2025 ősszén, de már most leköthető.

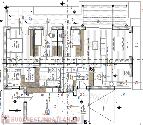
HELYISÉGEK:

- nappali + konyha + étkező   38.61 m2

- előtér   4.81 m2

- folyosó   5.74 m2

- háztartási helyiség   5.35 m2

- zuhanyzó   3.71 m2

- fürdő   5.83   m2

- gardrób   5.35   m2

- szülői háló   17.03 m2

- gyerek háló   9.5 m2

- gyerek háló   9.5 m2

- kamra   1.76 m2

- szélfogó   5.29 m2

- garázs   23.02 m2

- Nettó : 135.5 m2

Irodánk teljes körű segítséget tud nyújtani hitelekhez és az összes államilag finanszírozott családi támogatásokhoz!

Ha felkeltette érdeklődését, hívjon bátran és szívesen megmutatom!

Megtekintése kizárólag előre egyeztetett időpontban lehetséges!

Eladó ingatlana van? Hirdesse meg Nálam! 

Amennyiben a 174601992 számú A CASANETWORK CEGLÉD által kínált LAKÁS, ÉPÍTÉSI TELEK, CSALÁDI HÁZ vagy bármely a kínálatunkban található INGATLAN felkeltette érdeklődését, hívjon a megadott telefonszámon. /A hirdetésben szereplő információk a megbízótól kapott adatok alapján készültek, pontosságukért felelősséget nem vállalunk!/

CasaNetWork - Ingatlanban otthon vagyunk!



Családi ház részletei

Ár: 89 900 000 Ft
Méret: 135 négyzetméter
Azonosító: 11493914
Irodai azonosító: 174601992
Telek: 1270 négyzetméter
Ingatlan állapota: Átlagos
Jelleg: családi ház
Építőanyag: Tégla
Komfort fokozat: Összkomfort
Bútorozott: Nem bútorozott
Egész szobák: 4

Így keressen budapesti ingatlant négy egyszerű lépésben. Csupán 2 perc, kötelezettségek nélkül!

Szűkítse a budapesti ingatlanok
listáját
Válassza ki a megfelelő
budapesti ingatlant
Írjon a hirdetőnek
Várjon a visszahívásra