Eladó családi ház Tápiószele 64 900 000 Ft

Leírás

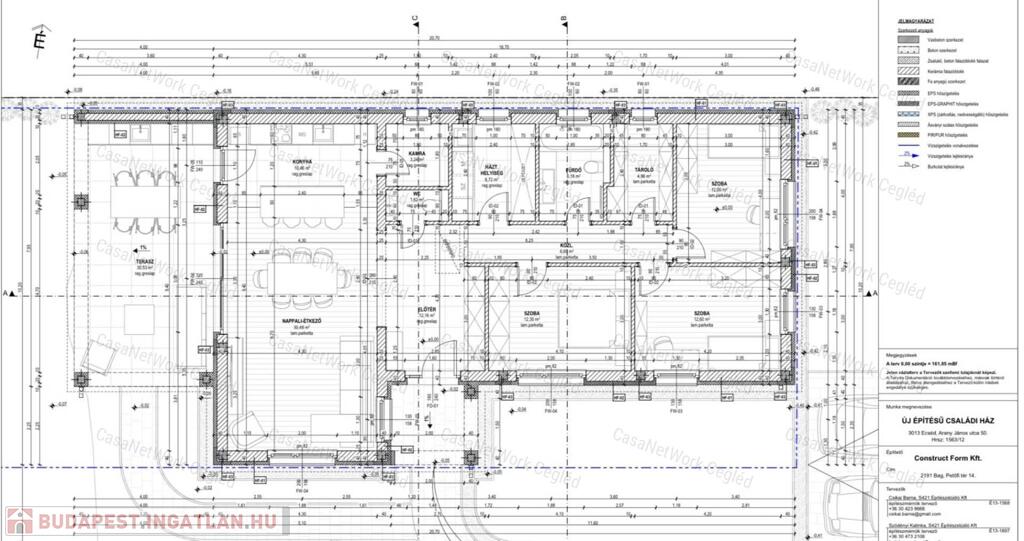
A CASANETWORK CEGLÉD eladásra kínálja - látványtervek alapján -  a 174602212 számú Pest megyében, Tápiószele városban lévő 119 m2 alapterületű  CSALÁDI HÁZAT, ami egy 1140 m2-es rendezett, körbekerített telken helyezkedik el.

 A HÁZ kivitelezése maximum 10 hónapot vesz igénybe az előszerződést követően.

Az ingatlan jellemzői:

– amerikai konyhás nappali

– 3 hálószoba

– fürdőszoba

– külön WC

– háztartási helyiség

– terasz

A ház energiatakarékos kivitelezésben épül, korszerű hőszivattyús fűtéssel, padlófűtéssel.

CSOK Plusz és Otthon Start igénybe vehető!

Főbb műszaki jellemzők

– 30-as nútféderes tégla falazat

– fa födém

– antracit betoncserép tetőhéjazat

– 15 cm EPS homlokzati szigetelés

– 10 cm Austrotherm AT-N100 padlószigetelés

– 25 cm ásványgyapot födémszigetelés

– 6 légkamrás, 3 rétegű üvegezésű nyílászárók

– 10 kW monoblockos hőszivattyú

– padlófűtés

Választható műszaki tartalom (alapárban)

– hidegburkolat: 3.000 Ft/m²-ig

– melegburkolat: 3.000 Ft/m²-ig

– csaptelepek: 15.000 Ft/db-ig

– kád vagy zuhany: 40.000 Ft-ig

– beltéri ajtók: 35.000 Ft/db-ig

Magasabb árkategóriás anyagok is választhatók a különbözet finanszírozásával.

Elektromos kiépítés

– szobák: 3 db konnektor

– nappali: 4 db konnektor + internet és kábeltévé kiállás

– konyha: 6 db konnektor

– világítás: helyiségenként 1 db

– kábeltévé előkészítés

– riasztó előkészítés

– kapumozgató elektronika előkészítés

Megtekintése előre egyeztetett időpontban lehetséges!

Amennyiben a174602212 számú, a  CASANETWORK CEGLÉD által kínált CSALÁDI HÁZ vagy bármely a kínálatunkban található INGATLAN felkeltette érdeklődését, hívjon a megadott telefonszámon. /A hirdetésben szereplő információk a megbízótól kapott adatok alapján készültek, pontosságukért felelősséget nem vállalunk!/

Irodánk teljes körű segítséget tud nyújtani hitelekhez és az összes államilag finanszírozott családi támogatásokhoz!

Kollégám díjmentes, bank semleges hitel ügyintézéssel áll rendelkezésre.

CASANETWORK - Ingatlanban otthon vagyunk!


Családi ház részletei

Ár: 64 900 000 Ft
Méret: 119 négyzetméter
Azonosító: 11597101
Irodai azonosító: 174602212
Telek: 1140 négyzetméter
Ingatlan állapota: Kitűnő
Jelleg: családi ház
Építőanyag: Tégla
Fűtés jellege: Geotermikus
Komfort fokozat: Összkomfort
Bútorozott: Nem bútorozott
Egész szobák: 4

Így keressen budapesti ingatlant négy egyszerű lépésben. Csupán 2 perc, kötelezettségek nélkül!

Szűkítse a budapesti ingatlanok
listáját
Válassza ki a megfelelő
budapesti ingatlant
Írjon a hirdetőnek
Várjon a visszahívásra