Eladó családi ház Tápiószele 29 210 000 Ft

Leírás

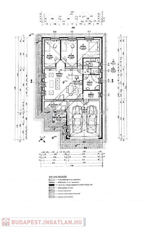
Kiváló lehetőség épülő szerkezetkész családi ház, fejezebbe álmai otthonát úgy ahogy megálmodta !!Eladó 100-nm-es épülő szerkezetkész önálló családi ház dupla garázzsal az ingatlanban 979 nm-es telken 3 szoba + amerikai konyhás nappali, Tápiószele csendes nyugodt kertvárosi részén !!!! Az ingatlanban kalakításra kerül 3 szoba + amerikai konyhás nappali ,fürdőszoba, külön wc, kamra, háztartási helyiség, dupla garázzsal !!Szerkezetkészség tartalmazza:-Az alapot .-A 4 m2-es teraszt burkolat nélkül;-Tartófalakat és válaszfalakat;-Tetőszerkezetet, cserepet cserepezéssel.A kivitelező igény szerint vállalja az ingatlan teljes befejezését megegyezés utáni árban , akár 8-hónapos költözéssel !!A kivitelező cég így magánszemély az ÁFÁT vissza tudja igényelni !Az ingatlan a szakmában nagy szaktudással bíró kivitelezőtől, prémium minőségben, első osztályú anyagokból.REFERENCIA MUNKÁKKAL A HÁTTÉRBEN!Ceglédi DUNA HOUSE ügyfeleink részére ingyenesen vállalja, a megegyezés sikeres lebonyolítását, JOGI tanácsadást, illetve teljeskörű CSOK és HITELÜGYINTÉZÉST. Kérje ingyenes tájékoztatásunkat! A kínálatunkban található összes ingatlannal kapcsolatban felvilágosítást tudunk nyújtani, További információkkal és megtekintéssel kapcsolatban várom megtisztelő hívását !!Ha van eladó ingatlanja és szeretné magas minőségben, és a legjobb áron értékesíteni, AKKOR KERESSEN BIZALOMMAL!

Családi ház részletei

Ár: 29 210 000 Ft
Méret: 100 négyzetméter
Azonosító: 11280255
Irodai azonosító: HZ078447-4289455
Telek: 979 négyzetméter
Ingatlan állapota: Átlagos
Jelleg: családi ház
Építőanyag: Tégla
Fűtés jellege: Villany
Fűtés módja: Villany
Kor: Új építésű
Szintek száma: Földszintes
Egész szobák: 4

Térkép


Így keressen budapesti ingatlant négy egyszerű lépésben. Csupán 2 perc, kötelezettségek nélkül!

Szűkítse a budapesti ingatlanok
listáját
Válassza ki a megfelelő
budapesti ingatlant
Írjon a hirdetőnek
Várjon a visszahívásra