Eladó családi ház Tápiószecső 59 900 000 Ft

Leírás

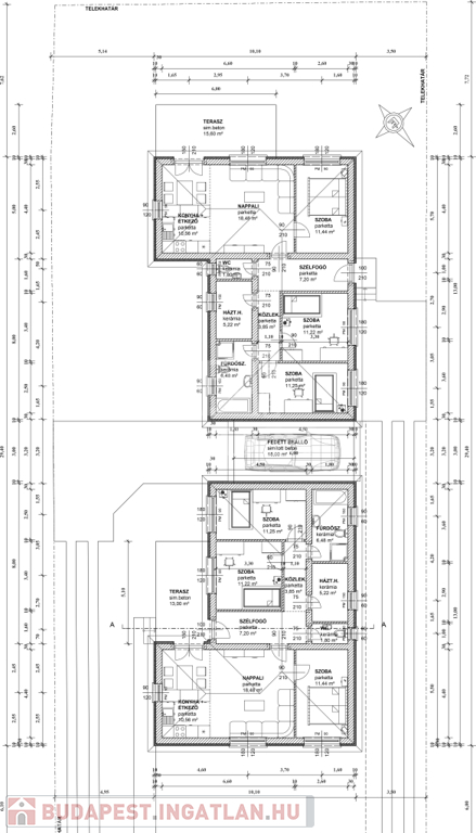
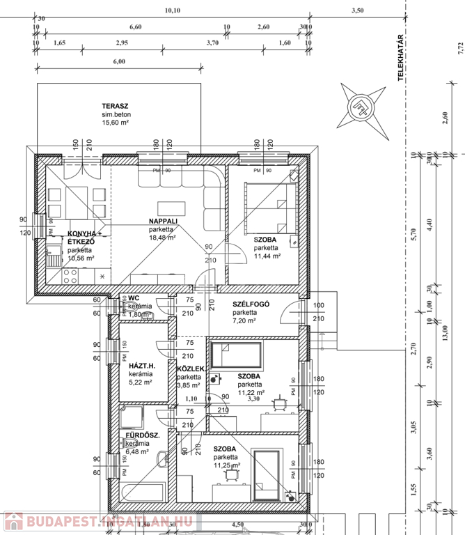
Tápiószecsőn, a Dobó István utca 23 szám alatt, Sülysáp határától mindössze 150 méterre, aszfaltos utcában, panorámás környezetben eladó új építésű, kulcsrakész ikerházfél.

A 809 m²-es telken megvalósuló épületből az utcafronti ingatlan már elkelt.
A hátsó ikerházfélhez 460 m²-es önálló telekrész tartozik.

Az utca egyik oldalán kizárólag lakóházak találhatók, a másik oldalon szántóföld, mögötte erdő, amely gyönyörű, zavartalan panorámát biztosít. Az utca aszfaltozott, nyugodt, átmenő forgalomtól mentes környezet.

Az ingatlan nettó 92,3 m² hasznos lakótérrel rendelkezik, megbízható kivitelezésben, kulcsrakész állapotban kerül átadásra.

A fedett gépkocsibeálló az utcafronti ingatlanhoz tartozik.

Az épület 30 cm-es nútféderes téglából, fa födémmel készül.
A tető héjazata antracit színű betoncserép.
A hőszigetelés a homlokzaton 15 cm EPS, a padlóban 10 cm lépésálló, a födémen 25 cm ásványgyapot.

A külső nyílászárók 6 légkamrás, háromrétegű üvegezésű műanyag thermo ablakok.

A fűtést hőszivattyús rendszer biztosítja, padlófűtéssel.

Alap műszaki felszereltség

-Csempe, járólap: 3.000 Ft/m²
-Meleg burkolat: 3.000 Ft/m²
-Fürdőkád: 40.000 Ft
-Beltéri ajtók: 32.000 Ft/db
-Csaptelepek: 15.000 Ft/db

Magasabb árkategóriájú burkolatok és szaniterek felár ellenében választhatók, a különbözet finanszírozásával.

A kivitelező Kókán, Sülysápon, Dányban számos ingatlant épített, melyeket már értékesítettünk. Komoly érdeklődés esetén szívesen megmutatjuk őket referenciaként.


INGYENES hitel tanácsadás, CSOK Plusz - Otthon Start ügyintézés!
BANKFÜGGETLEN hitelcentrumunk az összes elérhető bank és hitelintézet ajánlatát versenyezteti az Ön kedvéért, ráadásul DÍJMENTESEN.

- Egyedi, bankfiókban nem elérhető kamat- és díjkedvezmények
- Hitelképesség vizsgálat
- Idő, energia és pénz megtakarítás
- Teljes hivatali ügyintézés

Amennyiben hirdetésem felkeltette az érdeklődését vagy egyéb információra van szüksége hívjon bizalommal!

Családi ház részletei

Ár: 59 900 000 Ft
Méret: 92 négyzetméter
Azonosító: 11587567
Irodai azonosító: 390852
Cím: Dobó István utca
Telek: 460 négyzetméter
Ingatlan állapota: Kitűnő
Jelleg: ikerház
Építőanyag: Tégla
Fűtés jellege: Geotermikus
Fűtés módja: Hőszivattyú
Komfort fokozat: Összkomfort
Kor: Új építésű
Szintek száma: Földszintes
Egész szobák: 4

Egyéb jellemzők

  • Csatorna
  • Garázs
  • Pince
  • Terasz

Térkép


Így keressen budapesti ingatlant négy egyszerű lépésben. Csupán 2 perc, kötelezettségek nélkül!

Szűkítse a budapesti ingatlanok
listáját
Válassza ki a megfelelő
budapesti ingatlant
Írjon a hirdetőnek
Várjon a visszahívásra