Eladó családi ház Tahitótfalu 159 000 000 Ft

Leírás

HATALMAS CSALÁDI HÁZ A DUNAKANYAR SZÍVÉBEN TAHITÓTFALUN!

Minden igényt kielégítő családi házat kínálok Tahiban a hegyoldalon közel a 11-es úthoz. Megközelíthetősége kiváló, aszfaltozott úton lehetséges.
Alkalmas lehet családi háznak, cégközpontnak, különféle vállalkozások megvalósítására.
Az alagsori rész 140 nm nagyságú 3 fő részből tevődik össze, külön bejárattal, 2 méter magasságig burkolattal ellátott, sőt! ipari áram helységenként több ponton is rendelkezésre áll.

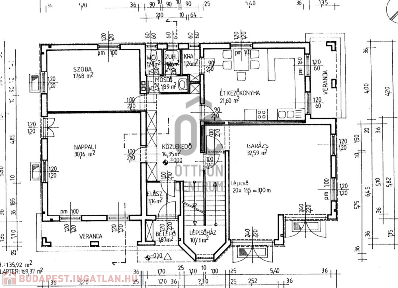
Földszinten 33 nm nagyságú két állásos garázs, 30 nm nagyságú nappali, 18 nm nagyságú szoba, és 22 nm nagyságú konyha-étkező, illetve fürdőszoba áll rendelkezésre.
Emeleti szinten 3 db óriási hálószoba, gardróbszoba, fürdőszoba és egy 17 nm nagyságú panoráma terasz várja új tulajdonosát.

A ház 1994-ben épült, az akkor fellelhető legjobb minőségű építő anyagok, burkolatok, kerültek beépítésre.
Igényes kivitelezésben épült, kiváló műszaki és statikai állapotban van.

Amennyiben felkeltettem érdeklődését, hívjon még ma!

Teljeskörű ügyintézéssel várom a hívását a hét minden napján.

Családi ház részletei

Ár: 159 000 000 Ft
Méret: 300 négyzetméter
Azonosító: 11579800
Telek: 850 négyzetméter
Ingatlan állapota: Átlagos
Jelleg: családi ház
Építőanyag: Kérdezzen rá a hirdetőtől »
Fűtés jellege: Cirkó
Egész szobák: 5

Egyéb jellemzők

  • Csatorna
  • Garázs
  • Kábel TV
  • Melléképület
  • Parketta
  • Pince
  • Terasz

Így keressen budapesti ingatlant négy egyszerű lépésben. Csupán 2 perc, kötelezettségek nélkül!

Szűkítse a budapesti ingatlanok
listáját
Válassza ki a megfelelő
budapesti ingatlant
Írjon a hirdetőnek
Várjon a visszahívásra