Eladó családi ház Szombathely 76 990 000 Ft

Leírás

Eladó egy vadonatúj, stílusos, új építésű ikerház egyik fele Szombathely dinamikusan fejlődő kertvárosi részén.
A környéket nyugodt, kertvárosi hangulat jellemzi, igényes házakkal, békés lakóközösséggel.
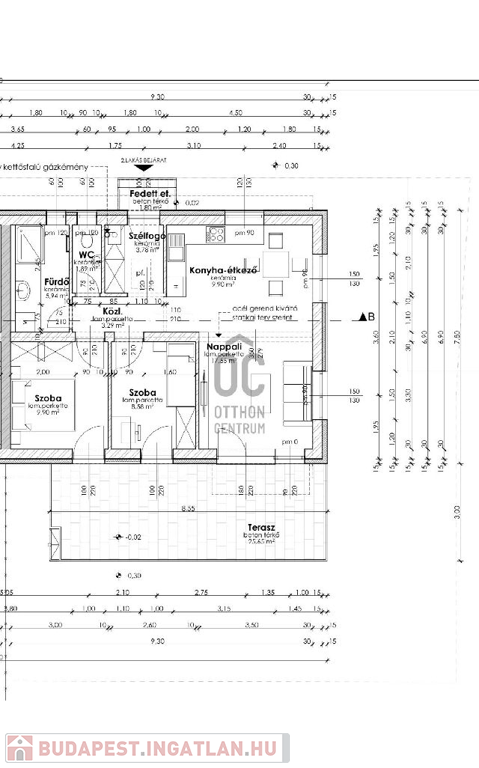
A 61 m-es lakótérrel rendelkező ingatlan belső udvari elhelyezkedésű és tartozik hozzá egy 25 m-es terasz, illetve egy 210 m-es saját, kerítéssel körbezárt kert.
A terek rendkívül kedvezően kerültek kialakítása: tágas nappali-étkező-konyha központi elhelyezéssel, valamint a 2 hálószoba, fürdőszoba, külön illemhely, előszoba és a nappaliból nyíló terasz kompakt otthont alkot.
A ház saját 30 m-es térkövezett, megvilágított autóbeállóval rendelkezik.
A ház fagerendás födémmel készült 20 cm hőszigeteléssel, álmennyezettel, a válaszfalak 10 cm porotherm válaszfaltéglából. Világítás helységenként több kiállással, lámpatesttel, hideg/meleg fény variációival, hangulatvilágítással, kültéri világítással, mindez okos-rendszerrel szabályozható.
Padlófűtés minden helységben hőszivattyúval történik, a melegvíz-ellátás Vaillant villanybojlerrel.
Klíma és napelem-előkészítés biztosított.
A fürdőszobában üvegfallal elválaszott zuhanyzó és térben álló fürdőkád is található. Az ingatlanba prémium minőségű hidegburkolat és valódi fa padló, valódi kő külső párkány került beépítésre.
A házhoz tartozik kihasználható padlás is, melyre a feljárás az előszobából biztosított.
Modern 'nolte' konyhabútor mennyezetig pakolható szekrénnyel, sütővel, mosogatóval, kivezetett szagelszívós-főzőlappal, mosogatógéppel 2024 decemberben került beszerelésre.


Hitelre van szüksége? Az Otthon Centrum az ország egyik legnagyobb és legmegbízhatóbb hitelközvetítőjeként, teljes körű és díjmentes hitelügyintézéssel, biztosításkötéssel áll rendelkezésére!
Kérje személyre szabott ajánlatunkat kollégáinktól!

Családi ház részletei

Ár: 76 990 000 Ft
Méret: 61 négyzetméter
Azonosító: 11523443
Irodai azonosító: H499868
Cím: Vas megye Olad
Telek: 433 négyzetméter
Ingatlan állapota: Átlagos
Jelleg: családi ház
Építőanyag: Kérdezzen rá a hirdetőtől »
Egész szobák: 3

Így keressen budapesti ingatlant négy egyszerű lépésben. Csupán 2 perc, kötelezettségek nélkül!

Szűkítse a budapesti ingatlanok
listáját
Válassza ki a megfelelő
budapesti ingatlant
Írjon a hirdetőnek
Várjon a visszahívásra