Eladó családi ház Szombathely 252 000 000 Ft

Leírás

Prémium kategóriás családi ház az oladi dombon, panorámás kilátással.

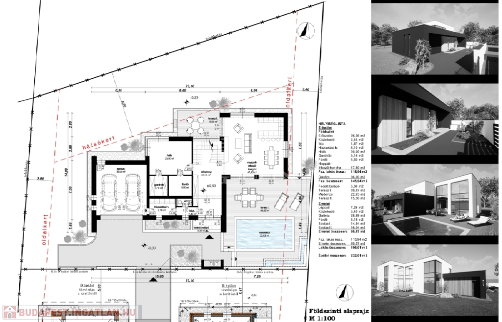
Gáspár- Mérnöki iroda tervei alapján készül ez a kuriózumnak számító ingatlan. A ház két szintesre tervezett. Hatalmas üvegfelületeinek köszönhetően rendkívül világos, napos otthon tárul elénk. A mai modern követelményeknek mindenben megfelelő ingatlan fűtése hőszivattyúval történik, padlófűtéses hőleadással, H tarifával. Meleg víz indirekt fűtésű puffertárolóval készül, amit szintén a hőszivattyú fűt. A fürdőszobákba törölköző szárítós radiátorok is kerülnek. Elektromos hálózata 3 x 32 Amper-ra tervezett. Az ingatlanba Gree hűtő-fűtő klíma is beszerelésre kerül. A szintek közti lépcső monolit vasbeton, statikus kiviteli tervek szerinti vasalással készül, edzett üvegkorlát kísérővel. Nyílászárói fokozottan hang és hőszigeteltek, három rétegű üvegezésű alumínium ablakok és erkélyajtók, kívül-belül antracit színben, három darab toló a többi funkciónak megfelelő nyitással. Beépített redőny, zsaluzia opcióként választható.
A vásárló saját ízlésének megfelelően választhatja a hideg- meleg burkolatokat, beltéri ajtókat, szanitereket, csaptelepeket. A szobákba laminált padló burkolat 11 500 Ft anyagköltség határig, a megrendelő által kiválasztva. Egyéb helyiségekben a lapburkolatok 16 500 Ft egységáron, beltéri ajtók 150 000 ft értékhatárig választhatók. Szaniterek, csaptelepek értéke 1 420 000 Ft. A terasz kiépítését fagyálló kővel 16 500 Ft-os m2 áron biztosítja a beruházó. Az ingatlan különlegessége, hogy 85 m2 terasszal kapcsolódik a természethez.
Az egyik terasz ékessége egy 23 m2-es Skimmeres medence, gépészettel, vízforgatóval, homokszűrővel stb. készül, külön megállapodás szerint. Gépkocsik tárolására 36 m2-es dupla garázs áll rendelkezésre. A tervek önmagukért beszélnek, de a helyszínt feltétlenül látnia kell.
Kérem keressen, nézzük meg együtt!

Családi ház részletei

Ár: 252 000 000 Ft
Méret: 196 négyzetméter
Azonosító: 11288610
Irodai azonosító: 358322
Cím: Panoráma, Luxus, Kényelem, Fenntarthatóság
Telek: 800 négyzetméter
Ingatlan állapota: Átlagos
Jelleg: családi ház
Építőanyag: Tégla
Fűtés jellege: Geotermikus
Fűtés módja: Hőszivattyú
Komfort fokozat: Dupla komfort
Kor: Új építésű
Szintek száma: 1 szint
Egész szobák: 5
Fél szobák: 1

Egyéb jellemzők

  • Csatorna
  • Garázs
  • Pince
  • Terasz

Térkép


Így keressen budapesti ingatlant négy egyszerű lépésben. Csupán 2 perc, kötelezettségek nélkül!

Szűkítse a budapesti ingatlanok
listáját
Válassza ki a megfelelő
budapesti ingatlant
Írjon a hirdetőnek
Várjon a visszahívásra