Eladó családi ház Szombathely 135 000 000 Ft

Leírás

AZ OTTHONTEREMTÉS ÚJ VILÁGA .
Szombathelyen a már jól ismert ÚJVILÁG LAKÓPARK újabb ütemmel bővül. 85 m2-139 m2 nagyságig lesznek elérhető különálló családi házak és ikerházak egyaránt. Funkció, intimitás, kényelem, tudatos okos, zöld megoldások a legfontosabb tervezői szempontok. A tervezett belső terek vevői igény szerint változtathatók. Elhelyezkedését tekintve a lehető legjobb választás, hiszen közel a belváros, remek az infrastruktúra, a várost elkerülő gyorsforgalmi útkapcsolat könnyen megközelíthető. A beruházók szinte egyedülállóan olyan tervekkel rukkoltak elő, amelyek a mai modern, energia hatékony, pénztárca kímélő megoldásokat tartalmaznak.
- HŐSZIVATTYÚ
Az ingatlan fűtéséről–hűtéséről egy levegő-víz hőszivattyú gondoskodik, 250 literes meleg víztárolóval, a házban Rehau padlófűtés lesz kialakítva, amely megkönnyíti a lakberendezést. A vízrendszer alapszerelése szintén Rehau rendszerből készül, valamint az ár tartalmaz vízlágyítót is.
- NAPELEM RENDSZER
Az ingatlan gépészeti rendszeréhez kapcsolódóan 5 kw-os napelemrendszer telepítése történik, amelyhez hibrid inverter tartozik, így 10-15 kw akkumulátor rendszer kapcsolható. Az akkumulátor rendszer felár ellenében elérhető.
- CSAPADÉK VÍZGYŰJTÉS
Az esővíz egy 5 m3-es csapadékgyűjtőbe lesz bekötve, szikkasztóval ellátva, ami kiválóan alkalmas a növényzet öntözésére. Így nem kell kutat fúrni és nem borul fel a terület vízháztartása.
Plusz tartalom, amit még magába foglal az alapár, és annak elválaszthatatlan szerves része:
- KONYHABÚTOR
Minden ingatlanhoz tartozik konyhabútor 1.5 millió forint értékben.
- RENDEZETT UDVAR
Az ingatlanhoz tartozó járda, autóbeálló, közlekedő területek térkövezése, nagyságrendileg 60-100 m2 területen. Az udvaron kerti csap kiépítése is megtörténik.
Az ingatlanok előtt vendégparkolók kialakítására is sor kerül. Gépkocsi fedett beálló opcionálisan kérhető.
- KERÍTÉS
Telek utcafronti, jobb és baloldali kerítés illetve az ingatlanok közti elválasztó kerítés (felületmintás betonelem) építése 1.75-2 m magasságban.
Egyéb műszaki tartalom :
Teherhordó falak Porotherm 30 X-therm Rapid téglából, a lakásokat elválasztó falak hanggátló Porotherm 30 AKU Z P15 téglából készülnek. Koszorú Porotherm U zsalu 30-as elemből építve, vasbeton szerkezet készül statikai terv alapján. Erre kerül az építészeti tervek szerint, számítógépes tetőtervezéssel legyártott szeglemezes tetőszerkezet. Ez a tetőszerkezet teszi lehetővé, hogy a belső tereket tetszés szerint variálhatjuk. A tetőre a vízzárás kialakítása után Tondach Planoton 9 tetőcserép kerül a hozzá tartózó kiegészítőkkel,
tetőelemekkel. Bádog anyaga, elemei szerves része ennek a családnak.
A válaszfalak gyári 7,5 cm gipszkarton szerkezetre szerelt hő és hangszigeteléssel ellátott kétoldalt dupla gipszkartonlap rögzítve, ami így a hagyományos 10 cm vastagságú válaszfal helyett 12,5 cm
vastagságú válaszfalat eredményez. Ennek a technológiának nagy előnye, hogy a szerelvényezéskor nem kell szétvésni, meggyengíteni a
10 cm-es kerámia válaszfalat, a szerelvény a 7,5 cm-es szerkezetben kerül kialakításra. A födémet a tetőszerkezet elemei adják, amihez gipszkarton álmennyezet kerül rögzítésre, kialakítva egy 20 m2-es pakolásra alkalmas területet, amit padlásfeljáró segítségével lehet elérni. A teherhordó falak és a hanggátló fal is gipszkartonlap borítást kap, így az egész belső tér egy homogén, rendkívül pontos felületet fog alkotni.
Nyílászárók prémium minőségű, fokozottan hang- és hőszigetelt műanyag nyílászárók 3 rétegű 5 kamrás kivitelben kerülnek beépítésre, szúnyoghálóval, alumínium redőnyökkel felszerelve.
Bejárati ajtó választható.
Beltéri ajtók a beruházó által meghatározott gyártó, kivitelező mintáiból választhatók, bruttó 100.000 Ft/db értékhatárig.
Garázskapu szekcionált, motoros kivitelben készül.
Az épületre 10 cm vastagságú XPS lábazati szigetelés, lábazati vakolat, homlokzatra 20 cm vastagságú grafitos szigetelés kerül, 1.5 cm vastagságú baumit kapart vékony vakolat készül.
A könnyűszerkezetes födémre 30-as tűzálló szigetelés kerül.
A házakban három fázisú villamos rendszer lesz kialakítva 3x25 A teljesítménnyel. Elektromos autó töltés előkészítését, riasztó rendszer alapszerelését és kaputelefon kiépítését is tartalmazza a vételár. Hideg-meleg burkolatok választhatók. A meleg burkolatok (laminált padló) bruttó 5.000 Ft/m2, a hidegburkolatok (járólap) bruttó 8.000 Ft/m2 áron maximalizált. Ha a választott termékek meghaladják ezen árakat, természetesen felárral tetszés szerint választhatnak a vásárlók burkolatokat.
Ha bővebb tájékoztatást szeretne, kérem keressen!
Talán az utolsó jó lehetőség az Újvilág Lakópark, városunkban való elhelyezkedés tekintetében.
Vegye igénybe irodánk szolgáltatásait. Készséggel állunk rendelkezésére, ha esetleg lakberendezési tanácsokra lenne szüksége.
24/A

Családi ház részletei

Ár: 135 000 000 Ft
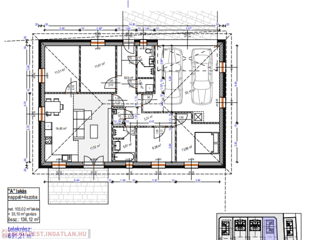
Méret: 136 négyzetméter
Azonosító: 11338792
Irodai azonosító: 363325
Cím: Harmóniában a természettel
Telek: 691 négyzetméter
Ingatlan állapota: Átlagos
Jelleg: családi ház
Építőanyag: Tégla
Fűtés jellege: Geotermikus
Fűtés módja: Hőszivattyú
Komfort fokozat: Dupla komfort
Kor: Új építésű
Szintek száma: Földszintes
Egész szobák: 5

Egyéb jellemzők

  • Csatorna
  • Garázs
  • Pince
  • Terasz

Térkép


Így keressen budapesti ingatlant négy egyszerű lépésben. Csupán 2 perc, kötelezettségek nélkül!

Szűkítse a budapesti ingatlanok
listáját
Válassza ki a megfelelő
budapesti ingatlant
Írjon a hirdetőnek
Várjon a visszahívásra