Eladó családi ház Szigetszentmiklós 99 900 000 Ft

Leírás


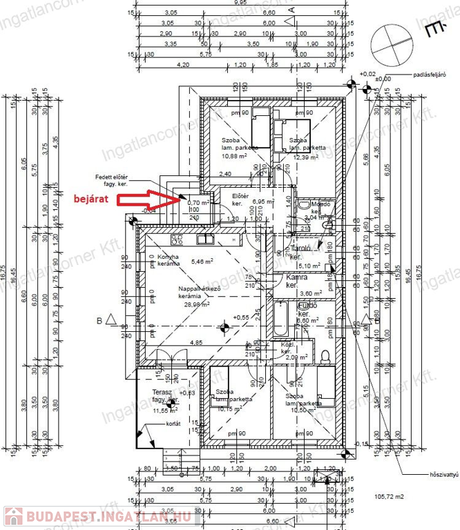
Eladó újépítésű, földszintes, hőszivattyús, padlófűtéses családi ház – Szigetszentmiklós-Bucka részén, melynek tervezett átadási ideje 2026.



Műszaki paraméterek:

• Nettó alapterület: 106 m² + 11,55 m² terasz

• Telek méret: 830 m²

• Szobák száma: 4 szoba + nappali

• Duplakomfortos kivitel

• Falazat: 30 cm Porotherm tégla

• Homlokzati szigetelés: 15 cm dryvit

• Aljzatszigetelés: 15 cm

• Födémszigetelés: 25 cm

• Nyílászárók: 3 rétegű fehér műanyag



HelyiségMéreti: m²

Nappali28,98 m²

Szoba 112,39 m²

Szoba 210,88 m²

Szoba 310,50 m²

Szoba 411,15 m²

Előtér/közlekedő6,95 m² + 2,09 m²

Konyha5,46 m²

Fürdő 16,60 m²

Fürdő 23,04 m²

Háztartási helyiség / tároló 5,10 m²

Kamra / gardrób3,60 m²

Fedett előtèr0,7 m²



Előnyök

• Újépítésű, modern energetikai és szigetelési megoldásokkal

• Nagy telek (830 m²) – kert, játszótér, garázs lehetősége

• Hőszivattyús padlófűtés – alacsony fenntartási költség

• Családbarát elrendezés – 4 szoba + nappali



Érdeklődni, időpont egyeztetéshez kérem keressen bizalommal!

Ha nem tudom azonnal felvenni a telefont, visszahívom!

Családi ház részletei

Ár: 99 900 000 Ft
Méret: 107 négyzetméter
Azonosító: 11551254
Irodai azonosító: 107004075
Telek: 830 négyzetméter
Ingatlan állapota: Kitűnő
Jelleg: családi ház
Építőanyag: Tégla
Komfort fokozat: Dupla komfort
Kor: Új építésű
Egész szobák: 5

Így keressen budapesti ingatlant négy egyszerű lépésben. Csupán 2 perc, kötelezettségek nélkül!

Szűkítse a budapesti ingatlanok
listáját
Válassza ki a megfelelő
budapesti ingatlant
Írjon a hirdetőnek
Várjon a visszahívásra