Eladó családi ház Szigethalom 89 000 000 Ft

Leírás

Szigethalom csendes aszfaltos utcájában a szomszédtól fedett kerti tárolóval elkülönített ikerház utcafronti lakása eladó.
KIVÁLÓ KIVITELEZŐ, VERSENYKÉPES ÁRON, KIVÁLÓ OTTHONT AJÁNL ÖNNEK! CSOK +, H-TARIFA, 2026 06. havi ÁTADÁSSAL!!

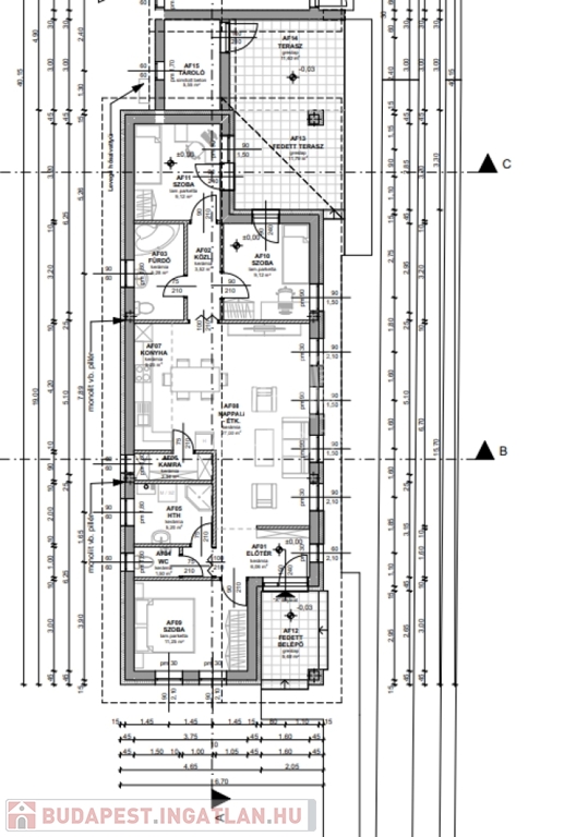
Az otthon 85,64 négyzetméteres, ehhez + kerti tároló 5,55 m2 és 29 m2 terasz kapcsolódik.
Helyiségei: nappali/étkező 27,00 m2, szoba 11,25 m2, szoba 9,12 m2, szoba 9,12 m2, konyha 5,25 m2, fürdő szoba 5,28 m2, közlekedő 3,52 m2, előtér 6,06 m2, kamra 2,34 m2, wc 1,50 m2, hth 5,20 m2, fedett belépő 5,48 m2 fedett terasz 11,79 m2, terasz 11,40 m2, tároló 5,55 m2.

A telek ideális 420 négyzetméteres, a szomszédot csak akkor látjuk és halljuk ha mi is szeretnénk, a teraszon zavartalanul pihenhetünk.

Az otthon beton alapra, tégla falazattal, fa födémmel, beton cserép fedéssel épül meg.
Az épület külső nyílászárói (ablakok) műanyag szerkezetűek 5 légkamrás 3 rétegű hőszigetelt üvegezéssel.
A bejárati biztonsági ajtó több ponton záródó.
A homlokzaton 15 cm Dryvit rendszerű, a födémben 25 cm fújt hőhíd mentes, míg a padlóban 10 cm lépésálló nikecell szigetelés kerül beépítésre.
Fűtése/ hűtése, meleg vízellátása hőszivattyúval (levegő) történik padlófűtéssel.
Burkolatok választhatóak keretösszegig, felette a vevő kompenzál. Szaniterek keretösszegig választhatók.
A kert alap kertrendezéssel kerül átadásra.

Az alaprajz változtatható, burkolatok választhatóak, a kivitelező igyekszik minden vásárlói igényt kielégíteni.

Az ikerfelek külön mérőórával, külön helyrajzi számmal rendelkeznek, társas házi alapító okirat készül.

Első "A" lakás 350 m2 kert, 75 m2 ára: 89.000.000 ft
Hátsó "B" lakás 420 m2 kert, 85,64 m2 ára: 89.000.000 ft

Várom megtisztelő hívását!

FINANSZÍROZÁS:
Nálunk mindent egy helyen intézhet:
- hivatalos ingatlanközvetítés;
- szakszerű jogi képviselet;
- profi CSOK-PLUSZ, és hitelügyintézés: 16 Bank, több mint 100 konstrukció;

A részletes adatvédelmi tájékoztató folyamatosan elérhető a gdn adatvédelmi oldalon.

Családi ház részletei

Ár: 89 000 000 Ft
Méret: 85 négyzetméter
Azonosító: 11585943
Irodai azonosító: 390438
Cím: Pest megye
Telek: 350 négyzetméter
Ingatlan állapota: Kitűnő
Jelleg: ikerház
Építőanyag: Tégla
Fűtés jellege: Geotermikus
Fűtés módja: Hőszivattyú
Komfort fokozat: Dupla komfort
Kor: Új építésű
Szintek száma: Földszintes
Egész szobák: 4

Egyéb jellemzők

  • Csatorna
  • Garázs
  • Pince
  • Terasz

Térkép


Így keressen budapesti ingatlant négy egyszerű lépésben. Csupán 2 perc, kötelezettségek nélkül!

Szűkítse a budapesti ingatlanok
listáját
Válassza ki a megfelelő
budapesti ingatlant
Írjon a hirdetőnek
Várjon a visszahívásra