Eladó családi ház Szentkirályszabadja 70 000 000 Ft

Leírás

Minőség, megbízhatóság, magas műszaki tartalom, energiatakarékosság egyben.
Eladó Szentkirályszabadján, Veszprémtől mindössze 5 km-re, egy modern, kiemelkedő műszaki tartalommal rendelkező, új építésű egyszintes kétlakásos lakóépület.
Az ingatlan csendes utcában található, könnyen megközelíthető helyen.
Tökéletes négy évszakos lakhatásra, akár két generáció vagy barátok is költözhetnek egy épületbe, de mégis külön lakásba saját kertkapcsolattal, továbbá nyaralónak, de kiváló lehetőség befektetési célra, ha nyári vagy hosszútávú kiadásban gondolkodik.

Az épület 30 cm vastagságú Porotherm N+F téglából készült, külső oldalán 15 cm EPS, lábazatán pedig 12 cm vastag XPS hőszigeteléssel. A homlokzaton AUSTROTHERM hőszigetelő nemes vakolat található, a tetőt antracit cserép fedi.
A nagyméretű ablakok háromrétegű, hat légkamrás hőszigetelő üvegezéssel rendelkeznek, alumínium, motorikusan működő redőnyökkel, melyek távirányítóval és SmartBidi okos otthon applikációval is vezérelhetők.
A fűtésről és melegvízellátásról egy modern, energiatakarékos Panasonic 5 kW-os beépített víztartályos hőszivattyú rendszer gondoskodik, padlófűtéssel kiegészítve.
Az ingatlan további extrai közé tartozik a klíma előkészítés, kerámia béléscsöves kémény kandalló-bekötés előkészítéssel, nagy üvegfelületekkel, világos és tágas terekkel, valamint két terasz időálló térkő burkolattal és a homlokzaton dekorációs vágott természetes kő burkolat.
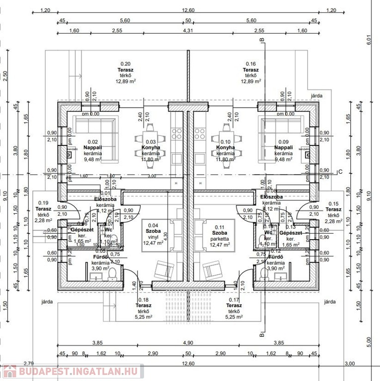
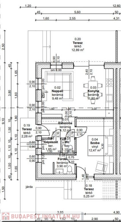
Az amerikai konyhás nappaliban minőségi Ikea konyhabútor található elektromos főzőlappal, nagyméretű kerámia mosogatótálcával és Kludi csapteleppel. A két lakás egyforma alaprajzzal rendelkezik: amerikai konyhás nappali, mely a terasz felé minőségi bukó-toló ajtóval nyílik, terasz- és fürdő-wc kapcsolatos hálószoba, előszoba, külön WC, valamint gépészeti helyiség, ahol a mosógép kiállás is megtalálható.
A tágas fürdőben esőztetős minőségi épített zuhany került kialakításra.
Az ingatlanhoz tartozik 192 nm kert, továbbá térkövezett járda és kavicssal szórt autóbeálló is.
Szentkirályszabadja kiváló lokációval rendelkezik hiszen autóval a Balatonpart 8 perc, Veszprém 6 perc, Budapest a gyorsforgalmi úton és autópályán 1 óra alatt elérhető.
Szereti a természetet, szeret kirándulni, kerékpározni? A településről a Balaton és a Bakony irányába is minőségi kerékpárutak és túraútvonalak teszik felejthetetlenné az itt töltött perceket.
Ne hagyja ki ezt a kiváló lehetőséget, hogy egy modern, energia takarékos otthonban élhessen, mindössze pár percre Veszprémtől és a Balatontól!
Szeretettel várom hívását!
06 30 140 3328
Dream-Ing, Álomból Otthont!

Családi ház részletei

Ár: 70 000 000 Ft
Méret: 55 négyzetméter
Azonosító: 11515663
Irodai azonosító: 318370
Telek: 200 négyzetméter
Ingatlan állapota: Kitűnő
Jelleg: ikerház
Építőanyag: Tégla
Komfort fokozat: Összkomfort
Kor: Új építésű
Egész szobák: 2

Egyéb jellemzők

  • Terasz

Így keressen budapesti ingatlant négy egyszerű lépésben. Csupán 2 perc, kötelezettségek nélkül!

Szűkítse a budapesti ingatlanok
listáját
Válassza ki a megfelelő
budapesti ingatlant
Írjon a hirdetőnek
Várjon a visszahívásra