Eladó családi ház Szentendre 97 000 000 Ft

Leírás

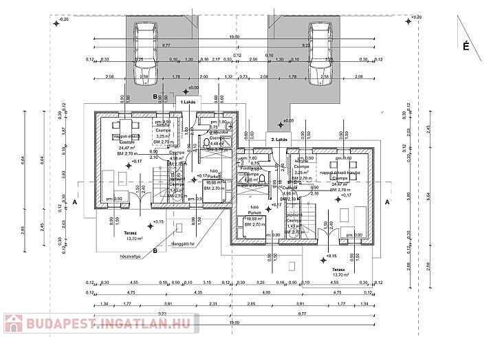
ELADÓ 2DB ÚJÉPÍTÉSŰ IKERHÁZFÉL A SZENTENDREI SZIGETEN!



A KÖRNYÉK:

Az ingatlanok csendes, nyugodt környezetben helyezkednek el, ugyanakkor kiváló közlekedési adottságokkal rendelkeznek. A legközelebbi buszmegálló mindössze 5 perc sétára található. Komppal mindössze 5 perc alatt megközelíthető Szentendre.



Lakóegységek száma: Két, teljes értékű ikerházfél, külön bejárattal és saját, elszeparált kertrésszel. Várható átadás: 2026. évvége.



AZ IKERHÁZ-FELEK JELLEMZŐI:

-Alapterület: 82 nm.

-Telek: 462 nm.

-Az ikerház felek 30 cm vastagságú Porotherm téglából épülnek. A homlokzatot 15 cm vastagságú Dryvit hőszigetelés fedi.

-A nyílászárók 3 rétegű műanyagból vannak.

-A fűtésért energiatakarékos hőszivattyús rendszer felel padlófűtéssel, melyet hűtő-fűtő klímaberendezés egészít ki a maximális komfort érdekében.

-A födém monolit vasbetonból van.

-A födém felett 25 cm vastag kőzetgyapot hőszigetelés került elhelyezésre, a tetőfedést esztétikus és tartós betoncserép biztosítja.

-A vízellátás saját fúrt kútról működik. Elektromos áramellátás(villany) az ingatlanban rendelkezésre áll. A szennyvíz zárt rendszerű tárolóba kerül elvezetésre.

-Hideg burkolatok 10.000 Ft/m2, meleg burkolatok 7.000 Ft/m2 kalkulálva (Az ügyfél választja ki).



FINANSZÍROZÁS:

-Banki finanszírozással is megvásárolható, melyben irodánk ingyenes tanácsadással áll rendelkezésükre!

VEVŐINK RÉSZÉRE A KÖZVETÍTÉS DÍJTALAN!

A hirdetésben szereplő adatok tájékoztató jellegűek!

Családi ház részletei

Ár: 97 000 000 Ft
Méret: 82 négyzetméter
Azonosító: 11605187
Irodai azonosító: 25050
Telek: 462 négyzetméter
Ingatlan állapota: Épülő
Jelleg: családi ház
Építőanyag: Kérdezzen rá a hirdetőtől »
Fűtés jellege: Egyéb
Szintek száma: 1 szint
Egész szobák: 4

Így keressen budapesti ingatlant négy egyszerű lépésben. Csupán 2 perc, kötelezettségek nélkül!

Szűkítse a budapesti ingatlanok
listáját
Válassza ki a megfelelő
budapesti ingatlant
Írjon a hirdetőnek
Várjon a visszahívásra