Eladó családi ház Szentendre 230 000 000 Ft

Leírás

Eladó Luxus Otthon Szentendrén – Modern technológia és lenyűgöző panoráma!

Szentendre egyik legkedveltebb részén, a Gomba utcában kínálunk eladásra egy új építésű, prémium minőségű otthont, amely nettó 122 m² lakótérrel, 45 m²-es terasszal és 789 m²-es telekkel rendelkezik.

Kiemelkedő műszaki tartalom

Falazat és szigetelés

-30 cm Ytong falazat, monolit vasbeton födém
-Homlokzat: 15 cm grafitos EPS szigetelés
-Tető: 30 cm ásványgyapot szigetelés
-Padló: 10 cm lépésálló szigetelés

Nyílászárók

-Háromrétegű üvegezésű, 7 légkamrás műanyag ablakok
-Elektromos redőnyök minden ablakon

Energiatakarékos megoldások

-Panasonic 12 kW-os hőszivattyú biztosítja a padlófűtést és
mennyezethűtést
-Wolf hőszivattyús szellőztető rendszer a tiszta levegőért és megfelelő
páratartalomért
-11 kW-os napelemrendszer Huawei inverterrel az alacsony rezsiért
-Beépített vízlágyító a hosszabb élettartamú háztartási gépekért

Okosotthon funkciók

A Loxone rendszerrel tabletről vezérelhetők:

-Fűtés, hűtés, szellőztetés
-Árnyékolás és világítás
-Kamerarendszer, riasztó, öntözőrendszer
-Időjárásállomás integráció

Prémium anyagok és felszereltség

-Burkolatok: Travertin természetes mészkő a padlókon
-Sótégla fal led világítással a nappaliban
-Tölgyfa beltéri ajtók és lépcső
-Fürdőszoba: Laufen szaniterek, Hansgrohe csaptelepek
-Konyha: Samsung prémium gépek (indukciós főzőlap, sütő,
mikrohullámú sütő, 12 terítékes mosogatógép, hűtő)

Terasz: Wellis jakuzzi az elvehetetlen panoráma élvezetéhez

Kert és garázs

-Öntözőrendszerrel gondozott kert
-Térkövezett kocsibeálló, amelyhez 2 autó számára garázs is épült,
elektromos autótöltési lehetőségekkel

Nézze meg az ingatlanról készült viedónkat is!

INGYENES hitel tanácsadás, CSOK Plusz ügyintézés!
BANKFÜGGETLEN hitelcentrumunk az összes elérhető bank és hitelintézet ajánlatát versenyezteti az Ön kedvéért, ráadásul DÍJMENTESEN.

- Egyedi, bankfiókban nem elérhető kamat- és díjkedvezmények
- Hitelképesség vizsgálat
- Idő, energia és pénz megtakarítás
- Teljes hivatali ügyintézés

Amennyiben hirdetésem felkeltette az érdeklődését vagy egyéb információra van szüksége hívjon bizalommal!

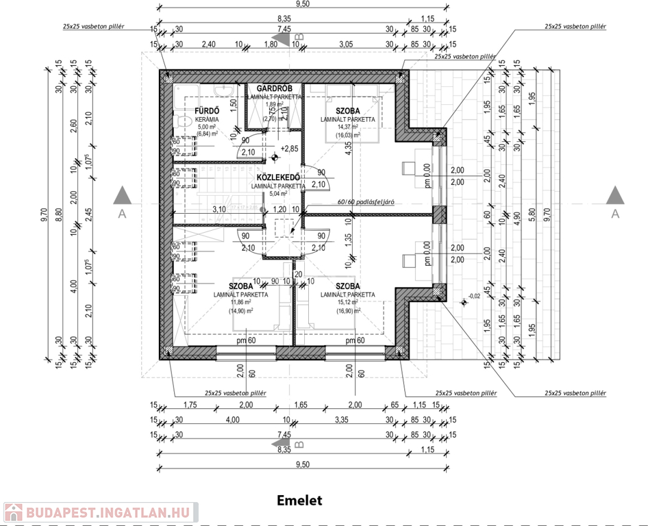
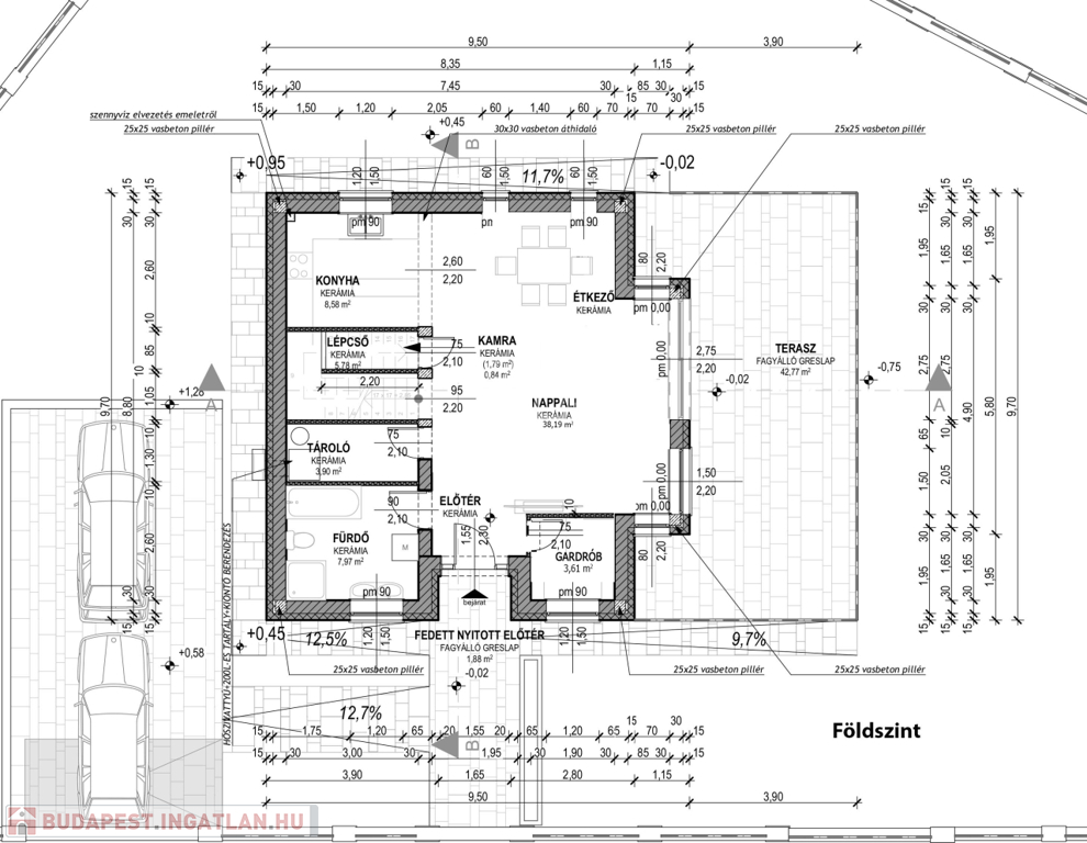
Családi ház részletei

Ár: 230 000 000 Ft
Méret: 145 négyzetméter
Azonosító: 11595274
Irodai azonosító: 392120
Cím: Gomba utca
Telek: 789 négyzetméter
Ingatlan állapota: Kitűnő
Jelleg: családi ház
Építőanyag: Kérdezzen rá a hirdetőtől »
Fűtés jellege: Geotermikus
Fűtés módja: Hőszivattyú
Komfort fokozat: Dupla komfort
Kor: Új építésű
Szintek száma: 1 szint
Egész szobák: 3

Egyéb jellemzők

  • Csatorna
  • Garázs
  • Pince
  • Terasz

Térkép


Így keressen budapesti ingatlant négy egyszerű lépésben. Csupán 2 perc, kötelezettségek nélkül!

Szűkítse a budapesti ingatlanok
listáját
Válassza ki a megfelelő
budapesti ingatlant
Írjon a hirdetőnek
Várjon a visszahívásra