Eladó családi ház Szentendre 209 900 000 Ft

Leírás

Új építésű, önálló családi ház eladó Szentendrén, Pismány csendes részén.



Telek mérete: 1076 nm.



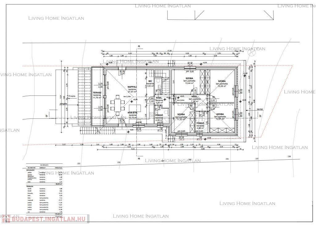
Ház nettó alapterülete 178 nm.



Az ingatlan lakóövezetben található, elvehetetlen pazar panorámával rendelkezik.



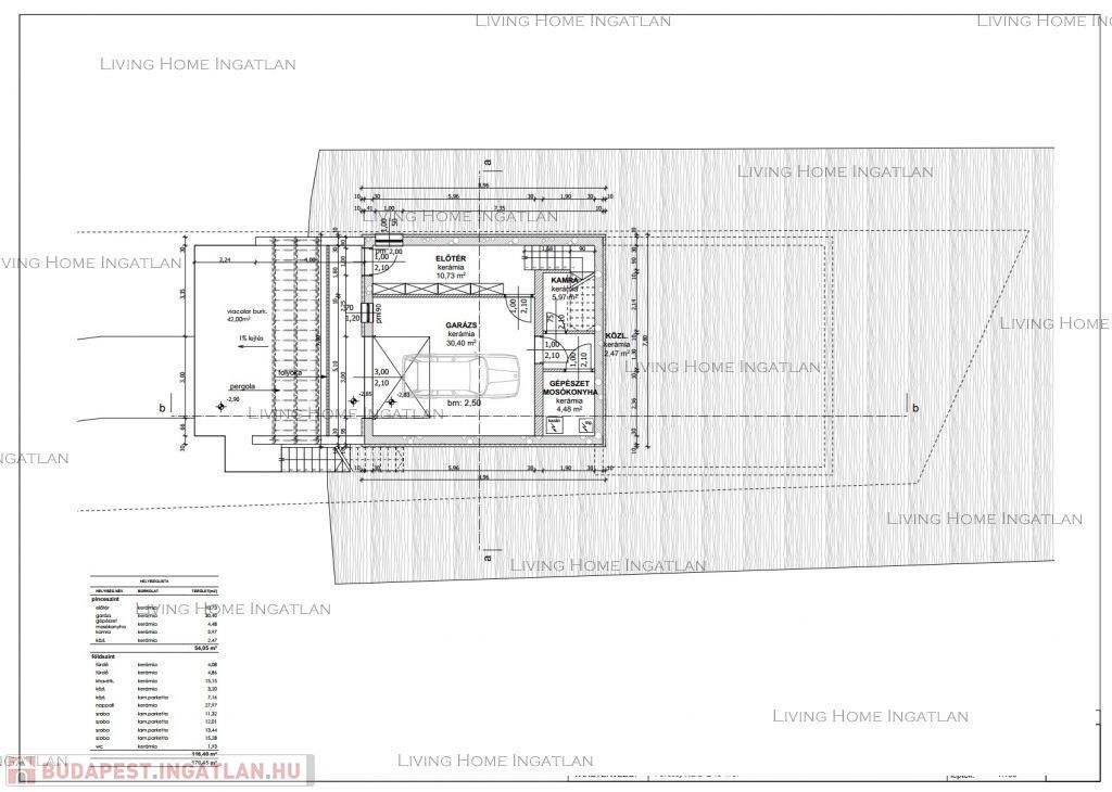
A pinceszinten/földszinten lett kialakítva a garázs + gépészeti helység, kamra, mosókonyha, előszoba.



Az emeleten 4 tágas szoba és nagy üvegfelületekkel rendelkező amerikai konyhás nappali, valamint 2 fürdőszoba található.



Az épület kiváló minőségi alapanyagok felhasználásával készült. Az új tulajdonos ízlésének megfelelően fog elkészülni a hideg/meleg burkolat, beltéri ajtók.



Igény esetén napelemekkel és hőszivattyúval látható el, a lehetőség adott hozzá.



További extrák:



-12 cm-es hőszigetelés,



-műanyag 3 rétegű, 7 kamrás nyílászárók,



-beépített elektromos redőnyök,



-szúnyoghálók,



-padlófűtés,



-hőszivattyú és napelem előkészítés,



-riasztó,



-klíma,



-elektromos kapu,



Az ár az 5 %-os Áfát tartalmazza.



Az alaprajz és az adatok tájékoztató jellegűek. Bővebb tájékoztatást szívesen adok telefonon!



Amennyiben az ingatlan felkeltette az érdeklődését, kérem, keressen!



English: 



Newly built, detached house for sale in Szentendre, in a quiet area of Pismány.



Plot size: 1076 sqm.



House net floor area 178 sqm.



The property is located in a residential area with an unobstructed panoramic view.



The garage + mechanical room, pantry, laundry room, entrance hall are located in the basement/ground floor.



On the first floor there are 4 spacious bedrooms and a living room with large glass surfaces, an American style kitchen and 2 bathrooms.



The building is constructed with high quality materials. The new owner will be able to taste the cold/hot tiling, interior doors.



If required, solar panels and heat pump can be installed, the possibility is given.



Additional extras:



-12 cm insulation,



-plastic 3-layer, 7-chamber windows and doors



-built-in electric shutters



-mesh screens



-floor heating



-heat pump and solar panel preparation



-alarm



-air conditioning



-electric gate



The price includes 5% VAT.



Floorplan and date are for information only! For more information please call me!



If you are interested in the property, please contact me!



 


Családi ház részletei

Ár: 209 900 000 Ft
Méret: 178 négyzetméter
Azonosító: 11611620
Irodai azonosító: 360651129-27
Telek: 1076 négyzetméter
Ingatlan állapota: Kérdezzen rá a hirdetőtől »
Jelleg: családi ház
Építőanyag: Tégla
Fűtés jellege: Cirkó
Komfort fokozat: Összkomfort
Kor: 1-5 éves
Elhelyezkedés: Panorámás
Egész szobák: 5

Egyéb jellemzők

  • Csatorna
  • Garázs
  • Kábel TV
  • Padlás
  • Pince
  • Terasz

Így keressen budapesti ingatlant négy egyszerű lépésben. Csupán 2 perc, kötelezettségek nélkül!

Szűkítse a budapesti ingatlanok
listáját
Válassza ki a megfelelő
budapesti ingatlant
Írjon a hirdetőnek
Várjon a visszahívásra