Eladó családi ház Székesfehérvár 87 500 000 Ft

Leírás

Új építésű, korszerű, önálló családi házak 450m2 kerttel!
Otthon Start Program ( 3%-os hitel) igényelhető!

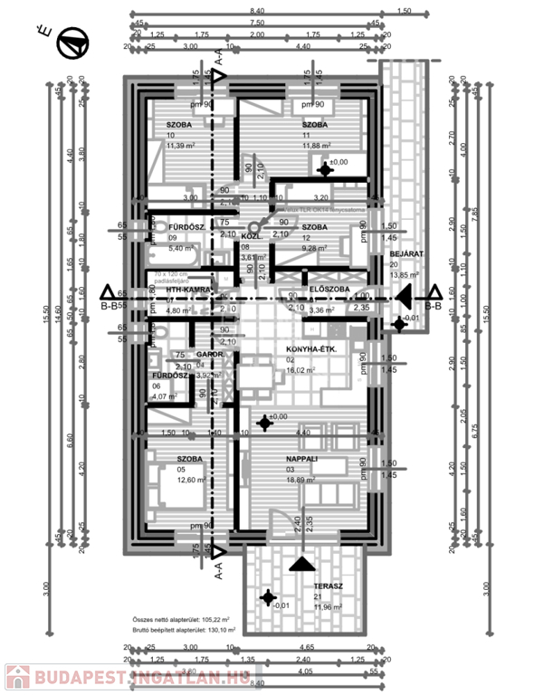
H-004368. Székesfehérváron, Feketehegyen frekventált, kedvelt részén (Rába utca-Körösi utca) RÁBA-LIGET Lakóparkban, összközműves 515m2-es építési telken eladó egy egyszintes, új építésű igényes, egyedi kivitelezésű 105 m2 hasznos alapterületű, nappali + 4 szobás családi ház terasszal.

Energia hatékony ingatlan, rezsiköltség rendkívül alacsony!
Az ingatlan könnyen megközelíthető, a környék tömegközlekedése jó, pár perc alatt gyalogosan elérhető a buszmegálló. A központban orvos, iskola, bölcsőde, óvoda, Bevásárló központ, üzletek megtalálhatóak. Környezete kiépült.



A területre 6db családi ház épül, elérhető ingatlanok:
- 2 db nappali+2 szobás, ELKELT
- 3db nappali+3 szobás : 2 DB SZABAD
- 1db nappali+4 szobás : ELKELT

A ház tágas, világos, minőségi anyagokból készült. A ház szerkezete Porotherm tégla kívülről 20 cm szigeteléssel nemes vakolattal. A födém külső borítás cseréppel (BRAMAC) készül alatta a megfelelő vastagságú fóliázattal.

A nyílászárók műanyagból készültek,3 rétegű hőszigetelt üvegezéssel, rejtett redőny tokkal. A burkolatok magas minőségű járólap, illetve laminált padló. Fűtése-melegvíz: hőszivattyú megoldással, padlófűtéssel.

Az ár tartalmazza:,
- a kulcsrakész kivitelezésen felül, a telkeket elválasztó kerítést 3 oldalról, 1 db klímát, térkövezett teraszt és járdát, H-tarifa bekötést , locsolómérős vízórát
Átadási határidő: a 3 szobás házak 2026.05.30 hó

Az ár NEM tartalmazza:
- beépített bútorok, konyhabútor gépekkel, utcafronti kerítés kapu, redőny ( beépített redőnytokot igen, motoros kiállással), rovarhálót

Az ár tartalmazza: a kulcsrakész kivitelezést,


Megközelítés: aszfaltozott útról, saját utcafront, saját telekterület, ezen belül saját önálló mérőórák. (víz, locsolómérő is, villany, csatorna van)

A ház elosztását tekintve: Amerikai konyhás nappali étkező + 3 szoba (11m2), gardrób + 2db fürdőszoba + wc, terasz (12m2)
Praktikusság miatt fő szempont volt, az élhető terek kialakítása is ezért 11 m2 nagyságú hálószoba készült. A nappaliból közvetlen kijárat van a teraszra

Fontosabb paraméterek:
● 2025-ben épül
● 450 m2 önálló telekterület
● Porotherm tégla, 20cm grafitos szigeteléssel, nemes vakolattal, padlóban 10cm, födémen 25cm szigetelés
● Nappali + 4 hálószoba + kicsi gardrób+ háztartási helyiség + 2 fürdőszoba-wc-vel+ terasz
● Saját telekterület, saját utcafront ( 2 utcára)
● Akadálymentesített bejutás
● Hőszivattyú, padlófűtés, 1db klíma az árban
● a riasztó és klíma rendszer alapszerelés
● Alacsony rezsiköltség,
Eladási irányár:
• 2 szobás ház (nappali + 2 szoba): ELKELT
• 3 szobás ház nettó 85m2 (nappali + 3 szoba): 87.500.000 Ft 2DB SZABAD
• 4 szobás ház nettó 105m2 (nappali + 4 szoba): ELKELT
Igény esetén bizonyos készültségi fok eléréséig, a belső burkolatok, ajtók szaniterek választhatók.

Megbízható és tapasztalt kivitelező jegyzi a ház építését, több mint 30 éve múlttal, számtalan referenciaépülettel rendelkezik Székesfehérváron.
A vásárláshoz, a jelenleg aktuális otthonteremtésére vonatkozó támogatás igénybe vehető (CSOK, Jelzáloghitel, Babaváró kölcsön, Piaci hitel…)

Az ingatlan adottságainak, fekvésének köszönhetően alkalmas, gyermekes családoknak.. továbbá vállalkozásra, üzleti vagy befektetési célra, hiszen akár bérbe adható,vagy irodai tevékenység,(Csendes tevékenység engedélyezett).

Ha felkeltette érdeklődését, hívjon bizalommal, (hétvégén is) éljen ingyenes, személyre szabott hitelügyintézés szolgáltatásunkkal. Segítünk továbbá adásvételhez szükséges ügyvédi közreműködésben, energetikai tanúsítvány, valamint értékbecslés elkészítésében.

For English information please send a message.

Családi ház részletei

Ár: 87 500 000 Ft
Méret: 85 négyzetméter
Azonosító: 11569054
Irodai azonosító: 387988
Cím: Rába utca
Telek: 450 négyzetméter
Ingatlan állapota: Kitűnő
Jelleg: családi ház
Építőanyag: Tégla
Fűtés jellege: Geotermikus
Fűtés módja: Hőszivattyú
Komfort fokozat: Összkomfort
Kor: Új építésű
Szintek száma: Földszintes
Egész szobák: 5

Egyéb jellemzők

  • Csatorna
  • Garázs
  • Pince
  • Terasz

Térkép


Így keressen budapesti ingatlant négy egyszerű lépésben. Csupán 2 perc, kötelezettségek nélkül!

Szűkítse a budapesti ingatlanok
listáját
Válassza ki a megfelelő
budapesti ingatlant
Írjon a hirdetőnek
Várjon a visszahívásra