Eladó családi ház Szeged 89 900 000 Ft

Leírás

Szeged Subasa városrészben Eladó egy most induló, TÉGLA építésű, 140 nm-es élettérrel rendelkező, nappali plusz négy - öt szobás ház, amelyhez igény szerint terasz, vagy medence is járhat (ez külön megállapodás lehet az eladóval), mindenezek mellett egy 800 nm - es telek is jár hozzá.
A látványtervek folyamatban vannak.
A feltűntetett ár Szerkezetkész ár, az építtető vállalja a kulcsrakész befejezést is.
Kulcsrakész ára 109.900.000 Ft
Várható kulcsrakész befejezés, kezdéstől számított 7-8 hónap.
Az ingatlanra CSOK plusz, otthon start, és más hiteltámogatás is igénybe vehető.
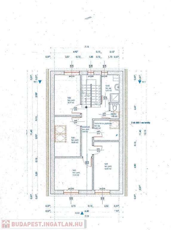
A ház 1 db óriási amerikai konyhás nappalival, 5 db hálószobával, 2 db fürdőszobával, közlekedővel, terasszal rendelkezik. Az ingatlan elhelyezkedésre, kialakítása miatt, maximálisan kiemeli ezt az ingatlant az átlagos lakások sorából és egyedülálló választássá teszi azt. További előny. hogy ház hőszivattyús helyiségenkénti Fan coilos hűtő - Fűtő rendszerrel lesz felszerelve.
Fontos tény, hogy teljesen hétköznapi használat mellett is a rezsicsökkentés értékhatárai alatti a fogyasztás, így a rezsiköltség rendkívül alacsony.
A lakás délkeleti fekvésű, napfényes ingatlan.
A környék infrastruktúrája tökéletes, tömegközlekedés, 1 - 3 percnyire az ingatlantól.

Helyiségei:
- amerikai konyhás nappali
- 4-5 szoba
- dupla fürdő
- wc
- közlekedő, előtér
- terasz

Az ingatlan megtekintése rugalmas.
Teljes totál műszaki tartalomért, illetve megtekintésért hívjon bármikor bizalommal.


Várom megtisztelő hívását:
KÓKAI FERENC Ving
+36 70 422 9777
Prémium ingatlanértékesítő
Szeged
(További képekért és információkért kérem hívjon!)

Családi ház részletei

Ár: 89 900 000 Ft
Méret: 140 négyzetméter
Azonosító: 11584667
Irodai azonosító: 256099
Erkély mérete: 25.00 négyzetméter
Telek: 800 négyzetméter
Ingatlan állapota: Szerkezetkész
Jelleg: családi ház
Építőanyag: Tégla
Fűtés jellege: Hőszivattyú
Egész szobák: 6
Nappalik: 1

Egyéb jellemzők

  • Beépíthető tetőtér
  • Csatorna
  • Garázs
  • Melléképület
  • Pince
  • Terasz

Így keressen budapesti ingatlant négy egyszerű lépésben. Csupán 2 perc, kötelezettségek nélkül!

Szűkítse a budapesti ingatlanok
listáját
Válassza ki a megfelelő
budapesti ingatlant
Írjon a hirdetőnek
Várjon a visszahívásra