Eladó családi ház Szeged 134 900 000 Ft

Leírás

Újszegedi,nyugis,zöld-környezetben ház eladó.
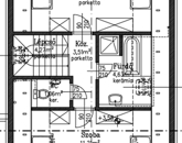
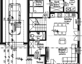
Az ingatlan fantasztikus helyen a Tisza-Maros torkolatától pár perc sétára a Töltés közvetlen közelében az Újszegedi Maros-liget lakóparkban található.A nappali plusz három szobás kétszintes ikerház rendkívül jó kialakítású hiszen ami ritkaság,hogy a földszinten is található hálószoba ami saját tusolós fürdőszobával és gardróbbal rendelkezik.Az emeleti két szoba,tágas és szép benapozású,természetesen emeleti fürdőszobával és külön WC-vel.Az ikerház saját 153 négyzetméteres kertel,illetve 22,23 négyzetméteres garázzsal rendelkezik.A teraszok méretét tekintve az utcafronti nappalival összekapcsolt terasz 15 négyzetméter az oldal fronti főbejárati fedett terasz pedig 3,01 négyzetméter.Gépészetét tekintve,vizes-rendszerű padlófűtés szolgáltatja a fűtést,elektromos Bosch kazánnal a hűtést pedig mind két szinten klíma biztosítja.Jelen pillanatban még folynak a munkálatok a kerítés kialakítását végezve.Fontos megjegyeznem,hogy a kulcsrakész árban a konyhabútor nincs benne.
Az ingatlannal kapcsolatban bármilyen kérdése felmerülne,keressen bizalommal:Laczkó Szabolcs +36707713137
(További képekért és információkért kérem hívjon!)

Családi ház részletei

Ár: 134 900 000 Ft
Méret: 122 négyzetméter
Azonosító: 11612463
Irodai azonosító: 087671
Erkély mérete: 18.00 négyzetméter
Telek: 153 négyzetméter
Ingatlan állapota: Kitűnő
Jelleg: ikerház
Építőanyag: Könnyűszerkezetes
Fűtés jellege: Egyéb
Egész szobák: 4
Nappalik: 1

Egyéb jellemzők

  • Beépíthető tetőtér
  • Csatorna
  • Garázs
  • Melléképület
  • Pince
  • Terasz

Így keressen budapesti ingatlant négy egyszerű lépésben. Csupán 2 perc, kötelezettségek nélkül!

Szűkítse a budapesti ingatlanok
listáját
Válassza ki a megfelelő
budapesti ingatlant
Írjon a hirdetőnek
Várjon a visszahívásra