Eladó családi ház Százhalombatta 90 000 000 Ft

Leírás

Százhalombatta Dunafüred részén kínálunk megvételre egy tégla építésű, jelenleg munkásszállóként használt, három szintes, kétgenerációs házat.

Tökéletes befektetési lehetőség munkásszállónak vagy több lakás kialakítására.

1/1 tulajdon, tehermentes, azonnal birtokba vehető.

Az épületen belül két szint található, két külön lakrésszel. A felső szinthez belső zárt lépcsőn tudunk feljutni, csak lépcsőház a közös használatú rész.

Telek:
642 m2

Garázs: 130 m2 nagyságú
Két állásos garázs, két külön műhely/raktár helyiséggel.

Földszint: 130 m2 nagyságú
- felszerelt konyha
- két fürdőszoba
- négy hálószoba, összesen 10 ággyal

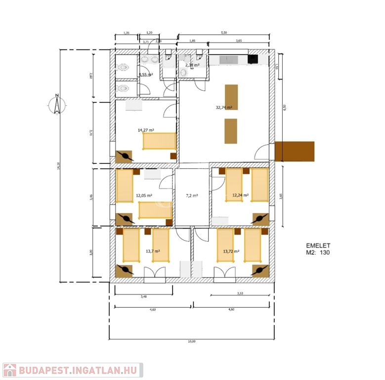
Emelet: 130 m2 nagyságú
- felszerelt konyha
- két fürdőszoba
- öt hálószoba, összesen 9 ággyal.

Emeletenként független fűtés és melegvíz, 2 db kondenzációs gázkazán és tároló tartály.

A vételár teljes berendezéssel értendő.

NE MARADJON LE RÓLA!
BEFEKTETÉSNEK IS KIVÁLÓ LEHETŐSÉG!

Lokáció:
Az ingatlan Dunafüreden található csendes, családias környezetben, pár perc sétára a Duna-parttól.
A város központját autóval 5 perc alatt meg lehet elérni.
A százhalombattai Duna Finomító és a Mol számos területen kínálnak munkalehetőségeket, mely által a nagyobb létszámú brigádok rendszeresen keresnek munkásszállásra alkalmas ingatlanokat.

Amennyiben további tájékoztatásra van szüksége, vagy szeretné megtekinteni az ingatlant kérem, hívjon a hét bármely napján.

A hirdetésben szereplő adatok tájékoztató jellegűek, nem minősülnek ajánlattételnek.

Családi ház részletei

Ár: 90 000 000 Ft
Méret: 260 négyzetméter
Azonosító: 11592575
Irodai azonosító: 391626
Cím: Kétgenerációs ház, panzió
Telek: 642 négyzetméter
Ingatlan állapota: Átlagos
Jelleg: családi ház
Építőanyag: Tégla
Fűtés jellege: Cirkó
Fűtés módja: Gáz
Komfort fokozat: Dupla komfort
Kor: 21-50 éves
Szintek száma: 2 szint
Egész szobák: 9

Egyéb jellemzők

  • Csatorna
  • Garázs
  • Pince
  • Terasz

Térkép


Így keressen budapesti ingatlant négy egyszerű lépésben. Csupán 2 perc, kötelezettségek nélkül!

Szűkítse a budapesti ingatlanok
listáját
Válassza ki a megfelelő
budapesti ingatlant
Írjon a hirdetőnek
Várjon a visszahívásra