Eladó családi ház Szada 189 000 000 Ft

Leírás

CasaNetWork Gödöllő Ingatlaniroda kínálatában eladó családi ház Szadán

Szada egyik legkeresettebb, csendes és modern környezetében, kínálunk megvételre egy kivételes adottságokkal rendelkező, prémium minőségű, új építésű luxus családi házat, amely a legmagasabb igényeket is kielégíti.

Az ingatlan átgondolt tervezésének és tágas tereinek köszönhetően ideális választás nagycsaládosok vagy több generáció számára is.

Főbb jellemzők:

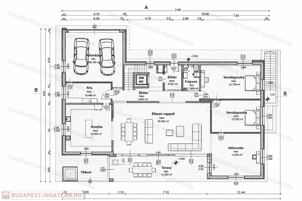
A háromszintes, impozáns ingatlan elrendezése:


  • Pince szint:

    Praktikus kialakítású tárolóhelyiségek, háztartási helyiség, valamint korszerű gépészeti tér biztosítja a mindennapi működés zavartalanságát.


  • Földszint:

    Elegáns és világos terek jellemzik:

    két kényelmes vendégszoba, külön gyerekjátszó szoba, valamint egy tágas, napfényes nappali került kialakításra.

    A nappalihoz kapcsolódik egy nagyméretű, modern konyha-étkező, amely ideális családi és baráti összejövetelekhez.

    Ezen a szinten található továbbá két vedégszoba , saját fürdőszobával, külön vendég WC, kamra, valamint egy garázs is.


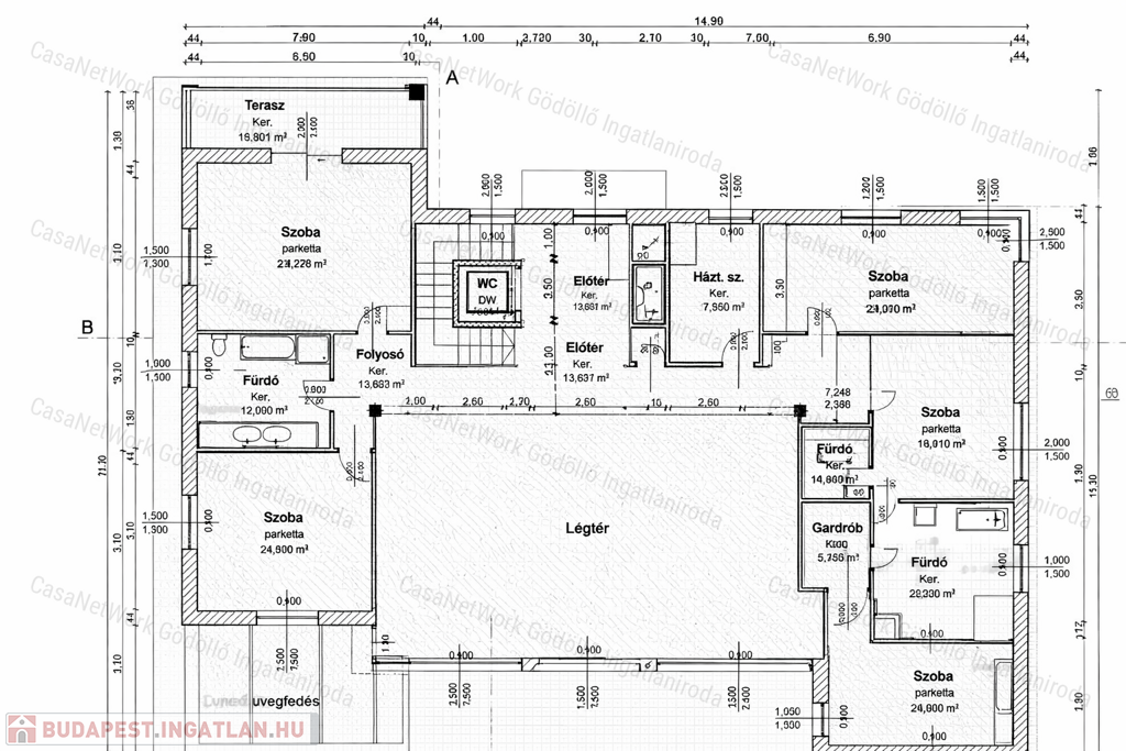
  • Emelet:

    Öt további szoba biztosít maximális életteret, két fürdőszoba, háztartási helyiség és előtér egészíti ki a szint funkcionalitását.

    Két terasz nyújt lehetőséget a pihenésre és kikapcsolódásra.
  • Műszaki tartalom és extrák:

    • 90%-os készültségi állapot – a befejezés az új tulajdonos igényeire szabható


    • Korszerű, energiatakarékos hőszivattyús rendszer


    • Minden helyiségben külön szabályozható klímaberendezés


    • Elektromos autó töltési lehetőség


    • Minőségi tetőcserép


    • Télikert és terasz kialakítása folyamatban


    • A kert jelenleg rendezésre vár, így teljes mértékben személyre szabható

Életérzés:









Ez az ingatlan nem csupán egy ház, hanem egy életstílus. Tágas, fényárban úszó terei, modern műszaki megoldásai és kiváló elhelyezkedése révén tökéletes harmóniát teremt a luxus és a funkcionalitás között.

Ingyenes hitel tanácsadással, ügyvédi kapcsolattal és rugalmas időbeosztással állunk kedves ügyfeleink rendelkezésére! CASANETWORK - Ingatlanban otthon vagyunk

Családi ház részletei

Ár: 189 000 000 Ft
Méret: 455 négyzetméter
Azonosító: 11610712
Irodai azonosító: 166401980
Telek: 1880 négyzetméter
Ingatlan állapota: Kitűnő
Jelleg: családi ház
Építőanyag: Tégla
Komfort fokozat: Dupla komfort
Bútorozott: Nem bútorozott
Egész szobák: 9

Így keressen budapesti ingatlant négy egyszerű lépésben. Csupán 2 perc, kötelezettségek nélkül!

Szűkítse a budapesti ingatlanok
listáját
Válassza ki a megfelelő
budapesti ingatlant
Írjon a hirdetőnek
Várjon a visszahívásra