Eladó családi ház Szada 124 500 000 Ft

Leírás

Szada csendes, panorámás részén eladó ÚJÉPÍTÉSŰ nettó 116 nm-es lakóterülettel (+22 nm-es fedett terasz), földszintes családi ház, 950 nm-es telken.
B30-as Porotherm tégla falazatú, külső 10 cm-es grafitflex szigeteléssel. A válaszfalak 10 cm-es 10 N+F Porotherm típusú.
45 cm-es beton sávalapon, a talajon fekvő padozat 15 cm-es austrotherm XPS szigetelést kapott.
A födém előregyártott E gerendás EB60/19 béléstestes, vasbeton födém.
A tető héjalása Tondach cserép.
A fehér műanyag redőnnyel ellátott nyílászárók 3 rétegű thermoplán üvegezésűek.
A jó hőtartását fokozza az ingatlannak a padlástérben elhelyezett 22 cm-es austrotherm XPS szigetelés.
A fűtést a garázsból nyíló gépészeti helyiségben elhelyezett hőszivattyú biztosítja, mely padlófűtésen adja le minden helyiségben a hőt.
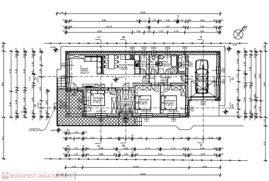
A következő helyiségek kerültek kialakításra:
- nappali 26,94 nm,- konyha-étkező 11,26 nm, -háló 11,55 nm, -előszoba 5,28 nm (tetőtérre feljáró kialakítva, lehajtható létrával), -háló 11,36 nm, - háló 11,34 nm, -kamra 2,67 nm, - wc-kézmosó 2,52 nm, -fürdő-wc 5,53 nm, -garázs 19,71 nm, -gépészeti helyiség 2,15 nm, -közlekedő 5 nm, - fedett terasz 22,8 nm.

A riasztó rendszer, elektromos redőny előkészítve, H tarifás villanyóra, 3 x 20 Amper rendelkezésre áll.
A vételár részét képezi a konyhabútor, egyedileg választott színű lapokkal, és frontrészekkel, beépített gránit mosogatóval, páraelszívóval.

A burkolatok még választhatóak.

Kb. 400 méterre a 396-os számú busz megállója, mely Budapest Újpest-Városkapu és Veresegyház között közlekedik. Közelben Coop, Lidl, gyógyszertár.

Családi ház részletei

Ár: 124 500 000 Ft
Méret: 116 négyzetméter
Azonosító: 11542170
Irodai azonosító: 383570
Cím: panorámás részén
Telek: 950 négyzetméter
Ingatlan állapota: Kitűnő
Jelleg: családi ház
Építőanyag: Tégla
Fűtés jellege: Geotermikus
Fűtés módja: Hőszivattyú
Komfort fokozat: Összkomfort
Kor: Új építésű
Szintek száma: Földszintes
Egész szobák: 4

Egyéb jellemzők

  • Csatorna
  • Garázs
  • Pince
  • Terasz

Térkép


Így keressen budapesti ingatlant négy egyszerű lépésben. Csupán 2 perc, kötelezettségek nélkül!

Szűkítse a budapesti ingatlanok
listáját
Válassza ki a megfelelő
budapesti ingatlant
Írjon a hirdetőnek
Várjon a visszahívásra