Eladó családi ház Siófok 78 000 000 Ft

Leírás

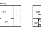
Eladásra kínáljuk kinálatunkból Siófok központjához közeli, mégis csendes utcában lévő sorházi ingatlanunkat! A lakás 162 m2-es telken, 77 m2 alapterületű. Az alsó szinten található előszoba, egy tágas nappali, konyha, WC és kettő tároló. A felső szintre érve a közlekedőből két szoba, kádas fürdőszoba WC-vel és egy beépített gardróbszekrény nyílik. Fűtése gázkonvektorokkal megoldott. Az épületet 10 m2-es terasz köti össze a hangulatos kis udvarral. A virágágyások mellett itt kialakításra került kerti tároló is.
A lakáshoz egészen közel található iskola, nagyobb áruházak. Néhány perc sétával elérjük a központot, de a vízpartra is leérhetünk 20 perc kényelmes sétával. Autóval 3-4 perc távolságra vannak a nagyobb üzletláncok: Aldi, Tesco, Lidl, OBI stb.
Ajánljuk mindazoknak akik a Balaton fővárosában, mégis csendes helyen keresik az otthon meghittségét, de azoknak is akik közel szeretnének lenni az események folyamához! Alkalmas állandó lakhatásra, családoknak, időseknek, de nyaralási célokat is tökéletesen kiszolgál. Megtekintésért kérem, hívjon!

Az energetikai tanúsítvány készítése folyamatban van, amint rendelkezésre áll, úgy azzal a hirdetés frissítésre kerül.



Referencia szám: M327549

Családi ház részletei

Ár: 78 000 000 Ft
Méret: 76 négyzetméter
Azonosító: 11615002
Irodai azonosító: M327549-5209953
Telek: 162 négyzetméter
Ingatlan állapota: Átlagos
Jelleg: sorház
Építőanyag: Tégla
Fűtés jellege: Konvektoros
Fűtés módja: Gáz
Komfort fokozat: Összkomfort
Kor: 50 évesnél régebbi
Szintek száma: 1 szint
Egész szobák: 3

Térkép


Így keressen budapesti ingatlant négy egyszerű lépésben. Csupán 2 perc, kötelezettségek nélkül!

Szűkítse a budapesti ingatlanok
listáját
Válassza ki a megfelelő
budapesti ingatlant
Írjon a hirdetőnek
Várjon a visszahívásra