Eladó családi ház Siófok 74 900 000 Ft

Leírás

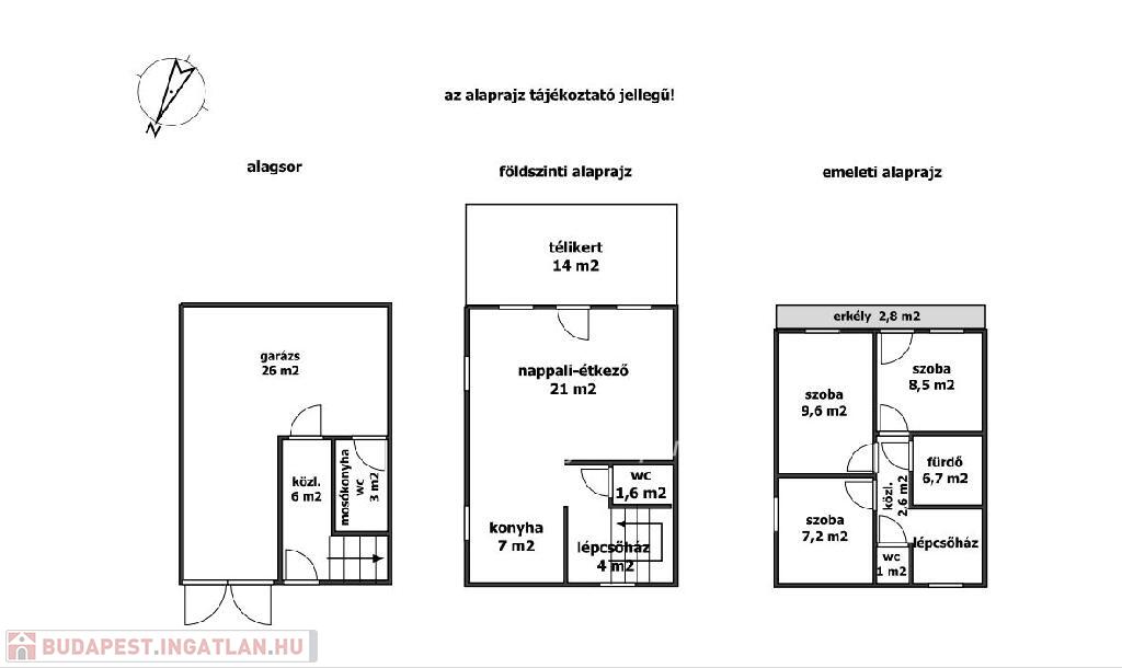
Balaton déli partján, Siófokon kínálok megvételre egy 114 m2-es 3 hálószobás, kertkapcsolatos lakást. Az ingatlan a város nyugodt, családi házas övezetében, Foki-hegyen található, közel oktatási-, egészségügyi intézményekhez, bevásárlási lehetőségekhez, a Balaton-parttól 1,5 km távolságra. A belső háromszintes ingatlan egy 16 lakásos sorház legbelső, szeparált cca 300 m2-es saját használatú kerttel rendelkező lakása, egy alagsori fűtött és egy kertből megközelíthető különálló garázzsal. A ház felújított, korszerűsített, ezért rezsiköltsége alacsony. Aljzat-, födém- oldalfal szigetléssel ellátott. A fűtést egy 3 éve cserélt cirkó kazán adja radiátoros hőleadással, a nappaliban padlófűtéssel. A műanyag nyílászárók szintén újak, redőnnyel, szúnyoghálóval szereltek. A lakás elosztása a következő: az alagsorban található a 26 m2-es garázs, zuhanyzó, wc, mosókonyha. A földszinten amerikai konyhás nappali, étkező, ebből a helyiségből jutunk a 14 m2-es teljesen nyitható télikertbe, azon keresztül a kertbe, valamint egy mosdó. Az emeleten kényelmes méretű, kádas fürdőszoba, külön wc, 3 hálószoba, melyekből az egyik teraszkapcsolatos. A kert hangulatos, intim. Az ingatlan tehermentes, rövid határidővel birtokba vehető! Részletekért, megtekintésért kérem hívjon!

Referencia szám: M290229

Családi ház részletei

Ár: 74 900 000 Ft
Méret: 114 négyzetméter
Azonosító: 11439955
Irodai azonosító: M290229-4770535
Telek: 300 négyzetméter
Ingatlan állapota: Átlagos
Jelleg: sorház
Építőanyag: Tégla
Fűtés jellege: Cirkó
Fűtés módja: Gáz
Komfort fokozat: Összkomfort
Kor: 21-50 éves
Szintek száma: 2 szint
Egész szobák: 2
Fél szobák: 2

Egyéb jellemzők

  • Garázs

Térkép


Így keressen budapesti ingatlant négy egyszerű lépésben. Csupán 2 perc, kötelezettségek nélkül!

Szűkítse a budapesti ingatlanok
listáját
Válassza ki a megfelelő
budapesti ingatlant
Írjon a hirdetőnek
Várjon a visszahívásra