Eladó családi ház Siófok 199 000 000 Ft

Leírás

Siófok Ezüstpartján, a Balatontól mindössze 140 méterre felújított, kétszintes családi ház és különálló melléképület eladó egyben és külön is.

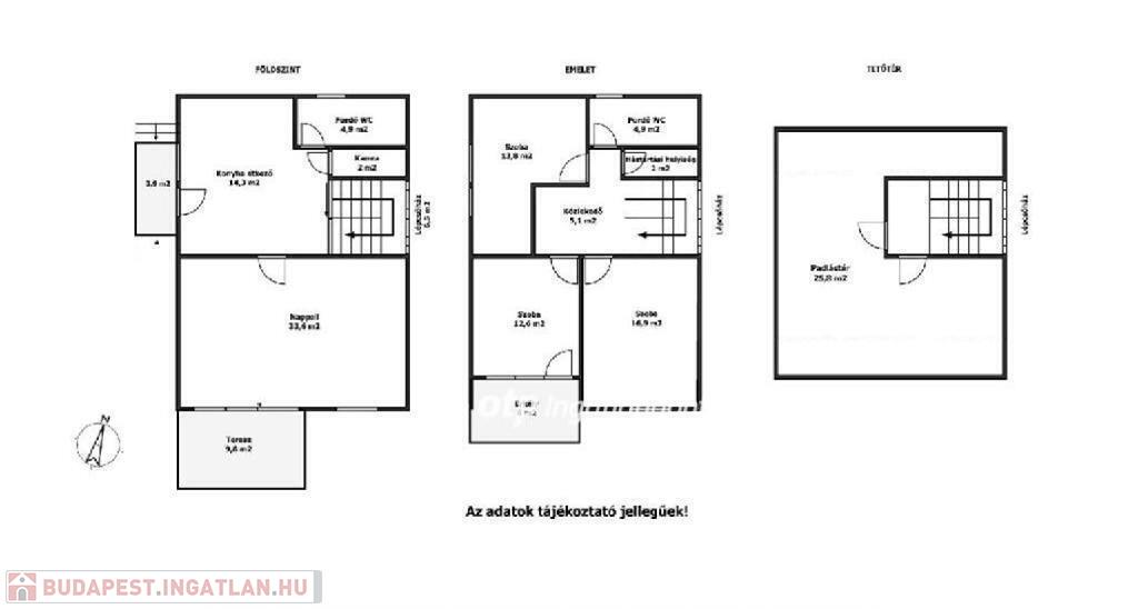
Siófok közkedvelt Újhelyi városrészében, a szabad strandtól csupán 2 perc sétára kínálunk megvételre egy 117 nm-s, kétszintes családi házat, valamint egy különálló, 25 nm-s, teljes értékű melléképületet.

Főépület jellemzői:

Új, korszerű gázkazán biztosítja a fűtést.

Földszinti, világos nappali hangulatos terasszal.

Az emeleten 3 kényelmes hálószoba.

A tetőtérben további beépítési lehetőség.

Friss energetikai korszerűsítés.

Új, hőszigetelt nyílászárók.

Megújult, modern vizesblokkok, új burkolatokkal és szaniterekkel

Felújított, hőszigetelt homlokzat.

A földszinti beépített konyhabútor a vételár részét képezi.

Melléképület:

A különálló, egyszintes épület 25 nm-s lakóteret kínál, két fedett terasszal.
Hőszigetelt, műanyag nyílászáróinak és kialakításának köszönhetően vendégháznak, irodának vagy kiadható apartmannak is kiváló lehetőség.

Telek és parkolás:

Összesen 727 nm-s, gondozott telek. (fő ház 314 nm, kis ház 269 nm, egyéb 144 nm)

Parkolás a zárt udvarban vagy a ház előtti ingyenes közterületen.

Kiváló elhelyezkedés, felújított állapot, többfunkciós melléképület tökéletes nyaraló, állandó otthon vagy akár befektetés!

Megtekintéshez várom hívását.

Az energetikai tanúsítvány készítése folyamatban van, amint rendelkezésre áll, úgy azzal a hirdetés frissítésre kerül.



Referencia szám: M316304

Családi ház részletei

Ár: 199 000 000 Ft
Méret: 142 négyzetméter
Azonosító: 11615762
Irodai azonosító: M316304-5213095
Telek: 583 négyzetméter
Ingatlan állapota:
Jelleg: családi ház
Építőanyag: Tégla
Fűtés jellege: Cirkó
Fűtés módja: Gáz
Komfort fokozat: Összkomfort
Kor: 21-50 éves
Szintek száma: 2 szint
Egész szobák: 6

Egyéb jellemzők

  • Garázs

Térkép


Így keressen budapesti ingatlant négy egyszerű lépésben. Csupán 2 perc, kötelezettségek nélkül!

Szűkítse a budapesti ingatlanok
listáját
Válassza ki a megfelelő
budapesti ingatlant
Írjon a hirdetőnek
Várjon a visszahívásra