Eladó családi ház Siklós 349 000 000 Ft

Leírás

Fedezze fel a Villány-Siklós Borvidék Varázslatát!
Az Eladó Magánbirtok egy megálmodott paradicsom, Egyedülálló Panzió és Wellness Központ terveivel, a Siklósi Vár és a Horvát Határvidék Lenyűgöző Panorámájával.

Képzelje el, hogy ébredésekor a Siklósi Vár történelmi körvonalai tárulnak szeme elé, míg a Szársomlyó-hegy és a horvát határvidék bámulatos látványa elvarázsolja. Ez a valósággá válhat az újonnan tervezett panzióban és wellness központban, amely a Villány-Siklós borvidék szívében, a Tenkes-hegy oldalában, a híres Sauska borbirtok szomszédságában kap helyet.

A tervezett létesítmény, amely mindössze 15 km-re helyezkedik el Villánytól és 5 km-re Harkánytól, tökéletes helyszínt biztosít a pihenésre, a borturizmusra és a kikapcsolódásra egyaránt. A 2,4 hektáros területen, mely erdősávokkal és szőlősorokkal körülvett, egy lenyűgöző, Déllejtésű panoráma tárul a vendégek elé, amely garantáltan felejthetetlenné teszi minden pillanatát.

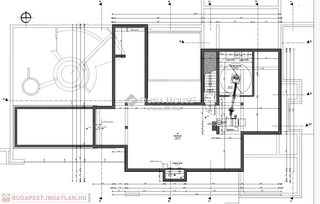
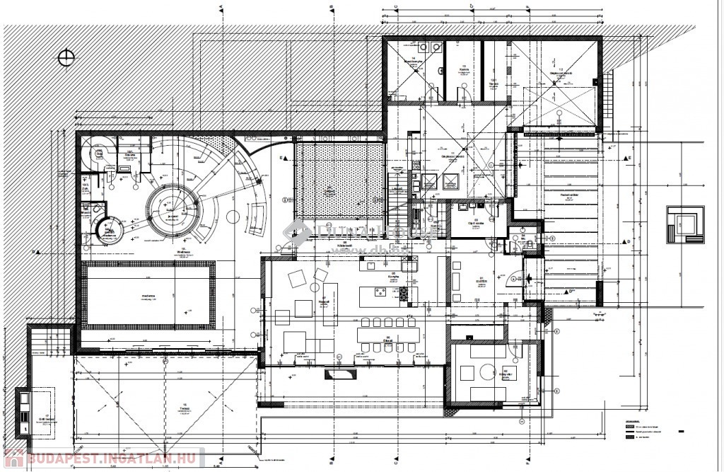
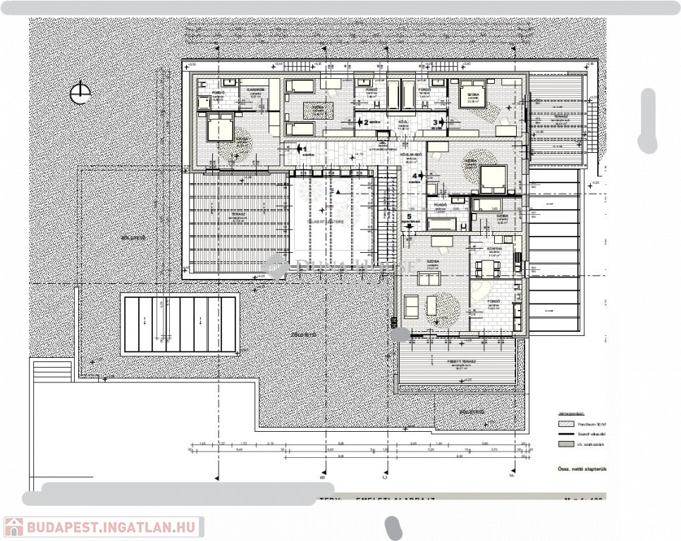
Az új központ magában foglal egy meglévő pinceház átalakításával létrehozott rendezvénytermet, ahol akár 20 fő is kényelmesen elfér. A főépületben további 12 vendég élvezheti a magas színvonalú szobákat és a közösségi tereket, míg a területen elhelyezkedő hat darab luxus faház apartman összesen 24 fő részére nyújt kényelmet és magánosságot.

A főépület kivitelezése már 55%-os készültségi szinten áll, és a tervek szerint a wellness részleg, valamint a vendégszobák is ideálisan tájoltak lesznek a napfény és a lenyűgöző kilátás maximális kihasználására. Az építkezés során kiemelt figyelmet fordítottunk a környezetbe való tökéletes illeszkedésre: az épület tömegét alacsonyan tartottuk, a tetőteraszokat növényekkel árnyékolt pergolák díszítik, melyek között szőlőt is fogunk futtatni.

A területen meglévő infrastruktúra kiváló: elektromos és ivóvíz csatlakozás már biztosított, a szennyvíz zárt rendszerű tárolóba kerül, míg az esővizet a locsolás céljára gyűjtjük össze.

Fedezze fel ezt a békés menedéket, ahol a természet, a kultúra és a modern kényelem harmonikus egyensúlyban van. Legyen része a Villány-Siklós borvidék új gyöngyszemének megszületésében, ahol a pihenés és az élmények garantáltan felejthetetlenek lesznek.

349000000 Ft
Keressenek Bizalommal!
Érdeklődni.: Orsolics Zsolt + 36(20)3770000

Referencia szám: HZ019908-NOK

Családi ház részletei

Ár: 349 000 000 Ft
Méret: 893 négyzetméter
Azonosító: 11612620
Irodai azonosító: HZ019908-4639474
Telek: 23721 négyzetméter
Ingatlan állapota: Épülő
Jelleg: kúria
Építőanyag: Kérdezzen rá a hirdetőtől »
Fűtés jellege: Egyéb
Kor: Új építésű
Szintek száma: Földszintes
Egész szobák: 6

Térkép


Így keressen budapesti ingatlant négy egyszerű lépésben. Csupán 2 perc, kötelezettségek nélkül!

Szűkítse a budapesti ingatlanok
listáját
Válassza ki a megfelelő
budapesti ingatlant
Írjon a hirdetőnek
Várjon a visszahívásra