Eladó családi ház Sárvár 99 900 000 Ft

Leírás

Sárváron a termál fürdőtől 1 km-re, a Hatvany kastély közelében, kertvárosi környezetben, új építésű lakóház eladó !

A városközpont közelsége, a zöld környezet, a forgalommentes mellékutca minden korosztály számára vonzó lehet. (Az egy telekre épült két lakóház egymástól elválasztott, nincs közös pontja, külön utcából megközelíthetőek.)

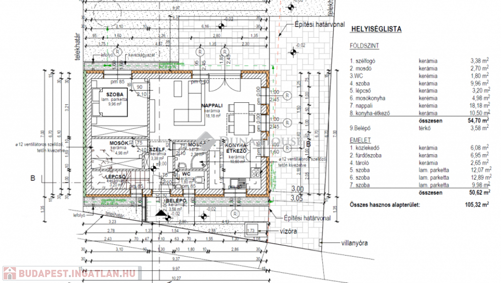
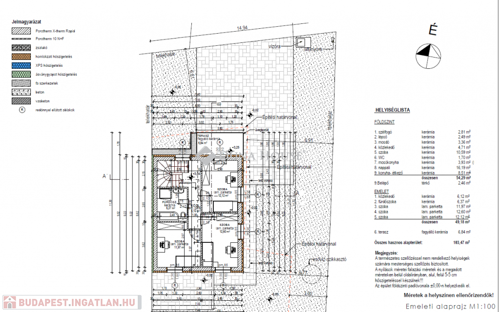
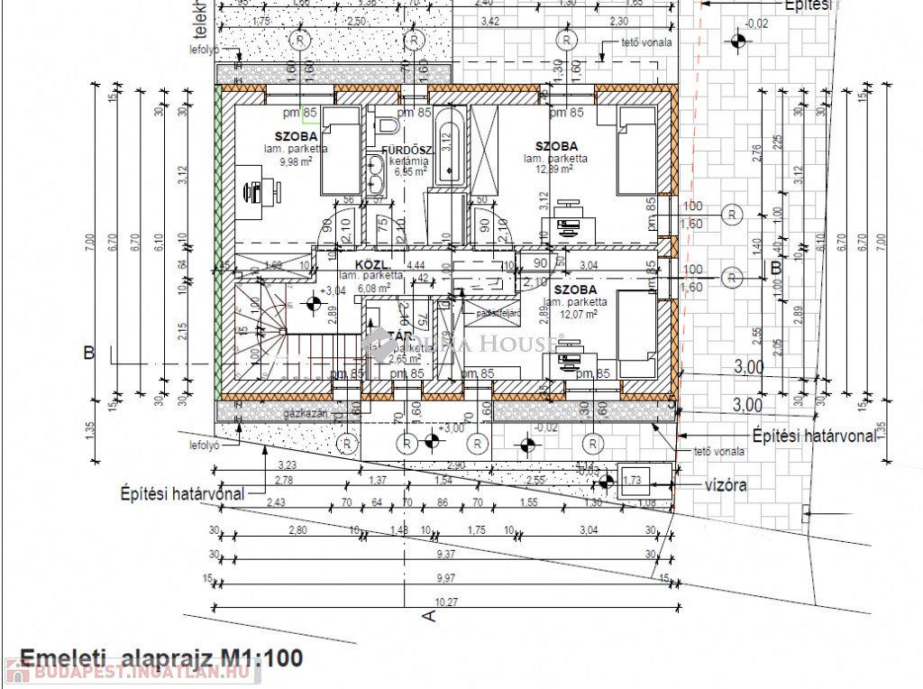
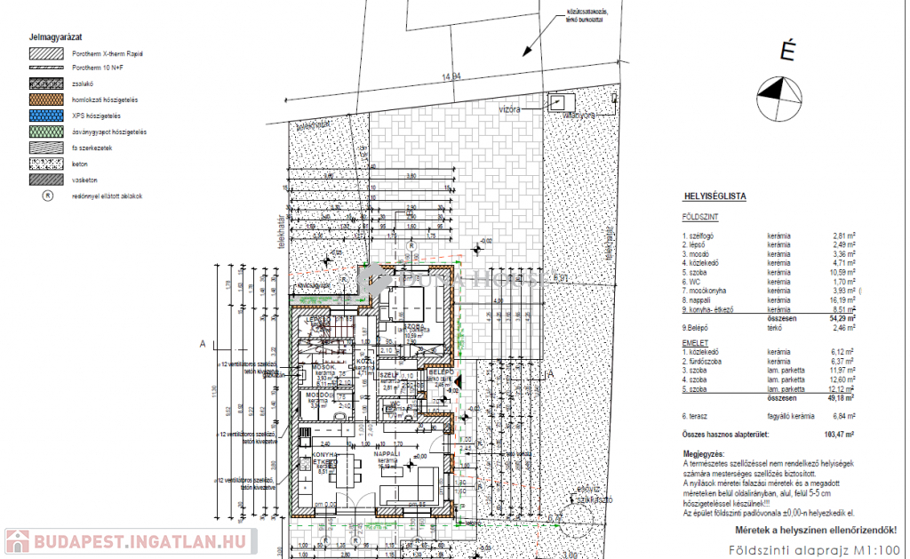
A tervezés során fontos szempont volt a minőség, a költséghatékony fenntartás és az ingatlan értékállósága. Az épület fűtését, illetve meleg víz ellátását a kor igényeinek leginkább megfelelő,egyedi kondenzációs-gázkazán biztosítja, egyedi méréssel és szabályozással, a hőleadás padlófűtéssel történik. Igazi családbarát kialakítás : A földszinten amerikai konyhás nappali, egy hálószoba, fürdő, külön wc és egy háztartási helyiség. Az emeleten három hálószoba, egy nagy fürdőszoba dupla mosdóval, káddal és zuhanyzóval is valamint egy külön wc is van. Nyugis terasz a kertben, valamint akár 2 autónak térkövezett beálló...

A projekt főbb jellemzői:
- nappaliban és az emeleten is beépített hűtő-fűtő klíma - termálfürdő közeli, frekventált elhelyezkedés, kis forgalmú mellékutcában - igényes, városképbe illő, klasszikus külső megjelenés - fenntartható, alacsony energiafelhasználás ingatlan - 2 fürdő, 2 wc - 3 rétegű nyílászárók - Választható belső burkolatok, szaniterek, beltéri ajtók - terasz, kert - térkövezett gépkocsibeálló
OTTHONstart hitel - Családi Otthonteremtési Kedvezmény + Hitel igényelhető! - 5% Áfa, ami CSOK+-os vásárlás esetén visszaigényelhető - Teljes illetékmentesség CSOK+-os vásárlás esetén

Az építkezés a tervezett ütemben halad, az épület szerkezetkész állapotban van, szerződést követő 60-90 napon belül birtokba vehető !

Naprakész információk a Duna House irodákban!

Helyszínrajz, műszaki leírás, alaprajz, műszaki felszereltség, pontos tájékoztatás nálunk, keressen bizalommal !

Családi ház részletei

Ár: 99 900 000 Ft
Méret: 105 négyzetméter
Azonosító: 11613798
Irodai azonosító: PR071771/HZ/30217-5204398
Telek: 250 négyzetméter
Ingatlan állapota: Épülő
Jelleg: családi ház
Építőanyag: Tégla
Fűtés jellege: Cirkó
Fűtés módja: Gáz
Komfort fokozat: Dupla komfort
Kor: Új építésű
Szintek száma: Földszintes
Egész szobák: 5

Egyéb jellemzők

  • Garázs

Térkép


Így keressen budapesti ingatlant négy egyszerű lépésben. Csupán 2 perc, kötelezettségek nélkül!

Szűkítse a budapesti ingatlanok
listáját
Válassza ki a megfelelő
budapesti ingatlant
Írjon a hirdetőnek
Várjon a visszahívásra