Eladó családi ház Salgótarján 24 900 000 Ft

Leírás

Salgótarjánban, a belváros közelében (Károlyi), felújítandó, 2 szintes, 4 szobás, 122 nm-es családi ház eladó!

A családi ház 1976-ban épült, tégla szerkezetű, pala tetős, esztétikai és gépészeti felújítást igényel.

Az ingatlanban a fűtést kandalló, a meleg víz ellátást villanybojler biztosítja. Gázcsonk az udvarban található.

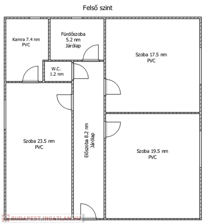
Helyiségei: a felső szinten 3 szoba, kamra, fürdőszoba, külön nyíló W.C., előszoba, az alsó szinten közlekedő, zuhanyzó, konyha, 1 szoba.

A ingatlanhoz tartozó 1300 nm-es dupla telek az épület mellett és mögött helyezkedik el, lankás, körbekerített, füvesített, területén cca. 30 nm-es tárolásra alkalmas faház és gépkocsibeálló található.

Salgótarján belvárosi 1+1 vagy 2 szobás, 1. emeleti vagy liftes, jó állapotú lakás cseréje lehetséges!

A városközpont, piac, buszmegálló, vasútállomás, Járási Hivatal, orvosi rendelő 6-8 perc alatt gyalogosan elérhető.
(További képekért és információkért kérem hívjon!)

Családi ház részletei

Ár: 24 900 000 Ft
Méret: 122 négyzetméter
Azonosító: 11496416
Irodai azonosító: 574726
Telek: 1300 négyzetméter
Ingatlan állapota: Felújítandó
Jelleg: családi ház
Építőanyag: Tégla
Fűtés jellege: Cserépkályha
Egész szobák: 4

Egyéb jellemzők

  • Beépíthető tetőtér
  • Csatorna
  • Garázs
  • Melléképület
  • Pince
  • Terasz

Így keressen budapesti ingatlant négy egyszerű lépésben. Csupán 2 perc, kötelezettségek nélkül!

Szűkítse a budapesti ingatlanok
listáját
Válassza ki a megfelelő
budapesti ingatlant
Írjon a hirdetőnek
Várjon a visszahívásra