Eladó családi ház Salgótarján 9 500 000 Ft

Leírás

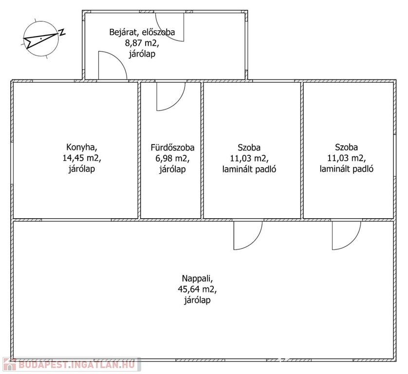
Valamikor szebb napokat látott, de jelenleg elhanyagolt, felújítandó családi ház keresi új gazdáját. A ház szép padlóburkolattal kialakított, hatalmas nappalival, két szobával, nagy konyhával, fürdőszobával, és tágas előszobával rendelkezik. A falak téglából épültek, a tető lemezes cserép héjalású. Az ablakok redőnyös, dekoratív, többszörösen hőszigetelt műanyag ablakok, sajnos a legtöbbön törött az üveg, javításra, illetve cserére szorulnak. Az ingatlan lakatlan, jelenleg nincs fűtés sem benne, de eredetileg minden közmű bekötéssel rendelkezett. Az ingatlan a felújítás után a jelenlegi vételár többszörösét fogja érni.
Baglyasalja városrészen, kedvező helyen, a helyijárati autóbusz megállójánál található, a buszjárat sűrű, a házhoz tartozó telekre gépkocsival is be lehet állni.
További információkért hívjon a +36 70 423 1304-es telefonszámon!
(További képekért és információkért kérem hívjon!)

Családi ház részletei

Ár: 9 500 000 Ft
Méret: 98 négyzetméter
Azonosító: 11592405
Irodai azonosító: 786698
Telek: 686 négyzetméter
Ingatlan állapota: Felújítandó
Jelleg: családi ház
Építőanyag: Tégla
Egész szobák: 3
Nappalik: 1

Egyéb jellemzők

  • Beépíthető tetőtér
  • Csatorna
  • Garázs
  • Melléképület
  • Pince
  • Terasz

Így keressen budapesti ingatlant négy egyszerű lépésben. Csupán 2 perc, kötelezettségek nélkül!

Szűkítse a budapesti ingatlanok
listáját
Válassza ki a megfelelő
budapesti ingatlant
Írjon a hirdetőnek
Várjon a visszahívásra